N.B. Tutti le informazioni immobiliari sono fornite senza alcuna garanzia. Leggi il disclaimer.
Casali o locali di sgombero con cantina e con riscaldamento autonomo e con termocondizionamento in vendita a Cascina in zona Navacchio
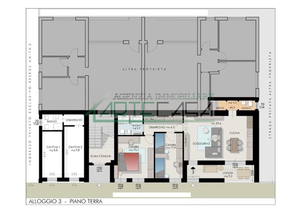
MODIFICA QUESTA RICERCAAppartamento in Vendita a Cascina Arquata Ovest PREMIUM
San Lorenzo alle Corti. In quartiere residenziale vendesi ampio 5 vani frutto di una recente e raffinata ristrutturazione. L 'immobile è composto da: ingresso, cucina abitabile, balcone, spaziosa sala, due camere, studio ampio, ripostiglio […]
LEGGI ANCORA
- prezzo medio appartamento in zona OMI E1 : 2117 €/m²
- prezzo medio casale in zona OMI E1 : 2051 €/m²
Quadrilocale in vendita a Cascina
casale Navacchio 200.000 €
rif.ag. ac350467 - cascina ottima posizione in contesto residenziale tranquillo e ben servito, vendesi ampio appartamento di 4 vani completamente ristrutturato nel 2024, posto al primo piano di palazzina di sole 4 unità, limmobile è composto da ingresso tradizionale, salone con balcone, cucina / sala pra […]
LEGGI ANCORA
- prezzo medio appartamento in zona OMI E1 : 2117 €/m²
- prezzo medio casale in zona OMI E1 : 2051 €/m²
Vendita 2 camere a Cascina
casale San Lorenzo alle Corti 138.000 €
Rif: 1376850/543/1255 - 3 vani - cascina loc. San lorenzo alle corti appartamento completamente ristrutturato nel 2006 con ingresso indipendente da piccola resede privata pavimentata. Internamente la soluzione si compone da ingresso in soggiorno con angolo cottura e comodo ripostiglio. Un disimpegno sepa […]
LEGGI ANCORA
- prezzo medio casale in zona OMI E1 : 2051 €/m²
- prezzo medio appartamento in zona OMI E1 : 2117 €/m²
Villa in Vendita a Cascina
casale Navacchio 425.000 €
Villetta unifamiliare Navacchio. IN ESCLUSIVA Navacchio. Villetta singola in ottimo stato di manutenzione con giardino esclusivo su quattro lati disposta su due piani e composta al piano terra da ampio loggiato, ingresso e accesso al locale pluriuso e bagno . Al piano superiore si accede tramite scala in […]
LEGGI ANCORA
- prezzo medio casa indipendente in zona OMI E1 : 2133 €/m²
- prezzo medio villa in zona OMI E1 : 2285 €/m²
vendita appartamento Cascina
Proposto da:
casale 179.000 €
Cascina - VENDESI appartamento posto al 2° piano di un condominio con ASCENSORE, molto luminoso di circa 110 mq con 2 balconi. Composto da: ingresso, sala, angolo cottura, 3 camere da letto (2 matrimoniali, 1 singola) e 2 bagni. L’immobile è stato costruito negli anni '70, è in buono stato di manutenzion […]
LEGGI ANCORA
- prezzo medio appartamento in zona OMI E1 : 2117 €/m²
- prezzo medio casale in zona OMI E1 : 2051 €/m²
Trilocale in vendita, Cascina san prospero navacchio
casale Navacchio 175.000 €
Rif.Ag. DE9V - Via di Mezzo Sud San Prospero (Cascina) Due Esse Group, Due Esse Group, unici referenti con il nostro esclusivo Piano C, propone in vendita un appartamento *attualmente locato fino a luglio 2027*, situato in Via di Mezzo Sud, in una zona residenziale tranquilla e riservata, ideale per chi […]
LEGGI ANCORA
- prezzo medio appartamento in zona OMI E1 : 2117 €/m²
- prezzo medio casale in zona OMI E1 : 2051 €/m²
Palazzo - Stabile in Vendita a Cascina Via Sirio Moggi
casale Navacchio 185.000 €
NAVACCHIO: TERRA TETTO centrale disposto su 3 livelli e composto al piano terra da: soggiorno, cucina abitabile collegata a resede esclusivo di 30 mq. recintato, ripostiglio. Al piano primo da due camere matrimoniali e bagno. Al piano secondo ed ultimo due camere, bagno e balcone verandato. L 'abitazione […]
LEGGI ANCORA
- prezzo medio casale in zona OMI E1 : 2051 €/m²
- prezzo medio casale in zona Navacchio : 2061 €/m²
Viareggina in vendita a Cascina, Navacchio
casale Navacchio 250.000 €
NAVACCHIO In zona tranquilla, viareggina in ottime condizioni con giardino di circa 250 mq composto da ingresso, salone doppio con camino, cucina abitabile, disimpegno notte, due camere, bagno e ripostiglio. Ampio garage. anno. Rif. 3479 - SC9539105
LEGGI ANCORA
- prezzo medio casale in zona OMI E1 : 2051 €/m²
- prezzo medio casale in zona Navacchio : 2061 €/m²
trivano in vendita a Cascina in zona Navacchio
casale Navacchio 155.000 €
NAVACCHIO In zona ben servita, al primo ed ultimo piano di piccola palazzina, proponiamo in vendita appartamento completamente ristrutturato. Dal vano scala condominiale si accede alla zona giorno dell'appartamento con soggiorno ed angolo cottura, piccolo disimpegno ci conduce alla camera e al bagno. Dal […]
LEGGI ANCORA
- prezzo medio appartamento in zona OMI E1 : 2117 €/m²
- prezzo medio casale in zona OMI E1 : 2051 €/m²
Vendita 2 camere a Cascina
Proposto da:
casale Navacchio 229.000 €
Rif: 1367372/176/a74 - navacchio vic.ze esclusivain zona residenziale immersa nel verde, bellissimo appartamento unico nel suo genere , pari al nuovo posto al piano terra rialzato con ingresso indipendente e giardino esclusivo ( pavimentato) perfetto per cene estive e momenti di relax. Composto da piccol […]
LEGGI ANCORA
- prezzo medio appartamento in zona OMI E1 : 2117 €/m²
- prezzo medio casale in zona OMI E1 : 2051 €/m²
vendita villetta a schiera Cascina
Proposto da:
casale Navacchio 385.000 €
NAVACCHIO VIC.ZE In zona residenziale, immersa nel verde VILLETTA ANGOLARE con ampio giardino su tre lati, disposta su piani sfalsati, composta al piano terra da ingresso disimpegno, ripostiglio, garage e lavanderia, salendo due scalini ci immettiamo nell'ampio soggiorno con accesso al giardino, cucina a […]
LEGGI ANCORA
- prezzo medio casa indipendente in zona OMI E1 : 2133 €/m²
- prezzo medio villetta a schiera in zona OMI E1 : 2300 €/m²
Rustico a Cascina Navacchio Nord - Zambra di 400 m² con 9 locali PREMIUM
CASCINA: Splendido immobile in perfette condizioni circondato sui quattro lati da circa 10.000 mq di giardino in 4". Si compone al piano terra da ampio living - open space soggiorno, cucina, sala da pranzo e zona relax con camino, bagno; al […]
LEGGI ANCORA
- prezzo medio casale in zona OMI E1 : 2051 €/m²
- prezzo medio appartamento in zona OMI E1 : 2117 €/m²
Appartamento in Vendita a Cascina Arquata Ovest
casale San Lorenzo alle Corti 173.000 €
San Lorenzo alle Corti. In quartiere residenziale vendesi ampio 5 vani frutto di una recente e raffinata ristrutturazione. L 'immobile è composto da: ingresso, cucina abitabile, balcone, spaziosa sala, due camere, studio ampio, ripostiglio e bagno finestrato. Ambienti luminosi e climatizzati. Possibilit […]
LEGGI ANCORA
- prezzo medio appartamento in zona OMI E1 : 2117 €/m²
- prezzo medio casale in zona OMI E1 : 2051 €/m²
Appartamento in vendita a Cascina(PI
casale Navacchio 235.000 €
Cod.01260 - In un contesto residenziale di San Prospero, a pochi passi dalla Tosco Romagnola, è in vendita un moderno appartamento di circa 79 mq di nuova costruzione, situato al primo piano di una palazzina composta da sole tre unit abitative. L'immobile gode di un ingresso indipendente che si sviluppa […]
LEGGI ANCORA
- prezzo medio appartamento in zona OMI E1 : 2117 €/m²
- prezzo medio casale in zona OMI E1 : 2051 €/m²
trivano in vendita a Cascina in zona Navacchio
casale Navacchio 143.000 €
SAN GIORGIO - Nei pressi delle stazioni ferroviarie di Navacchio e San Frediano, vicno a tutti i primari servizi e vie di comunicazione, caratteristico fabbricato ottocentesco completamente ristrutturato in stile rustico toscano, disponibile appartamento posto al piano primo, composto da cucina/soggiorno […]
LEGGI ANCORA
- prezzo medio appartamento in zona OMI E1 : 2117 €/m²
- prezzo medio casale in zona OMI E1 : 2051 €/m²
Fondo Commerciale in vendita a Cascina, Navacchio
casale Navacchio
Fondo commerciale In vendita Cascina Rif-2024078 Il Fondo Commerciale in Vendita a Cascina, un'ottima opportunit per chi desidera avviare un'attivit commerciale in una zona strategica e ben servita. Attualmente libero al rogito, il fondo si presenta con una superficie totale di 1300 metri quadrati copert […]
LEGGI ANCORA
Terreno in vendita a Cascina, Navacchio
casale Navacchio
terreno agricolo in prossimit dell'ipercoop vendesi Rif.2022098 in zona ipercoop di navacchio terreno agricolo di 1220 mq vendesia chi ha bisogno di uno spazio per farsi un orto, una zona ludica per bimbi, o uno spazio aperto dove passare delle piacevoli giornate in compagnia, ma questo terreno pu essere […]
LEGGI ANCORA
Appartamento in Vendita a Cascina Arquata Ovest PREMIUM
San Lorenzo alle Corti. In quartiere residenziale vendesi ampio 5 vani frutto di una recente e raffinata ristrutturazione. L 'immobile è composto da: ingresso, cucina abitabile, balcone, spaziosa sala, due camere, studio ampio, ripostiglio […]
LEGGI ANCORA
- prezzo medio appartamento in zona OMI E1 : 2117 €/m²
- prezzo medio casale in zona OMI E1 : 2051 €/m²
vendita appartamento Cascina
casale Navacchio 169.000 €
V.ZE NAVACCHIO - NOSTRA ESCLUSIVA. All’interno di una storica villa del 1600 circondata da un parco curato di alberi secolari e giardino con pozzo per l’irrigazione, proponiamo in vendita appartamento al primo ed ultimo piano della villa, al quale si accede mediante una scala interna in caratteristica pi […]
LEGGI ANCORA
- prezzo medio appartamento in zona OMI E1 : 2117 €/m²
- prezzo medio casale in zona OMI E1 : 2051 €/m²
vendita appartamento Cascina
casale 265.000 €
CASCINA, CAPOLUOGO - NUOVA RISTRUTTURAZIONE: appartamento al PIANO TERRA CON RESEDE, composto internamente da ingresso in ampio soggiorno living con cucina a vista, LOGGIA ESTERNA dove poter mettere un tavolino e trascorrere momenti conviviali all'aperto, disimpegno con spazio per armadiatura, DUE COMODE […]
LEGGI ANCORA
- prezzo medio appartamento in zona OMI E1 : 2117 €/m²
- prezzo medio casale in zona OMI E1 : 2051 €/m²
Casa indipendente in vendita a Cascina(PI
casale Navacchio 320.000 €
In un contesto residenziale di San Prospero, a pochi passi dalla Tosco Romagnola, è in vendita un moderno terratetto di circa 100 mq di nuova costruzione, disposto su due livelli in un complesso residenziale composto da sole tre unità abitative. L 'immobile gode di un ingresso indipendente che si svilu […]
LEGGI ANCORA
- prezzo medio casa indipendente in zona OMI E1 : 2133 €/m²
- prezzo medio casa semindipendente in zona OMI E1 : 2080 €/m²
Non perdere gli altri centinaia di annunci!















