Logo Caasa ha trovato 371 annunci per:

Appartamenti o case semindipendenti o locali di sgombero in vendita a Venezia in zona Marghera - pg. 5 di 21

MODIFICA QUESTA RICERCA

Valore appartamenti in vendita in zona Marghera

Per numero di annunci degli appartamenti in vendita attualmente presenti, la zona Marghera è tra quelle più significative a Venezia. Il prezzo richiesto in media nella zona è attualmente pari a 1.980 €/m² ed è nella maggioranza dei casi compreso tra 1.530 €/m² e 2.420 €/m². Questo valore è circa il 47% inferiore alla media cittadina e rende la zona una delle più economiche di Venezia per questa tipologia.

Secondo i dati ufficiali sulle compravendite forniti dall' Agenzia delle Entrate riferiti alla zona OMI E14 (MARGHERA), che è quella più vicina alla zona Marghera, i prezzi al m² per un appartamento in vendita sono compresi tra 1.170 €/m² e 1.485 €/m².

N.B. Tutti le informazioni immobiliari sono fornite senza alcuna garanzia. Leggi il disclaimer.

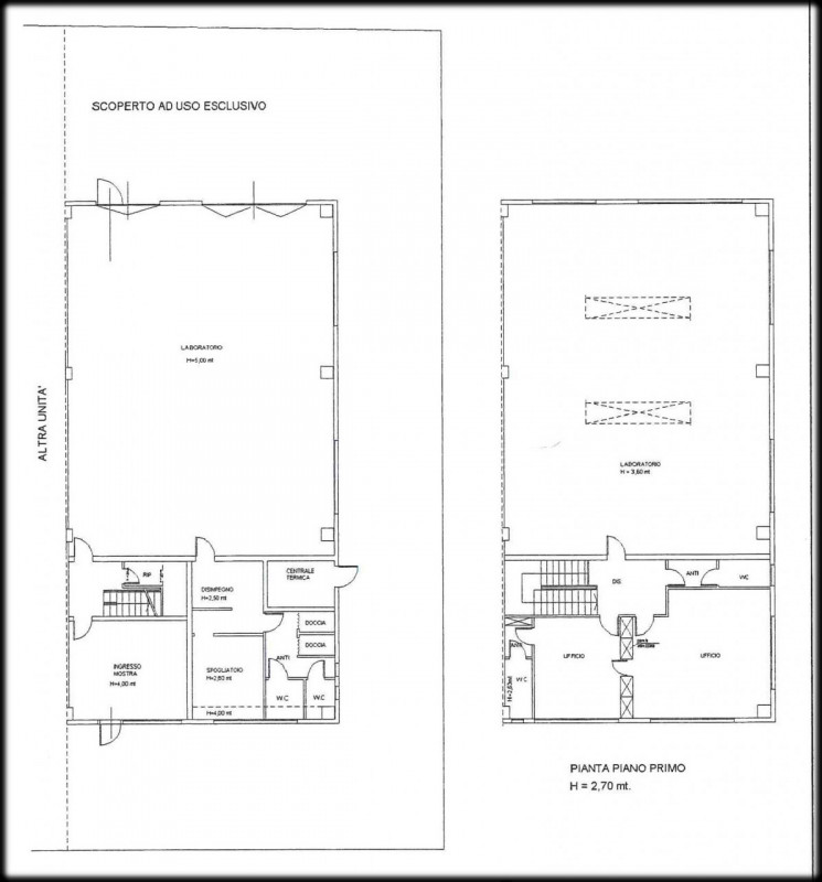
locale di sgombero in vendita a Venezia in zona Marghera

  • prezzo medio casa indipendente in zona OMI E14 : 1708 €/m²
  • prezzo medio casa semindipendente in zona OMI E14 : 1860 €/m²

Vendita Casa bifamiliare Venezia

  • prezzo medio casa indipendente in zona OMI E14 : 1708 €/m²
  • prezzo medio casa semindipendente in zona OMI E14 : 1860 €/m²

Appartamento in vendita a Venezia(VE

  • prezzo medio appartamento in zona OMI E14 : 2031 €/m²
  • prezzo medio attico in zona OMI E14 : 1882 €/m²

Non perdere gli altri 353 annunci!