Valutazione immobiliare indipendente, accurata e gratuita
L'Opinione di Caasa® per la casa indipendente in vendita a Venezia in zona Carpenedo a 780.000 € (cod.65a4e7e8)
Secondo Caasa, per la casa indipendente a Venezia in zona Carpenedo, la richiesta di 780.000 € è equilibrata rispetto agli annunci simili.
Analisi immobiliare
La casa indipendente è proposta in vendita (da ACCORDI IMMOBILIARI) a
780.000 € per una
superficie commerciale di
248 m² e quindi ad un prezzo per metro quadrato pari a
3145 €/m²
.
Questo valore
è molto vicino a quello stimato da Caasa per immobili in vendita simili per tipologia e caratteristiche, presenti nella stessa zona, che è compreso tra
2.950 €/m² e
3.272 €/m².
Considerata la posizione della casa indipendente sono stati utilizzati come raffronto i valori medi nelle zone limitrofe e soprattutto le richieste in vendita per case indipendenti in zona Carpenedo (da 1.645 €/m² a 3.330 €/m²) e per ville in zona Carpenedo (da 1.735 €/m² a 3.295 €/m²). Caasa non è stata in grado di determinare la classe energetica, ma ad affinare la stima hanno contribuito però anche lo stato dell'immobile (di nuova costruzione) e la presenza di alcune caratteristiche significative come la disponibilità di una cantina o il garage. Per i motivi esposti l'intervallo dei valori possibili per l'offerta è relativamente ampio.
Mercato immobiliare a Venezia
Per quanto riguarda più in generale la città di Venezia, sono presenti al momento ben circa 2.000 annunci per
case indipendenti in vendita (meno di un terzo dell'intera provincia)
e il maggior numero di annunci per questa tipologia sono relativi alla zona di Mestre, mentre la zona di Carpenedo risulta molto meno attiva considerando il numero di annunci presenti.
La richiesta media nella zona dove sorge la casa indipendente (Carpenedo) è pari a
2.435 €/m², non troppo distante dai valori medi cittadini per case indipendenti in vendita.
Per quanto riguarda la dinamica dei prezzi, negli ultimi 6 mesi i prezzi medi in tutta la città per case indipendenti in vendita sono
in debole aumento (+1,51%).
NOVITÀ Il risultato che vedi dipende dai dati che siamo riusciti ad estrarre dall'annuncio: ottieni una stima più accuranta di questo immobile, inserendo dati più precisi.
N.B. L'Opinione di Caasa® è un servizio sperimentale realizzato tramite tecniche di Intelligenza Artificiale, fornito senza alcuna garanzia di correttezza e completezza. Leggi il disclaimer o segnalaci un problema.
IMMAGINI
IN SINTESI
PROPOSTO DA:
ACCORDI IMMOBILIARI
Corso Mazzini, 79, Montebelluna (TV)
Verificata da Caasa®
DESCRIZIONE
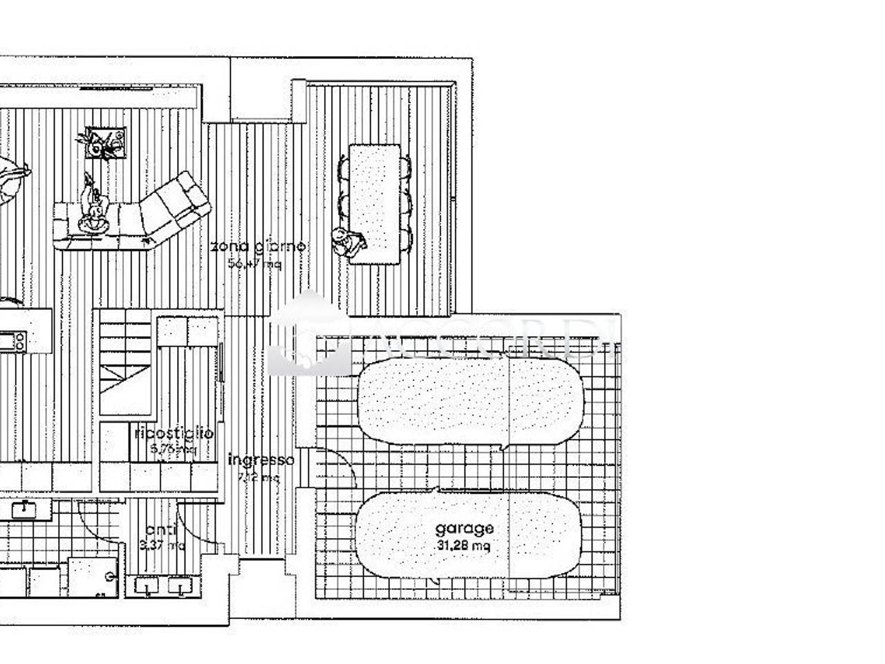
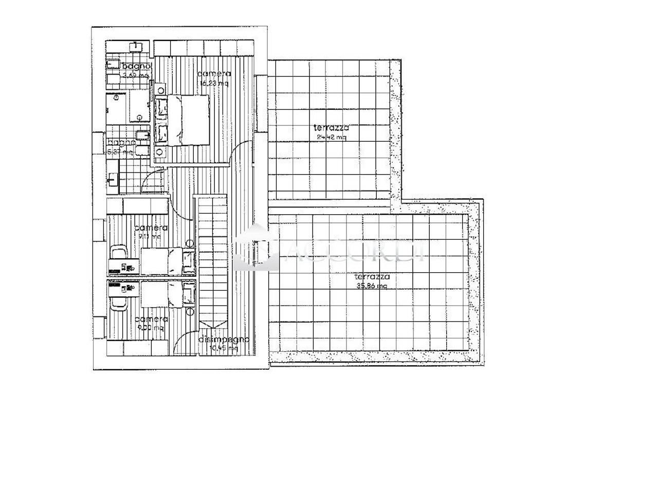
di nuova costruzione con posto auto con garage con termocondizionamento con cantina con giardino di nuova costruzione
RIF.LLME3 - VILLA DI PREGIO NUOVA COSTRUZIONE IN RESIDENCE MESTRE Proponiamo in vendita all'interno di un esclusivo residence a Mestre immerso in un oasi,in un contesto riservato,raffinato ed immerso nella tranquillità,una splendida villa singola di nuova realizzazione,pensata per chi desidera vivere il lusso autentico,fatto di comfort,privacy e di qualità costruttiva superiore.Circondata dal verde e inserita in una location di assoluto prestigio,comoda al centro storico di Mestre ed ai principali servizi,questa residenza interpreta alla perfezione un nuovo concetto di abitare contemporaneo:gli ambienti generosi,la luce naturale protagonista e finiture ricercate capaci di esprimere eleganza in ogni dettaglio.La villa si sviluppa su una superficie di circa 140 mq abitabili,i quali sono distribuiti su due livelli,ed accoglie al piano terra una esclusiva zona living,impreziosita da ampie superfici vetrate che donano luminosità e continuità tra interno e l'esterno.Il suo ingresso introduce ad un ambiente sofisticato e armonioso,dove soggiorno,pranzo e cucina semi-separata convivono in perfetto equilibrio,creando nel contempo uno spazio ideale per vivere e ricevere.Completano il piano un bagno,pratiche armadiature a muro,un ampio ripostiglio e infine un comodo garage doppio.Al piano superiore si apre una raffinata zona notte,progettata per garantire massimo benessere e riservatezza:la suite matrimoniale con bagno en-suite rappresenta uno spazio intimo ed esclusivo,affiancata da due camere singole e da un ulteriore bagno,in una distribuzione degli ambienti pensata per soddisfare le esigenze della famiglia contemporanea.All'esterno, il magnifico giardino privato di circa 250/300 mq valorizza ulteriormente la proprietà,offrendo uno spazio verde riservato dove è possibile realizzare una piscina e creare così un'oasi personale di relax ed esclusività.Dal punto di vista impiantistico e costruttivo,l'abitazione è stata concepita secondo standard di eccellenza, con soluzioni all'avanguardia come riscaldamento a pavime[…]


