Valutazione immobiliare indipendente, accurata e gratuita
Appartamento in vendita a Conegliano (cod.65a314f1)
Caasa non ha sufficienti informazioni per commentare l'appartamento in vendita a Conegliano - 65a314f1.
Analisi immobiliare
I dati in posseso di Caasa per quest'immobile sono insufficienti, inaffidabili o contraddittori per proporre un'analisi attendibile.
Mercato immobiliare a Conegliano
Per quanto riguarda più in generale la città di Conegliano, sono presenti al momento oltre 500 annunci per
appartamenti in vendita (meno del 10% dell'intera provincia)
e il maggior numero di annunci per questa tipologia sono relativi alla zona di Campolongo.
Relativamente alla dinamica dei prezzi, possiamo dire che negli ultimi 6 mesi i prezzi medi in tutta la città per appartamenti in vendita sono
in sostanziale aumento (+5,25%).
NOVITÀ Il risultato che vedi dipende dai dati che siamo riusciti ad estrarre dall'annuncio: ottieni una stima più accuranta di questo immobile, inserendo dati più precisi.
N.B. L'Opinione di Caasa® è un servizio sperimentale realizzato tramite tecniche di Intelligenza Artificiale, fornito senza alcuna garanzia di correttezza e completezza. Leggi il disclaimer o segnalaci un problema.
IMMAGINI
IN SINTESI
PROPOSTO DA:
ACCORDI IMMOBILIARI
Corso Mazzini, 79, Montebelluna (TV)
Verificata da Caasa®
DESCRIZIONE
di recente ristrutturazione con terrazza con termocondizionamento di recente ristrutturazione con ascensore con riscaldamento autonomo con caminetto con balcone
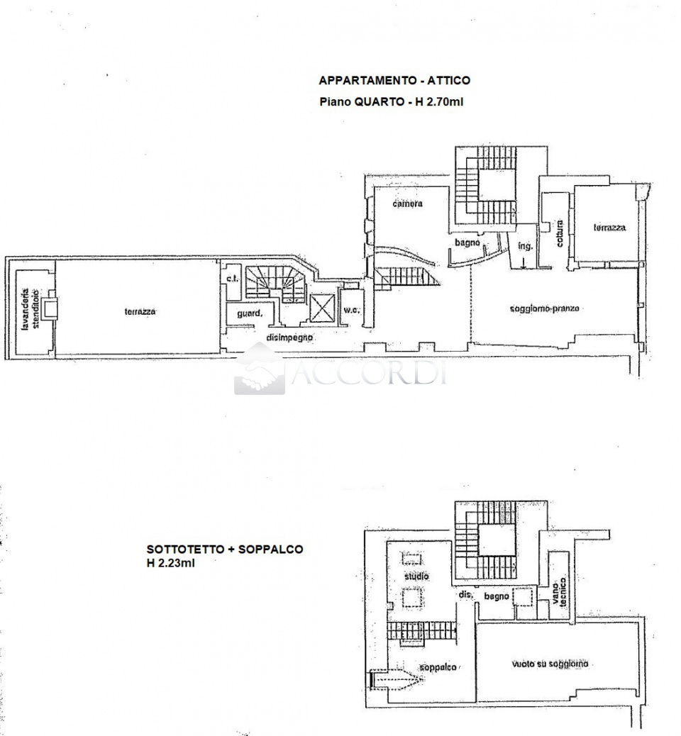
RIF. DT112 - ATTICO IN CENTRO A CONEGLIANO Nel cuore pulsante di Conegliano, affacciato sul Corso e con una vista impagabile sui tetti della città e sulla collina del castello, proponiamo in esclusiva un ATTICO di rara eleganza, un vero gioiello sospeso tra luce, privacy e panorama. Situato al quarto piano (con ascensore) e sviluppato su un unico piano, è dotato anche di una ampia zona mansardata sottotetto (alla quale si accede da una ampia scala interna situata nel soggiorno) e si sviluppa su ben 200mq. L'ingresso introduce ad un amplissimo open space living + soggiorno, impreziosito da una spettacolare vetrata a tutta parete che regala luminosità naturale durante tutto il giorno ed una vista suggestiva sul Corso. Il caminetto bio dona atmosfera e design contemporaneo, creando un ambiente accogliente e raffinato. Dalla zona giorno si accede alla prima terrazza abitabile/veranda, perfetta per pranzi all'aperto, cene conviviali o aperitivi con vista sul Corso e sui tetti di Conegliano. Sempre al piano principale troviamo: la cucina separata, funzionale e ben organizzata, una camera doppia, un bagno e l'accesso alla seconda ampia terrazza/solarium arredata, uno spazio esclusivo con vista sul Castello di Conegliano e sulle dolci colline circostanti: un angolo di assoluto relax nel cuore della città. Una scala interna conduce al piano sottotetto mansardato, dove vi è una camera matrimoniale, un ampio bagno ed un luminoso soppalco a vista, attualmente adibito a zona relax e TV (sfruttabile anche come studio od ampia libreria, uno spazio versatile e di grande fascino). Ristrutturato con finiture di pregio, materiali ricercati e soluzioni architettoniche moderne, questo attico rappresenta una soluzione abitativa esclusiva per chi desidera vivere il centro senza rinunciare a comfort, privacy e panorami mozzafiato. Un immobile sorprendente, elegante ed inaspettato. Un appartamento attico che non si racconta: si vive. Per informazioni o per organizzare una visita contatta: Daniela 329.303.2500 -- Si intende precis[…]

