N.B. Tutti le informazioni immobiliari sono fornite senza alcuna garanzia. Leggi il disclaimer.
Locali di sgombero o negozi o trivani con cantina in vendita a Tolmezzo
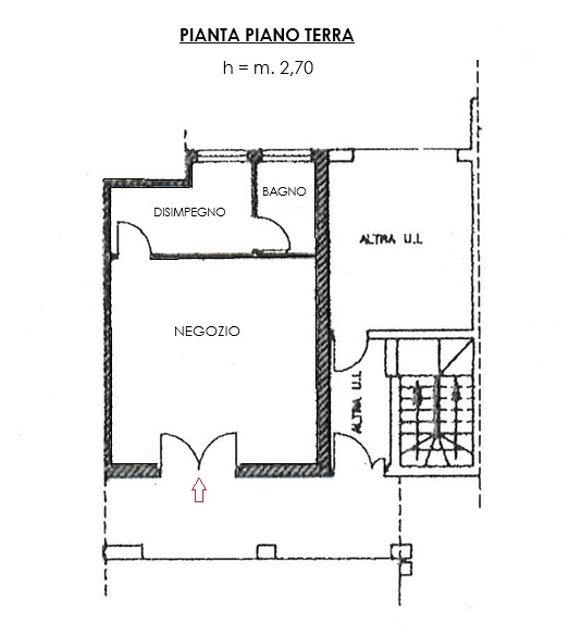
MODIFICA QUESTA RICERCATrilocale in vendita a Tolmezzo via Giacomo Matteotti PREMIUM
- prezzo medio appartamento in zona OMI B2 : 1045 €/m²
- prezzo medio casa indipendente in zona OMI B2 : 1103 €/m²
negozio in vendita a Tolmezzo
Proposto da:
negozio 29.000 €
TRASAGHIS Fraz. Alesso in ottima posizione, nella centrale P.zza 1 Maggio, a fianco ad altri negozi in attività VENDESI negozio Mq 34 vetrinato, ideale e interessante per sviluppare qualsiasi proposta commerciale o professionale. Attualmente presente attività . Prezzo richiesto: €uro 29.000/00 Per ulter […]
LEGGI ANCORA
Vendesi trilocale a Tolmezzo via Baviera
trilocale 178.000 €
Comodo e accogliente appartamento al secondo e ultimo piano di una palazzina servita da ascensore. L' appartamento è composto da cucina abitabile con terrazzo, soggiorno dotato di canna fumaria per chi ama scaldare casa con il calore del fuoco, secondo terrazzo con affaccio sull' ampio parco condominiale […]
LEGGI ANCORA
- prezzo medio appartamento in zona OMI B2 : 1045 €/m²
- prezzo medio casa indipendente in zona OMI B2 : 1103 €/m²
trivano in vendita a Tolmezzo in zona Casanova
trilocale Casanova 68.000 €
A breve distanza dalle comodità del Capoluogo Tolmezzino, nella tranquilla frazione di Casanova, VENDESI spazioso appartamento al primo piano, termo-autonomo, composto da: ingresso, disimpegno, cucina, soggiorno, tre camere, ripostiglio ed ampia terrazza panoramica. Completano la proprietà tre vani ad us […]
LEGGI ANCORA
- prezzo medio appartamento in zona Casanova : 991 €/m²
- prezzo medio appartamento a Tolmezzo : 931 €/m²
Villa unifamiliare in vendita a Tolmezzo
negozio Illegio 240.000 €
Immersa nel verde della frazione di Illegio, interessante villa su più livelli, caratterizzata dalle finiture e dalle ampie metrature tipiche degli anni 70. Al piano terra troviamo la zona giorno, dotata di ampi punti luce e ben organizzata, composta da cucina, sala da pranzo, soggiorno con accesso a ver […]
LEGGI ANCORA
- prezzo medio casa indipendente in zona OMI R1 : 571 €/m²
- prezzo medio casa indipendente a Tolmezzo : 945 €/m²
Trilocale in vendita a Terzo, Tolmezzo
trilocale Terzo 79.000 €
Tecnocasa la più grande rete di intermediazione in Europa con 2867 punti vendita in Italia e 4099 nel mondo vi propone: Proponiamo in vendita un appartamento situato al terzo piano senza ascensore di una palazzina edificata a metà degli anni 70'. L’immobile viene venduto arredato. L’ingresso apre su un a […]
LEGGI ANCORA
- prezzo medio appartamento in zona OMI B2 : 1045 €/m²
- prezzo medio appartamento a Tolmezzo : 931 €/m²
Villa unifamiliare in vendita a Tolmezzo PREMIUM
All’interno di una piccola corte a Terzo, a soli 10 minuti da Tolmezzo, questa casa in linea è la soluzione giusta per una famiglia che sogna di vivere in un contesto tranquillo e pieno di verde, ma di avere allo stesso tempo la comodità di […]
LEGGI ANCORA
- prezzo medio casa indipendente a Tolmezzo : 945 €/m²
- prezzo medio villa a Tolmezzo : 1027 €/m²
Vendita Negozio Tolmezzo
Proposto da:
negozio 420.000 €
A Tolmezzo proponiamo un immobile a reddito, una soluzione rara per qualità, stabilità e rendimento. La proprietà è interamente locata con un contratto 6+6 stipulato nel 2024, garantendo continuità fino al 2030 e offrendo fin da subito un rendimento dell'8%, un risultato difficilmente reperibile sul merc […]
LEGGI ANCORA
Stabile/palazzo in vendita a Tolmezzo via Oscura, 1
trilocale 370.000 €
Nel cuore del centro storico di Tolmezzo, casa risalente al 1500 , ristrutturata con criteri antisismici nel 1985; comprendente: una unità immobiliare autonoma, adibita ad ufficio al piano terra, ed una unità immobiliare autonoma adibita a civile abitazione al primo piano. L'abitazione è così costituita: […]
LEGGI ANCORA
- prezzo medio casa indipendente in zona OMI B1 : 959 €/m²
- prezzo medio casa semindipendente in zona OMI B1 : 979 €/m²
Trilocale in vendita a Tolmezzo via 1 Maggio, 22
trilocale 85.000 €
Alloggio posto in contesto condominiale di totali n. 14 unità abitative e n. 2 commerciali, palazzina dotata di ascensore ed ampi spazi comuni coperti e scoperti con zona parcheggi. L’appartamento è collocato al primo piano con affaccio a sud-est, dall’atrio d’ingresso sono dislocati il vano soggiorno/pr […]
LEGGI ANCORA
- prezzo medio appartamento in zona OMI B2 : 1045 €/m²
- prezzo medio appartamento a Tolmezzo : 931 €/m²
Vendesi magazzino a Tolmezzo via Pontebba
locale di sgombero
Vi proponiamo una struttura ideale ai fini di deposito e per questo ideale per un'attività di SELF STORAGE, attività molto nell'area geografica di Tolmezzo e attualmente inesistente. La metratura verrà definita con la massima disponibilità e flessibilità insieme alla proprietà. La proposta come da annunc […]
LEGGI ANCORA
Trilocale in vendita a Tolmezzo via Giacomo Matteotti, 56
trilocale 85.000 €
Tecnocasa, la più grande rete di intermediazione in Europa con 2.807 punti vendita in Italia e 4.022 nel mondo, ti propone: Appartamento bicamere situato al secondo piano di un tranquillo condominio degli anni '80, in una zona ben servita e comoda a tutti i principali servizi. L'immobile si compone di un […]
LEGGI ANCORA
- prezzo medio appartamento in zona OMI B2 : 1045 €/m²
- prezzo medio appartamento a Tolmezzo : 931 €/m²
Negozio in vendita a Tolmezzo PREMIUM
negozio in vendita a Tolmezzo
negozio 500.000 €
Nelle immediate vicinanze del centro storico di Tolmezzo, negozio con ampie vetrine su strada di forte passaggio. Il negozio ha una superficie di mq.845 al piano terra e mq.240 al piano scantinato, dispone di uno spazio scoperto adibito a parcheggio della superficie di mq.880. Recentemente l'immobile è […]
LEGGI ANCORA
Appartamento in vendita a Tolmezzo via Gian Nicola Grassi, 6
trilocale 83.000 €
Tolmezzo – in piccolo condominio ben tenuto e curato proponiamo la vendita della nuda proprietà di un appartamento bicamere al piano terra/rialzato. L’appartamento si compone nella zona giorno da: corridoio d’ingresso, ampio e luminoso soggiorno con zona pranzo e cucina separata abitabile. Nella zona not […]
LEGGI ANCORA
- prezzo medio appartamento in zona OMI B1 : 810 €/m²
- prezzo medio appartamento a Tolmezzo : 931 €/m²
negozio in vendita a Tolmezzo
Proposto da:
negozio 55.000 €
TRASAGHIS Fraz. ALESSO in ottima posizione, nella centrale P.zza 1 Maggio, a fianco ad altri negozi in attività VENDESI negozio Mq 70 vetrinato, ideale e interessante per sviluppare qualsiasi proposta commerciale o professionale. Attualmente presente attività . Prezzo richiesto €uro 55.000/00. Per ulter […]
LEGGI ANCORA
Appartamento in vendita a Tolmezzo
trilocale 83.000 €
Nel cuore di Tolmezzo, all’interno di una palazzina storica a due passi dalla piazza principale, ti aspetta questo interessante ed ampio appartamento bicamere al secondo piano, arricchito da un bel terrazzo di circa 20 mq dove vivere momenti di relax all’aperto e godere delle belle giornate. Potrai perso […]
LEGGI ANCORA
- prezzo medio appartamento in zona OMI B1 : 810 €/m²
- prezzo medio appartamento a Tolmezzo : 931 €/m²
Negozio in vendita a Tolmezzo
negozio 80.000 €
In corte interna del centro storico negozio/ufficio posto al piano terra. il locale si suddivide in due ampi vani e servizio igienico. Ampie vetrine sulla corte, riscaldamento autonomo a gas metano. Ottimo prezzo. www.immobiliarealpeadria.it - tel. 0433 41010
LEGGI ANCORA
Trilocale in vendita a Tolmezzo via Giacomo Matteotti PREMIUM
- prezzo medio appartamento in zona OMI B2 : 1045 €/m²
- prezzo medio casa indipendente in zona OMI B2 : 1103 €/m²
trivano in vendita a Tolmezzo
trilocale 97.000 €
In strategica zona, a due passi dal Centro Studi, Stazione Corriere ed Ospedale, VENDESI in palazzina di soli 4 appartamenti, luminosa unità immobiliare termo-autonoma, al piano primo, composta da ingresso, sala pranzo con angolo cucina e veranda, due camere, ripostiglio e bagno. Nel retro dell'abitazion […]
LEGGI ANCORA
- prezzo medio appartamento in zona OMI B2 : 1045 €/m²
- prezzo medio casa indipendente in zona OMI B2 : 1103 €/m²
Vendesi trilocale a Tolmezzo
trilocale 97.000 €
Tecnocasa la più grande rete di intermediazione in Europa con 2867 punti vendita in Italia e 4099 nel mondo vi propone: In una tranquilla palazzina di sole quattro unità abitative, senza spese condominiali, in vendita appartamento bicamere situato al primo ed ultimo piano. L’immobile è stato recentemente […]
LEGGI ANCORA
- prezzo medio appartamento in zona OMI B2 : 1045 €/m²
- prezzo medio casa indipendente in zona OMI B2 : 1103 €/m²
casa in linea in vendita a Tolmezzo
negozio 58.000 €
Nel centro storico di Tolmezzo proponiamo casa in linea disposta su due livelli oltre sottotetto, così composta: negozio con magazzino al piano terra per complessivi mq.58; abitazione con ingresso autonomo comprendente: disimpegno, vano scale, cantina e piccola corte al piano terra; due camere, cucina, […]
LEGGI ANCORA
- prezzo medio casa indipendente in zona OMI R1 : 571 €/m²
- prezzo medio casa semindipendente in zona OMI R1 : 425 €/m²
Non perdere gli altri 33 annunci!








