Valutazione immobiliare indipendente, accurata e gratuita
Appartamento in vendita a Bellusco a 175.000 € (cod.64ff7b5f)
Caasa non ha sufficienti informazioni per commentare l'appartamento in vendita a Bellusco - 64ff7b5f.
Analisi immobiliare
I dati in posseso di Caasa per quest'immobile sono insufficienti, inaffidabili o contraddittori per proporre un'analisi attendibile.
Mercato immobiliare a Bellusco
Per quanto riguarda più in generale il comune di Bellusco, sono presenti al momento più di cento annunci per
appartamenti in vendita (meno dell'1% dell'intera provincia) .
La dinamica dei prezzi in tutto il comune mostra che negli ultimi 6 mesi, i prezzi per appartamenti in vendita sono
in sostanziale aumento (+5,60%).
NOVITÀ Il risultato che vedi dipende dai dati che siamo riusciti ad estrarre dall'annuncio: ottieni una stima più accuranta di questo immobile, inserendo dati più precisi.
N.B. L'Opinione di Caasa® è un servizio sperimentale realizzato tramite tecniche di Intelligenza Artificiale, fornito senza alcuna garanzia di correttezza e completezza. Leggi il disclaimer o segnalaci un problema.
IMMAGINI
IN SINTESI
PROPOSTO DA:
Neovit s.r.l. Consulting
DESCRIZIONE
da ristrutturare con cantina con giardino da ristrutturare in asta giudiziaria
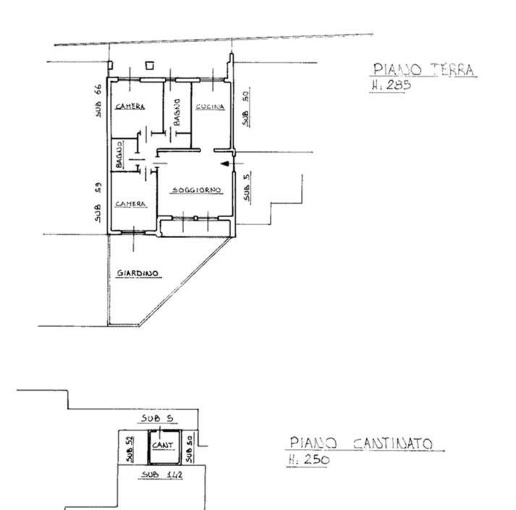
Appartamento IN ASTA, piano terra composto da n. 3 locali, cucina, n. 2 bagni, giardino pertinenziale al piano terra e locale cantina al piano interrato oltre box piano s1. NEOVIT è uno studio di consulenza che accompagna il cliente in tutto il perco […]
