Valutazione immobiliare indipendente, accurata e gratuita
Appartamento in vendita a Locate di Triulzi a 86.250 € (cod.652f21b6)
Caasa non ha sufficienti informazioni per commentare l'appartamento in vendita a Locate di Triulzi - 652f21b6.
Analisi immobiliare
I dati in posseso di Caasa per quest'immobile sono insufficienti, inaffidabili o contraddittori per proporre un'analisi attendibile.
Mercato immobiliare a Locate di Triulzi
Per quanto riguarda più in generale il comune di Locate di Triulzi, sono presenti al momento più di 150 annunci per
appartamenti in vendita (meno dell'1% dell'intera provincia) .
Possiamo inoltre considerare che in tutto il comune negli ultimi 6 mesi, i prezzi per appartamenti in vendita sono
in aumento (+3,70%).
NOVITÀ Il risultato che vedi dipende dai dati che siamo riusciti ad estrarre dall'annuncio: ottieni una stima più accuranta di questo immobile, inserendo dati più precisi.
N.B. L'Opinione di Caasa® è un servizio sperimentale realizzato tramite tecniche di Intelligenza Artificiale, fornito senza alcuna garanzia di correttezza e completezza. Leggi il disclaimer o segnalaci un problema.
IMMAGINI
IN SINTESI
PROPOSTO DA:
Geom. La Porta
DESCRIZIONE
di nuova costruzione in asta giudiziaria con cantina con terrazza con balcone di nuova costruzione di recente ristrutturazione
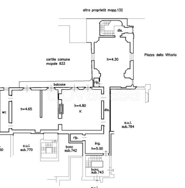
DATA ASTA 27/02/2026 SINCRONA Locate di Triulzi (MI) Piazza della Vittoria n. 7 LOTO 1)L’immobile è collocato al piano terra di un fabbricato ed è composto, come da scheda catastale, da: cucina, bagno e soggiorno/camera da letto. LOTTO 2)Appartamento […]
