Valutazione immobiliare indipendente, accurata e gratuita
Appartamento in vendita a Cassano d'Adda a 140.000 € (cod.65079f64)
Caasa non ha sufficienti informazioni per commentare l'appartamento in vendita a Cassano d'Adda - 65079f64.
Analisi immobiliare
I dati in posseso di Caasa per quest'immobile sono insufficienti, inaffidabili o contraddittori per proporre un'analisi attendibile.
Mercato immobiliare a Cassano d'Adda
Per quanto riguarda più in generale la città di Cassano d'Adda, sono presenti al momento più di 200 annunci per
appartamenti in vendita (meno dell'1% dell'intera provincia)
e il maggior numero di annunci per questa tipologia sono relativi alla zona di Groppello d'Adda.
Per quanto riguarda la dinamica dei prezzi, negli ultimi 6 mesi i prezzi medi in tutta la città per appartamenti in vendita sono
in forte aumento (+11,40%).
NOVITÀ Il risultato che vedi dipende dai dati che siamo riusciti ad estrarre dall'annuncio: ottieni una stima più accuranta di questo immobile, inserendo dati più precisi.
N.B. L'Opinione di Caasa® è un servizio sperimentale realizzato tramite tecniche di Intelligenza Artificiale, fornito senza alcuna garanzia di correttezza e completezza. Leggi il disclaimer o segnalaci un problema.
IMMAGINI
IN SINTESI
PROPOSTO DA:
TEMPOCASA Cassano D'Adda
DESCRIZIONE
con cantina con terrazza con balcone con cucina abitabile con climatizzazione
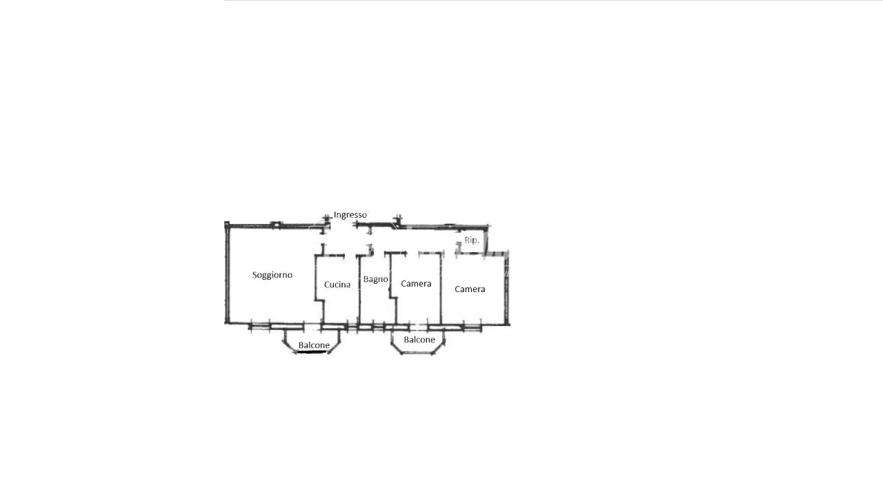
Rif: 145/TC - AMPIO TRILOCALE CON BOX IN PIENO CENTRO PAESE, ZONA MERCATO! In pieno centro paese, situato nella zona del mercato, a due passi da servizi bancari, trasporti, supermercato e scuole, proponiamo in vendita ampio trilocale sito al piano primo con doppio balcone. Internamento è formato da un ampio ingresso che ben suddivide i locali dell’abitazione. La zona giorno è composta da un ampio soggiorno di quasi 30 mq e accesso al primo balcone dotato di tenda da sole e da una cucina abitabile. Il lungo corridoio ci conduce al bagno dotato sia da vasca da bagno che da box doccia in muratura, ad un comodo ripostiglio, alla prima camera con accesso al balcone anche questo con tenda da sole e una grande camera matrimoniale. Gli infissi sono stati sostituiti negli anni e sono in alluminio, sono presenti le tapparelle sulle finestre (quelle dei balconi sono automatizzate), lo scaldabagno è stato cambiato di recente, ed è presente uno split dell’aria condizionata. La soluzione è completata dalla cantina e dal box singolo



