Valutazione immobiliare indipendente, accurata e gratuita
L'Opinione di Caasa® per la casa indipendente a Cassano d'Adda in zona Groppello d'Adda a 500.000 € (cod.64f304a8)
Secondo Caasa, per la casa indipendente a Cassano d'Adda Groppello d'Adda, la richiesta di 500.000 € è significativamente vantaggiosa rispetto agli annunci simili.
Analisi immobiliare
La casa indipendente, situata nella zona OMI B2, è proposta in vendita a
500.000 € per una
superficie commerciale di
246 m² e quindi ad un prezzo per metro quadrato pari a
2032 €/m²
.
Questo valore
è significativamente più basso di quello stimato da Caasa per immobili in vendita simili per tipologia e caratteristiche e localizzati nella stessa zona OMI, che è compreso tra
2.412 €/m² e
2.598 €/m².
Grazie alla conoscenza con buona approssimazione della localizzazione dell'immobile, è stato possibile utilizzare come raffronto i dati medi elaborati esattamente nella zona OMI di appertenenza (INTERO CENTRO URBANO) per case indipendenti (da 1.510 €/m² a 2.815 €/m²) e per ville (da 1.680 €/m² a 2.865 €/m²). Anche se Caasa non è riuscita a determinare la classe energetica, ad affinare la stima ha contribuito anche la presenza di alcune caratteristiche significative come il garage o la disponibilità di una cantina. In virtù di queste considerazioni l'intervallo dei valori accettabili per l'offerta è relativamente limitato.
Mercato immobiliare a Cassano d'Adda
Per quanto riguarda più in generale la città di Cassano d'Adda, sono presenti al momento più di 200 annunci per
case indipendenti in vendita (meno dell'1% dell'intera provincia)
e il maggior numero di annunci per questa tipologia sono relativi alla zona di Cascine San Pietro, ma anche la zona di Groppello d'Adda è molto attiva dal punto di vista immobiliare.
Per quanto riguarda la richiesta media in zona Groppello d'Adda, dove sorge la casa indipendente, essa è pari a circa
2.145 €/m² per case indipendenti in vendita.
Per quanto riguarda la dinamica dei prezzi, negli ultimi 6 mesi i prezzi medi in tutta la città per case indipendenti in vendita sono
in debole aumento (+1,40%).
NOVITÀ Il risultato che vedi dipende dai dati che siamo riusciti ad estrarre dall'annuncio: ottieni una stima più accuranta di questo immobile, inserendo dati più precisi.
N.B. L'Opinione di Caasa® è un servizio sperimentale realizzato tramite tecniche di Intelligenza Artificiale, fornito senza alcuna garanzia di correttezza e completezza. Leggi il disclaimer o segnalaci un problema.
IMMAGINI
IN SINTESI
DESCRIZIONE
con cantina con garage con cucina abitabile
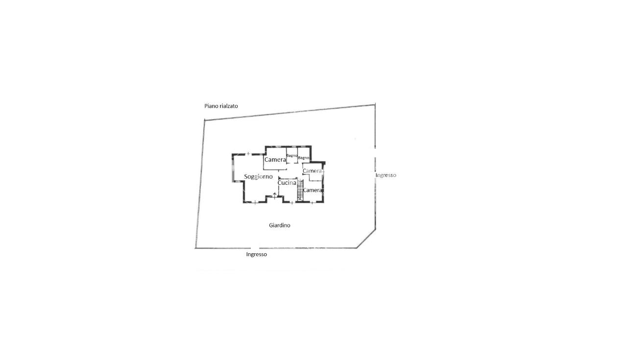
Rif: 224/VC - VILLA SINGOLA A GROPPELLO D'ADDA! In via Vaprio, in una zona tranquilla e riservata, vicino alla piazza principale, alle scuole elementari, all'asilo ed al Naviglio Martesana proponiamo in vendita villa singola libera sui quattro lati disposta su unico livello. L'elegante vialetto d'ingresso, ci conduce all'interno della soluzione disposta in un ampio e doppio soggiorno, cucina abitabile, tre camere da letto e doppi servizi, uno dotato di vasca da bagno mentre il secondo con box doccia. Tramite scala interna si accede al piano interrato, composto da un ampio locale utilizzato come autorimessa; A concludere troviamo uno spazioso locale lavanderia, il locale tecnico ed una sempre comoda ed utile cantina. Un secondo ingresso è presente anche da via Padre Galastri. UNICA NEL SUO GENERE



