Valutazione immobiliare indipendente, accurata e gratuita
Appartamento a Castiglione delle Stiviere in zona Gozzolina a 160.000 € (cod.6539c120)
Caasa non ha sufficienti informazioni per commentare l'appartamento a Castiglione delle Stiviere Gozzolina - 6539c120.
Analisi immobiliare
I dati in posseso di Caasa per quest'immobile sono insufficienti, inaffidabili o contraddittori per proporre un'analisi attendibile.
Mercato immobiliare a Castiglione delle Stiviere
Per quanto riguarda più in generale la città di Castiglione delle Stiviere, sono presenti al momento più di 150 annunci per
appartamenti in vendita (meno del 5% dell'intera provincia)
e il maggior numero di annunci per questa tipologia sono relativi proprio alla zona di Gozzolina.
Per quanto riguarda la richiesta media in zona Gozzolina, dove sorge l'appartamento, essa è pari a circa
1.835 €/m² per appartamenti in vendita.
Per quanto riguarda la dinamica dei prezzi, negli ultimi 6 mesi i prezzi medi in tutta la città per appartamenti in vendita sono
in aumento (+3,94%).
NOVITÀ Il risultato che vedi dipende dai dati che siamo riusciti ad estrarre dall'annuncio: ottieni una stima più accuranta di questo immobile, inserendo dati più precisi.
N.B. L'Opinione di Caasa® è un servizio sperimentale realizzato tramite tecniche di Intelligenza Artificiale, fornito senza alcuna garanzia di correttezza e completezza. Leggi il disclaimer o segnalaci un problema.
IMMAGINI
IN SINTESI
PROPOSTO DA:
ITALCASA CROTONE S.R.L.
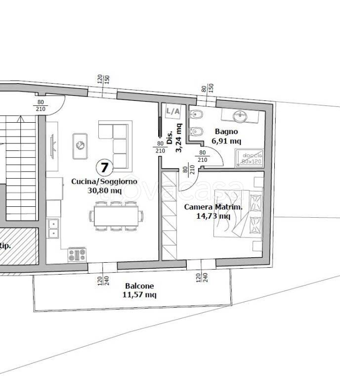
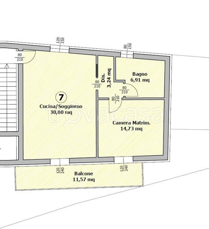
DESCRIZIONE
di nuova costruzione con terrazza di nuova costruzione con balcone con angolo cottura
Appartamento in vendita a Castiglione delle Stiviere, nella zona di Gozzolina, con vista urbana. Questa nuova costruzione, prevista per il 2026, offre un design moderno e personalizzabile secondo le preferenze dell'acquirente. Con una superficie abitabile di 55,00 m², l'unità è composta da 2 locali, tra cui 1 camera da letto e 1 bagno. L'appartamento presenta un angolo cottura a vista, ideale per chi ama cucinare e socializzare nello stesso tempo. Inoltre, è dotato di un balcone, perfetto per un po' di relax all'aperto. L'immobile è costruito con materiali di alta qualità, garantendo comfort e durabilità. Questa è un'opportunità eccellente per chi cerca una nuova residenza in una località strategica e in crescita come Castiglione delle Stiviere. Non perdere l'occasione di personalizzare la tua nuova casa


