Valutazione immobiliare indipendente, accurata e gratuita
L'Opinione di Caasa® per l'appartamento in vendita a Castiglione delle Stiviere a 285.000 € (cod.6539c10d)
Secondo Caasa, per l'appartamento a Castiglione delle Stiviere, la richiesta di 285.000 € è significativamente vantaggiosa rispetto agli annunci simili.
Analisi immobiliare
L'appartamento è proposto in vendita a
285.000 € per una
superficie commerciale di
154 m² e quindi ad un prezzo per metro quadrato pari a
1850 €/m²
.
Tale prezzo
è più conveniente di quello stimato da Caasa per immobili in vendita simili per tipologia, caratteristiche e classe energetica, che è compreso tra
2.166 €/m² e
2.343 €/m².
Sono stati utilizzati nel raffronto i soli valori medi cittadini per appartamenti (da 1.250 €/m² a 2.210 €/m²) e per trivani (da 1.440 €/m² a 2.205 €/m²), visto che non è stato possibile determinare in modo affidabile la posizione dell'immobile. All'elaborazione della stima ha però contribuito anche la classe energetica (A+) oltre alla condizione dell'immobile (di nuova costruzione) e alla presenza di alcune caratteristiche significative come il garage. Per queste considerazioni i valori considerati accettabili per l'offerta costituiscono un intervallo comunque ampio.
Mercato immobiliare a Castiglione delle Stiviere
Per quanto riguarda più in generale la città di Castiglione delle Stiviere, sono presenti al momento più di 150 annunci per
appartamenti in vendita (meno del 5% dell'intera provincia)
e il maggior numero di annunci per questa tipologia sono relativi alla zona di Gozzolina.
Relativamente alla dinamica dei prezzi, possiamo dire che negli ultimi 6 mesi i prezzi medi in tutta la città per appartamenti in vendita sono
in aumento (+3,94%).
NOVITÀ Il risultato che vedi dipende dai dati che siamo riusciti ad estrarre dall'annuncio: ottieni una stima più accuranta di questo immobile, inserendo dati più precisi.
N.B. L'Opinione di Caasa® è un servizio sperimentale realizzato tramite tecniche di Intelligenza Artificiale, fornito senza alcuna garanzia di correttezza e completezza. Leggi il disclaimer o segnalaci un problema.
IMMAGINI
IN SINTESI
PROPOSTO DA:
ITALCASA CROTONE S.R.L.
DESCRIZIONE
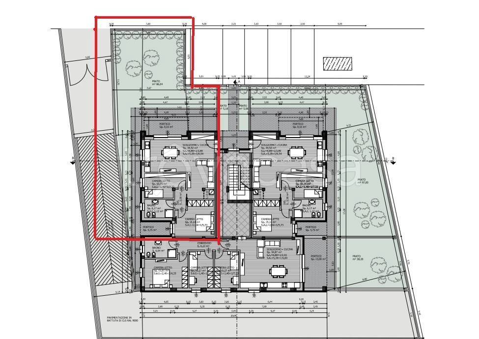
di nuova costruzione con posto auto con garage con giardino con terrazza di nuova costruzione
Castiglione delle Stiviere in costruzione , consegna prevista estate 2026 , proponiamo in moderna palazzina di sole sei unità , appartamento posizionato al piano terra con giardino privato Ottima posizione a pochi minuti dal centro Entrando ampio soggiorno con cucina a vista con doppia esposizione ed accesso al bellissimo giardino privato comodo disimpegno che conduce alle due camere da letto ed al bagno completato con finiture di alta qualità. Gli interni possono essere personalizzati secondo i gusti del cliente, con pavimenti in parquet laminato e gres porcellanato che garantiscono eleganza e praticità. L'accesso alla luce naturale è ottimizzato grazie all'orientamento a est, sud e ovest, che illumina perfettamente gli ambienti durante tutta la giornata. Il valore aggiunto di questo appartamento è rappresentato dalla presenza di una terrazza, ideale per momenti di relax o per cene all'aperto nelle serate estive. Completa l'appartamento un ampio garage Questa proprietà rappresenta un eccellente equilibrio tra design moderno, comfort e funzionalità, rendendola la scelta perfetta per chi desidera vivere in un contesto vivace e dinamico senza rinunciare a un ambiente accogliente e personalizzabile. Contattaci per maggiori informazioni o per prenotare una visita


