Valutazione immobiliare indipendente, accurata e gratuita
Casa indipendente a Castiglione delle Stiviere in zona Gozzolina a 325.000 € (cod.64c07258)
Caasa non ha sufficienti informazioni per commentare la casa indipendente in vendita in zona Gozzolina - 64c07258.
Analisi immobiliare
I dati in posseso di Caasa per quest'immobile sono insufficienti, inaffidabili o contraddittori per proporre un'analisi attendibile.
Mercato immobiliare a Castiglione delle Stiviere
Per quanto riguarda più in generale la città di Castiglione delle Stiviere, sono presenti al momento più di 150 annunci per
case indipendenti in vendita (meno del 5% dell'intera provincia)
e il maggior numero di annunci per questa tipologia sono relativi proprio alla zona di Gozzolina.
Per quanto riguarda la richiesta media in zona Gozzolina, dove sorge la casa indipendente, essa è pari a circa
1.320 €/m² per case indipendenti in vendita.
Per quanto riguarda la dinamica dei prezzi, negli ultimi 6 mesi i prezzi medi in tutta la città per case indipendenti in vendita sono
sostanzialmente stabili (+0,55%).
NOVITÀ Il risultato che vedi dipende dai dati che siamo riusciti ad estrarre dall'annuncio: ottieni una stima più accuranta di questo immobile, inserendo dati più precisi.
N.B. L'Opinione di Caasa® è un servizio sperimentale realizzato tramite tecniche di Intelligenza Artificiale, fornito senza alcuna garanzia di correttezza e completezza. Leggi il disclaimer o segnalaci un problema.
IMMAGINI
IN SINTESI
PROPOSTO DA:
ITALCASA CROTONE S.R.L.
DESCRIZIONE
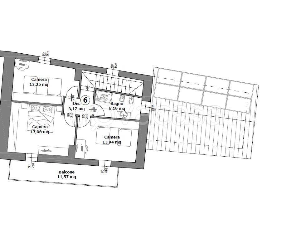
di nuova costruzione con posto auto con giardino con garage di nuova costruzione con cantina di recente ristrutturazione
Scopri la tua nuova villetta a schiera a Castiglione delle Stiviere, nella tranquilla zona di Gozzolina. Questa proprietà di nuova ristrutturazione con consegna nel 2026, ti offre uno stile di vita moderno e sostenibile. Questa casa è perfetta per te e la tua famiglia. Offre 5 locali spaziosi, tra cui 3 accoglienti camere da letto e 2 bagni moderni. Goditi la possibilità di personalizzare i pavimenti e rivestimenti secondo il tuo stile e i tuoi gusti personali. La cucina è abitabile e si apre direttamente al giardino, permettendoti di pranzare all'aperto in totale relax. L'ampio soggiorno è perfetto per rilassarsi e passare serate memorabili con gli amici. Tra le caratteristiche principali, la proprietà include un garage spazioso con sezionale motorizzata, ideale per la tua comodità e sicurezza. Inoltre, è dotata di un impianto fotovoltaico da 3 kW, che ti aiuta a risparmiare sui costi energetici e a contribuire a un futuro più verde. Non manca una cantina per una maggiore comodità e spazio di archiviazione. Non perdere l'opportunità di vivere in questa villetta da sogno. Contattaci subito per ulteriori informazioni e per fissare un appuntamento


