Valutazione immobiliare indipendente, accurata e gratuita
Appartamento a Castiglione delle Stiviere in zona Gozzolina a 215.000 € (cod.64c07245)
Caasa non ha sufficienti informazioni per commentare l'appartamento a Castiglione delle Stiviere Gozzolina - 64c07245.
Analisi immobiliare
I dati in posseso di Caasa per quest'immobile sono insufficienti, inaffidabili o contraddittori per proporre un'analisi attendibile.
Mercato immobiliare a Castiglione delle Stiviere
Per quanto riguarda più in generale la città di Castiglione delle Stiviere, sono presenti al momento più di 150 annunci per
appartamenti in vendita (meno del 5% dell'intera provincia)
e il maggior numero di annunci per questa tipologia sono relativi proprio alla zona di Gozzolina.
Per quanto riguarda la richiesta media in zona Gozzolina, dove sorge l'appartamento, essa è pari a circa
1.560 €/m² per appartamenti in vendita.
Relativamente alla dinamica dei prezzi, possiamo dire che negli ultimi 6 mesi i prezzi medi in tutta la città per appartamenti in vendita sono
in sostanziale aumento (+5,54%).
NOVITÀ Il risultato che vedi dipende dai dati che siamo riusciti ad estrarre dall'annuncio: ottieni una stima più accuranta di questo immobile, inserendo dati più precisi.
N.B. L'Opinione di Caasa® è un servizio sperimentale realizzato tramite tecniche di Intelligenza Artificiale, fornito senza alcuna garanzia di correttezza e completezza. Leggi il disclaimer o segnalaci un problema.
IMMAGINI
IN SINTESI
PROPOSTO DA:
ITALCASA CROTONE S.R.L.
DESCRIZIONE
di nuova costruzione di nuova costruzione di recente ristrutturazione
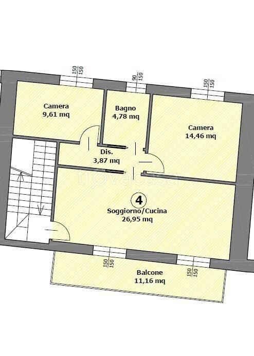
Benvenuto nel tuo futuro spazio abitativo a Castiglione delle Stiviere, precisamente nella tranquilla zona di Gozzolina! Questo moderno appartamento di 74 m² è un vero gioiello, pronto ad accoglierti con uno stile fresco e contemporaneo. Ideale per giovani coppie o per chi cerca un rifugio accogliente. Nuova ristrutturazione con consegna prevista nel 2026, l'appartamento si sviluppa al piano primo su un unico livello e offre una sofisticata disposizione degli spazi: 3 ampi locali, tra cui 2 camere da letto perfette per garantire il giusto comfort e 1 bagno moderno che soddisfa ogni esigenza. La zona giorno è caratterizzata da una cucina a vista, con spazioso soggiorno. Inoltre, hai la possibilità di personalizzare i pavimenti e rivestimenti, assicurandoti che ogni angolo rispecchi il tuo stile unico. Un dettaglio che sicuramente apprezzerai sono le spese condominiali incredibilmente basse di soli 10,00 € al mese! Un'opportunità imperdibile per chi cerca un'eccellente qualità della vita. Non lasciartelo sfuggire, contattaci subito per scoprire come fare di questo appartamento la tua nuova casa


