Valutazione immobiliare indipendente, accurata e gratuita
Terreno edificabile in vendita a Poncarale a 175.000 € (cod.654c9d18)
Caasa non ha sufficienti informazioni per commentare il terreno edificabile in vendita a Poncarale - 654c9d18.
Analisi immobiliare
I dati in posseso di Caasa per quest'immobile sono insufficienti, inaffidabili o contraddittori per proporre un'analisi attendibile.
Mercato immobiliare a Poncarale
Per quanto riguarda più in generale il comune di Poncarale, sono presenti al momento più di dieci annunci per
terreni edificabili in vendita (meno dell'1% dell'intera provincia) .
Vedi altre informazioni direttamente su
Mercato-Immobiliare.info
NOVITÀ Il risultato che vedi dipende dai dati che siamo riusciti ad estrarre dall'annuncio: ottieni una stima più accuranta di questo immobile, inserendo dati più precisi.
N.B. L'Opinione di Caasa® è un servizio sperimentale realizzato tramite tecniche di Intelligenza Artificiale, fornito senza alcuna garanzia di correttezza e completezza. Leggi il disclaimer o segnalaci un problema.
IMMAGINI
IN SINTESI
PROPOSTO DA:
COGEFI S.r.l.
DESCRIZIONE
con giardino
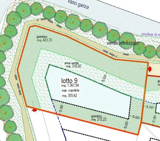
In una zona residenziale connotata dalla presenza di eleganti ville indipendenti di recentissima edificazione, disponiamo di ultimi lotti di terreno urbanizzati edificabili ideali per costruirvi abitazioni singole, bifamiliari e tri/quadrifamiliari. I lotti sono ben esposti, con accessi comodi e indipendenti, per offrirti la massima privacy e comodità . Non perdere l 'occasione di vivere in un luogo tranquillo, servito e strategico per raggiungere la città in pochi minuti, anche con i mezzi pubblici (linea 10). Proponiamo il lotto 9, con una superficie di 1367 mq, un volume edificabile di 1000 mc, una forma prevalentemente rettangolare, con un sedime edificabile in pianta di 355 mq. Tenuto conto della fascia di rispetto dal vicino vaso garza, l 'area esterna ricavabile è molto ampia, sfruttabile a giardino, zona svago e spazi a servizio del futuro fabbricato. Possiamo metterti in contatto con imprese per preventivare i costi di realizzazione della tua nuova casa e che offrono, se non hai un tecnico che ti segue, anche un servizio "chiavi in mano", dalla progettazione alla consegna, aiutandoti a trasformare la tua visione in realtà . Se devi vendere la tua casa per comprare possiamo occuparcene, seguendoti dalla prima fase di stima fino alla compravendita, coordinando tra i vari soggetti coinvolti i pagamenti e i tempi di consegna in relazione all 'ingresso nella nuova casa. Evadiamo le richieste di informazioni al più presto, entro la giornata lavorativa.Immobile gestito in collaborazione con agenzia partner Abaco Immobiliare







