N.B. Tutti le informazioni immobiliari sono fornite senza alcuna garanzia. Leggi il disclaimer.
Terreno residenziale in vendita a Santa Maria Imbaro PREMIUM
Terreno in vendita a Santa Maria Imbaro(CH
Vendesi terreno agricolo a Santa Maria Imbaro
terreno agricolo
Proponiamo in vendita un esclusivo terreno agricolo di circa 32.000 mq situato nel comune di Santa Maria Imbaro, in una zona di facile accesso dalla strada principale asfaltata e strategicamente posizionata. Il terreno è caratterizzato da una morfologia completamente pianeggiante, ideale per la lavorazio […]
LEGGI ANCORA
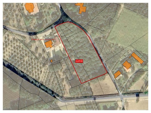
terreno agricolo in vendita a Santa Maria Imbaro
terreno agricolo
Ampio terreno agricolo di 3,2 Ettari con Uliveto Proponiamo in vendita un esclusivo terreno agricolo di circa 32.000 mq situato nel comune di Santa Maria Imbaro, in una zona di facile accesso dalla strada principale asfaltata e strategicamente posizionata. Il terreno è caratterizzato da una morfologia c […]
LEGGI ANCORA
Terreno edificabile in vendita a Santa Maria Imbaro
terreno agricolo
In vendita Terreno industriale a Santa Maria Imbaro, si estende su una superficie totale di 25.120 metri quadrati, caratterizzati da un paesaggio pianeggiante e facilmente accessibile. Sul fronte strada, alcuni lotti, sono coltivati a vigneto, tutte le utenze sono disponibili. Situato in una zona strateg […]
LEGGI ANCORA
terreno agricolo in vendita a Santa Maria Imbaro
Proposto da:
Terreno residenziale in vendita a Santa Maria Imbaro PREMIUM
Agricolo - Seminativo a Santa Maria Imbaro
Proposto da:
terreno agricolo 48.000 €
VENDESI TERRENO AGRICOLO esteso mq 11270 ca. - PIANEGGIANTE FRONTE STRADA 34-40 MT. CA. Irrigato dalla BONIFICA (dotato di impianto di irrigazione) confinante con 2 con 2 strade comunali possibilità di edificare mq 340 ca. Tipo di contratto: vendita Provincia: Chieti Categoria: terreno Tipologia immobile […]
LEGGI ANCORA
Terreno residenziale in vendita a Santa Maria Imbaro
terreno agricolo 68.000 €
Terreno edificabile di mq. 2.730, sito nel comune di Santa Maria Imbaro (CH), antistante la pasticceria "La Dolcissima". La destinazione urbanistica del terreno è produttiva, artigianale, commerciale di completamento e di nuova urbanizzazione. Possibilità di realizzare un fabbricato di mq. 280 circa, con […]
LEGGI ANCORA
Terreno residenziale in vendita a Santa Maria Imbaro
terreno agricolo 50.000 €
Nel Comune di Santa Maria Imbaro, a poca distanza dal centro di Lanciano e dal Casello Autostradale Val di Sangro, proponiamo lotto edificabile di 1.365 mq, sito in zona D2 (Produttiva Artigianale - Commerciale di Completamento). Tale zona può essere destinata alla realizzazione di edifici e spazi attrez […]
LEGGI ANCORA
Terreno residenziale in vendita a Santa Maria Imbaro
terreno agricolo 70.000 €
A poca distanza dalla Costa dei Trabocchi, dal capoluogo Lanciano e dal casello della Val di Sangro, sito in zona tranquilla e residenziale, nel Comune di Santa Maria Imbaro, proponiamo lotto di terreno a destinazione edificabile, per circa 1.347 mq, ed agricola, per circa 3.700 mq, per un totale di circ […]
LEGGI ANCORA
Terreno residenziale in vendita a Santa Maria Imbaro
terreno agricolo 70.000 €
Lotto di terreno edificabile di totali 1.830 mq ricadente in zona D5 produttiva residenziale di completamento su cui è possibile edificare una metratura di circa 370 mq fuori terra per una villa singola o per la realizzazione di una bifamiliare. Inoltre, la vicinanza al centri abitati limitrofi, garantis […]
LEGGI ANCORA
Terreno residenziale in vendita a Santa Maria Imbaro PREMIUM
Rustico - Casale in vendita residenziale a Santa Maria Imbaro - Chieti
Proposto da:
terreno agricolo 90.000 €
Sulla via per la costa e vicino un borgo riconosciuto fra i pi? belli d'Italia ? in vendita una CASA DI CAMPAGNA INDIPENDENTE con stanze a pi? livelli sullo stesso piano e magazzini e rimesse per un totale di 360 mq circa, da ristrutturare. Alla propriet? si accede attraverso un lungo viale fino a raggiu […]
LEGGI ANCORA









