N.B. Tutti le informazioni immobiliari sono fornite senza alcuna garanzia. Leggi il disclaimer.
Capannoni o locali commerciali o locali di sgombero, di nuova costruzione in vendita a Desenzano del Garda
MODIFICA QUESTA RICERCACapannone industriale in vendita a Desenzano del Garda, Desenzano del Garda PREMIUM
- prezzo medio locale commerciale in zona OMI D1 : 1010 €/m²
- prezzo medio ufficio in zona OMI D1 : 1892 €/m²
Vendita Magazzino, SAN PIETRO CLARENZA
locale di sgombero San Pietro 78.000 €
In vendita a San Pietro Clarenza, in via della Madonnina, proponiamo un ampio magazzino di 140 mq situato al piano terra, ideale per diverse destinazioni d'uso. Questo spazio, caratterizzato da un unico vano divisibile in più ambienti e un bagno, offre numerose possibilità di personalizzazione e ristrutt […]
LEGGI ANCORA
locale di sgombero in vendita a Desenzano del Garda
locale di sgombero 380.000 €
Magnifico lotto di terreno edificabile di circa 1800 mq con possibilità di realizzare circa 250 metri quadrati di costruzione fuori terra. Sul terreno esiste già una cantina interrata di circa 100 mq in ottimo stato e in superficie un magazzino di circa 80 mq. Posizione tranquilla e soleggiata comoda ai […]
LEGGI ANCORA
villa in vendita a Desenzano del Garda
locale di sgombero 1.050.000 €
Desenzano del Garda, in zona servita e vicino al lago, proponiamo villa singola su lotto di 1000 mq, composta da n. 2 appartamenti. Piano terra di 135 mq, piano primo 135 mq, magazzino 220 mq. Possibilità di ampliamento, fino a 450 mq ovvero 1.350 mc. Vista lago dal primo piano. Prezzo trattabile
LEGGI ANCORA
- prezzo medio casa indipendente in zona OMI B1 : 4127 €/m²
- prezzo medio pentavano in zona OMI B1 : 4332 €/m²
Hotel in Vendita a Desenzano del Garda Rivoltella del Garda
locale di sgombero Rivoltella
A Desenzano del Garda, nella frazione di Rivoltella, a soli 700 metri dal lago e a 1,5 km dalla tangenziale, disponibile per la vendita intero stabile insistente su un lotto di circa 1.140 mq e dotato di tre ingressi carrai.L 'edificio è composto da:- al piano terra, ristorante attualmente in attività , […]
LEGGI ANCORA
azienda commerciale in vendita a Desenzano del Garda
locale di sgombero
Cedesi attività di pasticceria a Desenzano del Garda. Si propone in vendita un?attività di pasticceria artigianale con laboratorio completamente attrezzato. Il locale, elegante e curato, è già avviato e dispone di spazi funzionali: laboratorio con macchinari abbattitori e forni di alta qualità , spog […]
LEGGI ANCORA
Ufficio in vendita a Desenzano del Garda, Desenzano del Garda PREMIUM
- prezzo medio ufficio in zona OMI B2 : 3338 €/m²
- prezzo medio ufficio a Desenzano del Garda : 2974 €/m²
Capannone industriale in vendita a Desenzano Del Garda
locale di sgombero 249.000 €
Proponiamo in vendita un magazzino situato nel comune di Desenzano del Garda (BS), Italia. La struttura gode di una posizione strategica, comoda alla tangenziale e ai caselli autostradali, nonché ai servizi principali della zona. Il prezzo di vendita è di 249.000 EUR. Il deposito magazzino offre una fort […]
LEGGI ANCORA
locale di sgombero in vendita a Desenzano del Garda
locale di sgombero Via Nazario Sauro 180.000 €
Proponiamo in vendita un immobile di circa 80 mq in Via Nazario Sauro a Desenzano del Garda (BS). PARTICOLARITÀ E DESCRIZIONE Ubicazione: L'ufficio è ubicato in Via Nazario Sauro a Desenzano del Garda, su strada di buon passaggio pedonale, a pochi passi dal centro storico e da Via Marconi. Superficie: […]
LEGGI ANCORA
- prezzo medio ufficio in zona OMI B2 : 3338 €/m²
- prezzo medio ufficio a Desenzano del Garda : 2974 €/m²
Attività  commerciale in Vendita a Desenzano del Garda
locale di sgombero
Cedesi attività di pasticceria a Desenzano del Garda. Si propone in vendita un 'attività di pasticceria artigianale con laboratorio completamente attrezzato. Il locale, elegante e curato, è già avviato e dispone di spazi funzionali: laboratorio con macchinari abbattitori e forni di alta qualità , spo […]
LEGGI ANCORA
locale commerciale in vendita a Desenzano del Garda
locale commerciale 155.000 €
A Desenzano del Garda in una delle zone più vive e ricercate del centro storico proponiamo in vendita un locale commerciale di 52 metri quadrati, ideale per chi desidera avviare o ampliare la propria attività. L'immobile attualmente libero da locazioni, si presenta in ottime condizioni e dispone di un'am […]
LEGGI ANCORA
Vendita Magazzino, SAN PIETRO CLARENZA
Proposto da:
locale di sgombero San Pietro 78.000 €
San Pietro Clarenza centralissimo (ufficio postale) deposito 140 mq sito al piano seminterrato con due grandi aperture luminose adibito a ufficio/deposito h. 4.00 con servizio nuovo, diviso in ufficio accoglienza clienti , sala per attività e locale , oltre a spogliatoi, locale adatto per attività ricrea […]
LEGGI ANCORA
- prezzo medio ufficio in zona OMI D1 : 1892 €/m²
- prezzo medio ufficio in zona San Pietro : 1618 €/m²
Capannone industriale in vendita a Desenzano del Garda via Giulio Bevilacqua, 3, Rivoltella PREMIUM
Capannone industriale in vendita a Desenzano del Garda, Desenzano del Garda
locale commerciale 650.000 €
Proponiamo in vendita un ampio spazio artigianale di circa 500 mq ubicato nella principale zona industriale di Desenzano del Garda. PARTICOLARITÀ E DESCRIZIONE Ubicazione: L'immobile è comodamente collegato alle maggiori vie di comunicazione e si trova all’interno della principale area produttiva del com […]
LEGGI ANCORA
- prezzo medio appartamento in zona OMI D1 : 3491 €/m²
- prezzo medio locale commerciale in zona OMI D1 : 1010 €/m²
capannone in vendita a Desenzano del Garda
capannone Rivoltella 650.000 €
Capannone di nuova costruzione in zona artigianale industriale di rivoltella con superficie di circa 440 mq oltre a 220 mq di uffici allestiti con bagni sala riunione 3 uffici cucina
LEGGI ANCORA
Vendita casa indipendente Via Gamabara Desenzano del Garda (BS
locale di sgombero
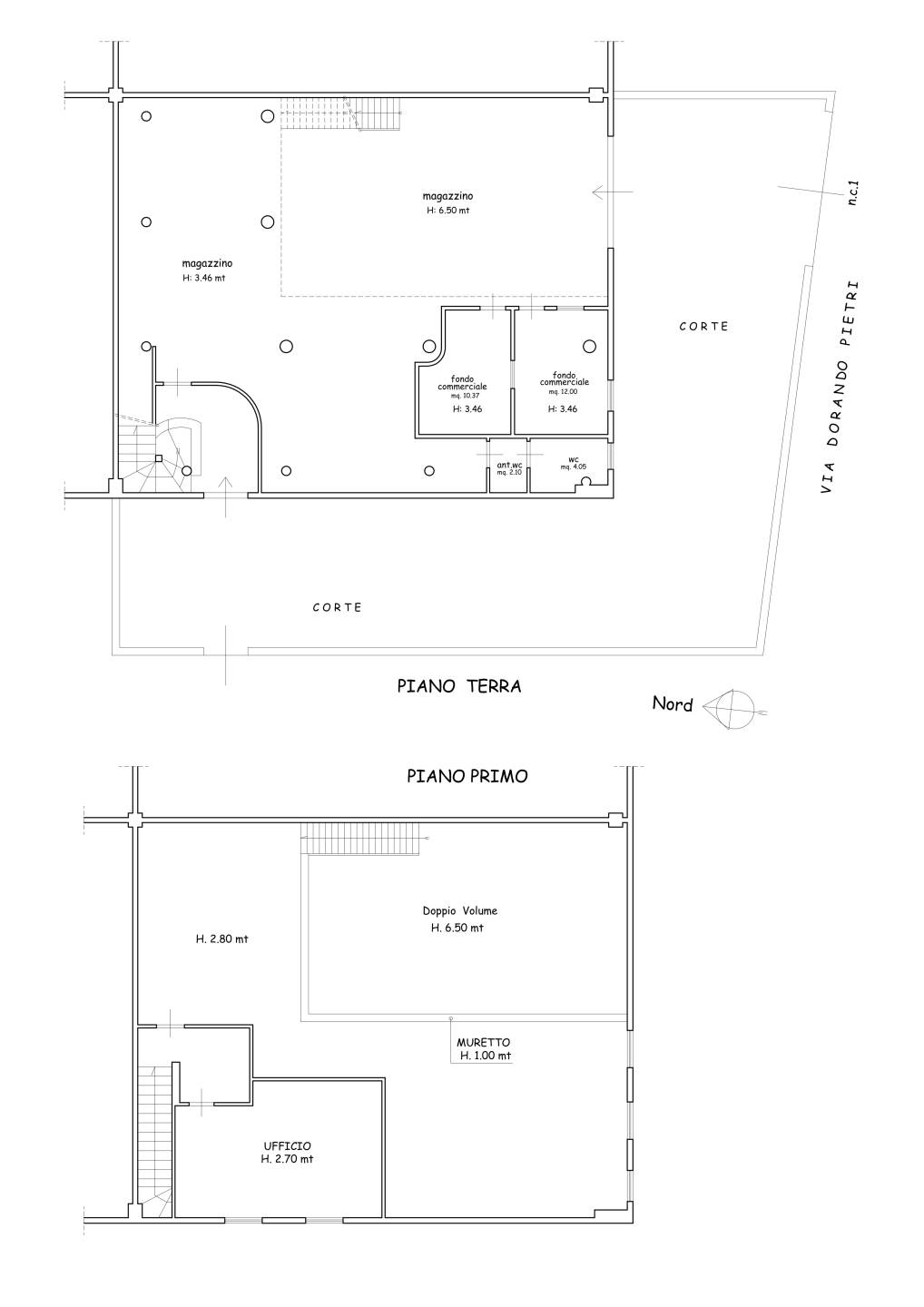
rif. AS060-1<br><br>In posizione centrale a Desenzano del Garda, proponiamo importante edificio di 1200 mq slp disposto su due livelli (5 mt H a piano), sottotetto di 600 mq con altezza sfruttabile, un magazzino adiacente di ca 250 mq e corte esclusiva di 3.000 mq.<br><br>La posizione residenziale e pres […]
LEGGI ANCORA
Casa indipendente in vendita a Desenzano Del Garda
locale di sgombero
rif. AS060-1 In posizione centrale a Desenzano del Garda, proponiamo importante edificio di 1200 mq slp disposto su due livelli (5 mt H a piano), sottotetto di 600 mq con altezza sfruttabile, un magazzino adiacente di ca 250 mq e corte esclusiva di 3.000 mq. La posizione residenziale e prestigiosa, oltre […]
LEGGI ANCORA
Casa singola in vendita a San Pietro a Vico - Lucca
Proposto da:
locale di sgombero San Pietro 245.000 €
E010C- In vendita esclusiva casa singola di ampia metratura a Lucca, nella zona di San Pietro A Vico. Questa proprietà, risalente al 1955, offre una superficie di 225 mq distribuiti su 10 locali. Si presta quindi, con l'aiuto di una ristrutturazione a molteplici soluzioni abitative come ad esempio: la po […]
LEGGI ANCORA
- prezzo medio casa indipendente in zona OMI D1 : 3205 €/m²
- prezzo medio appartamento in zona OMI D1 : 3491 €/m²
Capannone industriale in vendita a Desenzano del Garda, Desenzano del Garda PREMIUM
- prezzo medio locale commerciale in zona OMI D1 : 1010 €/m²
- prezzo medio ufficio in zona OMI D1 : 1892 €/m²
locale di sgombero in vendita a Desenzano del Garda
locale di sgombero 140.000 €
COSA SAPERE DELL'IMMOBILE Proponiamo in vendita ufficio di circa 63 metri quadrati dotato di magazzino interrato, con servizio igienico. DESCRIZIONE E PARTICOLARITÀ Proponiamo vendita un ufficio di circa 63 metri quadrati situato in posizione strategica a Desenzano del Garda, ideale per studi professi […]
LEGGI ANCORA
- prezzo medio ufficio in zona OMI B2 : 3338 €/m²
- prezzo medio ufficio a Desenzano del Garda : 2974 €/m²
Casa Indipendente in vendita a Desenzano del Garda, Desenzano del Garda
locale di sgombero
rif. AS060-1 In posizione centrale a Desenzano del Garda, proponiamo importante edificio di 1200 mq slp disposto su due livelli (5 mt H a piano), sottotetto di 600 mq con altezza sfruttabile, un magazzino adiacente di ca 250 mq e corte esclusiva di 3.000 mq. La posizione residenziale e prestigiosa, oltre […]
LEGGI ANCORA
Vendita Capannone industriale, in zona SAN PIETRO IN PALAZZI, CECINA
Proposto da:
locale di sgombero San Pietro 425.000 €
Cecina -San Pietro Palazzi In ottima posizione commerciale/artigianale all'interno di comparto di nuova viabilità nella zona artigianale, capannone di recente costruzione composto da magazzino e due uffici oltre antibagno e bagno al piano terra , collegamento con scala interna al piano primo con altri tr […]
LEGGI ANCORA
- prezzo medio trivano in zona OMI D1 : 3482 €/m²
- prezzo medio ufficio in zona OMI D1 : 1892 €/m²
Non perdere gli altri 92 annunci!









