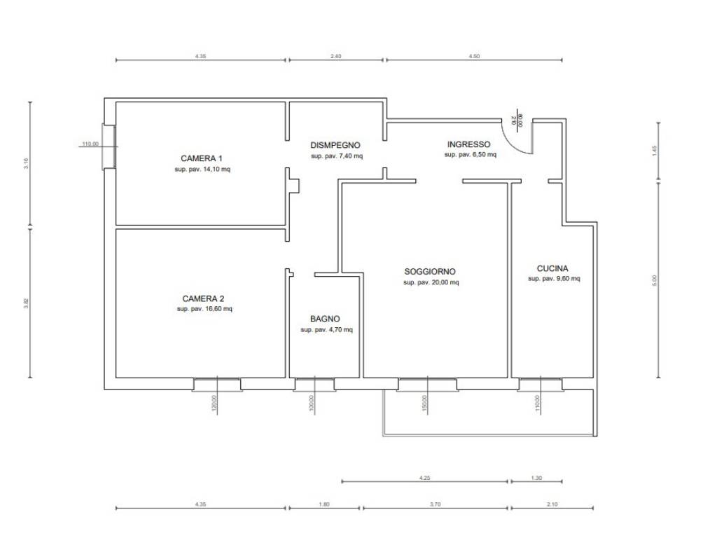
Valore quadrivani in vendita in zona San Vitale
Per numero di annunci dei quadrivani in vendita attualmente presenti, la zona San Vitale è tra quelle più significative a Bologna. Il prezzo al m² mediamente richiesto in zona è attualmente pari a 3.680 €/m² ed è nella maggioranza dei casi compreso tra 2.880 €/m² e 4.450 €/m². Questo valore è molto simile alla media cittadina e rende la zona una delle più costose di Bologna per questa tipologia.
N.B. Tutti le informazioni immobiliari sono fornite senza alcuna garanzia. Leggi il disclaimer.












