N.B. Tutti le informazioni immobiliari sono fornite senza alcuna garanzia. Leggi il disclaimer.
Negozi, di recente ristrutturazione in vendita a Chioggia in zona Brondolo - pg. 3 di 4
MODIFICA QUESTA RICERCAVendesi negozio a Chioggia via Pigafetta, Sottomarina PREMIUM
Negozio in vendita a Chioggia viale Cristoforo Colombo, Sottomarina
negozio Sottomarina 160.000 €
La tua esigenza e' quella di investire nel mercato immobiliare? Fronte mare in ottima posizione e facilmente individuabile Eurocasa vi propone questo immobile di c.a. 50 mq. , completamente arredato , comodo a parcheggi, completamente ristrutturato e con tecnologie innovative pompa di calore, raffrescame […]
LEGGI ANCORA
Villa bifamiliare in vendita a Chioggia
negozio Sottomarina viale Veneto 390.000 €
RIF.3583 - BRONDOLO - Proponiamo in vendita una splendida villa bifamiliare con costruzione ultimata situata in una zona tranquilla e residenziale, questa villa offre ampi spazi e finiture di alta qualità. La proprietà si sviluppa su due livelli ed è composta da un luminoso ingresso con un ampio living, […]
LEGGI ANCORA
- prezzo medio casa indipendente in zona OMI R1 : 1474 €/m²
- prezzo medio villa in zona OMI R1 : 1515 €/m²
Attività commerciale CHIOGGIA €.86000 MQ.120 Vani 4
negozio Sottomarina 86.000 €
Grazie alla posizione ben servita, con facilità di parcheggio nelle immediate vicinanze, questo immobile rappresenta una soluzione ideale per negozi, studi professionali, showroom, laboratori artigianali, centri estetici o sanitari, oppure come investimento a reddito. In una delle zone più dinamiche di S […]
LEGGI ANCORA
Vendesi negozio a Chioggia via Pigafetta, Sottomarina
negozio Sottomarina 320.000 €
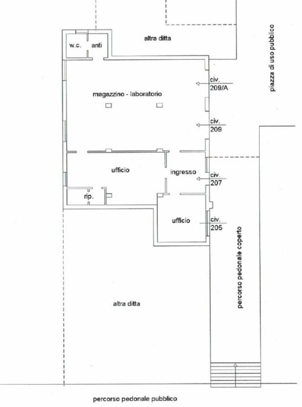
Rif. 2511V SOTTOMARINA - Locale con destinazione d'uso commerciale di circa 160 mq avente molte pareti vetrate, completo di bagno e con scoperto esclusivo, sito in via Pigafetta. Altezza interna 3,50 m. Ideale per asilo nido, studi medici o tecnici, in quanto vicino a tutti i servizi come autobus di line […]
LEGGI ANCORA
Vendesi negozio a Chioggia viale Mediterraneo
Proposto da:
negozio Sottomarina 170.000 €
RIF.549 - Vicinissimo a V.le Mediterraneo, proponiamo in vendita un negozio di 100 mq da poter dividere e disporre in base alle esigenze della parte acquirente. Il locale è dotato di bagno, rampa d'accesso per i disabili e presenta tre vetrine fronte strada. Il locale è affittato con un contratto d'affit […]
LEGGI ANCORA
- prezzo medio monolocale in zona OMI B2 : 3025 €/m²
- prezzo medio monolocale in zona Sottomarina : 2775 €/m²
Attività commerciale CHIOGGIA €.155000 MQ.50 Vani 2 PREMIUM
Negozio in vendita a Chioggia viale Mediterraneo
negozio Sottomarina 748.000 €
Vendesi spazio commerciale di ampie metrature, dotato di ampie vetrate su via di passaggio, molto luminoso in zona molto comoda vicino allarteria principale di Sottomarina. Lattivita commerciale e munita di parcheggio e inoltre si trova vicino alla fermata dei mezzi pubblici
LEGGI ANCORA
Attività  commerciale in Vendita a Chioggia Sottomarina
Proposto da:
negozio Sottomarina 110.000 €
RIF.468 - A Sottomarina, in zona residenziale e di facile parcheggio, proponiamo in vendita un negozio di circa 50 mq locato con un canone annuo di euro 6.600. L 'immobile, con ingresso indipendente, è composto da due locali, corridoio ed è dotato di bagno finestrato con antibagno. A completare la prop […]
LEGGI ANCORA
- prezzo medio appartamento in zona OMI B2 : 2891 €/m²
- prezzo medio casa semindipendente in zona OMI B2 : 2771 €/m²
Attività commerciale CHIOGGIA €.130000 MQ.8 Vani 1
negozio Sottomarina 130.000 €
RIF. G149 SOTTOMARINA DI CHIOGGIA - Cessione camion/pescheria ambulante pesce crudo e cotto, patente B, motrice di circa 8 m , con aria condizionata revisione appena fatta gommata a nuovo, camion in ottimo stato, tutto a norma, due frighi due congelatori un forno e 4 friggitrici. Il camion è stato sempre […]
LEGGI ANCORA
Negozio in vendita a Chioggia, Sottomarina
negozio Sottomarina 110.000 €
Marina Immobiliare propone in vendita locale commerciale categoria catastale C/1, situato a Sottomarina a pochi passi dal mare. L’immobile si trova al piano terra di una palazzina di tre piani, in posizione strategica e ad alto passaggio sia pedonale che veicolare, ideale per attività che richiedono visi […]
LEGGI ANCORA
Villa bifamiliare in Via BRONDOLO - VIA A.CONTARINI 00, Chioggia
negozio Brondolo Via Andrea Contarini 420.000 €
RIF.2077 - BRONDOLO - Proponiamo in vendita una splendida villa bifamiliare di nuova costruzione nel comune di Sottomarina Di Chioggia - Chioggia (VE) località Brondolo. Situata in una zona tranquilla e residenziale, questa villa offre ampi spazi e finiture di alta qualità. La proprietà si sviluppa su du […]
LEGGI ANCORA
- prezzo medio casa indipendente in zona OMI R1 : 1474 €/m²
- prezzo medio villa in zona OMI R1 : 1515 €/m²
Villa bifamiliare in vendita a Chioggia PREMIUM
- prezzo medio casa indipendente in zona OMI R1 : 1474 €/m²
- prezzo medio villa in zona OMI R1 : 1515 €/m²
Vendesi attività commerciale a Chioggia, Sottomarina
negozio Sottomarina 60.000 €
RIF. 3890 SOTTOMARINA - Cessione d'azienda storica nel territorio di Salone d'auto e autofficina specializzata. Il locale con oltre 40 anni di attività composto da ampio salone con ufficio e punto vendita, autoficina specializzata con due carroponti, ingresso al magazzino per ricambi al piano seminterrat […]
LEGGI ANCORA
Vendesi negozio a Chioggia viale Nicolò Zeno, Sottomarina
negozio Sottomarina 320.000 €
Proponiamo in vendita un locale commerciale a Sottomarina, situato in una laterale di Viale Mediterraneo. Il locale, di circa 222 mq di superficie commerciale, è suddiviso in 4 locali. L'immobile si presenta in buone condizioni ed è dotato di un bagno con antibagno. La posizione del locale è particolarme […]
LEGGI ANCORA
- prezzo medio quadrivano in zona OMI B2 : 2867 €/m²
- prezzo medio quadrivano in zona Sottomarina : 2613 €/m²
Immobile in vendita a Chioggia(VE
locale di sgombero in vendita a Chioggia in zona Sottomarina
negozio Sottomarina 250.000 €
RIF. 415 - SOTTOMARINA, NEGOZIO CON PLATEATICO ESCLUSIVO Euro 250.000. RIF. 415 - A Sottomarina, in zona residenziale ed a pochi passi dalla spiaggia, proponiamo in vendita un locale commerciale attualmente adibito a bar con 3 bagni, magazzino e laboratorio. Troviamo inoltre ampio scoperto esclusivo. V […]
LEGGI ANCORA
- prezzo medio locale commerciale in zona OMI B2 : 2055 €/m²
- prezzo medio locale commerciale in zona Sottomarina : 1823 €/m²
Vendita Attivita commerciale Chioggia
negozio Sottomarina
Nel tratto più vivace e strategico del lungomare di Sottomarina, a pochissimi passi dalla spiaggia, Officina Abitare propone in vendita un'importante attività ristorativa, punto di riferimento consolidato per residenti e turisti. La struttura si sviluppa interamente al piano terra su una superficie compl […]
LEGGI ANCORA
Vendesi negozio a Chioggia via Pigafetta, Sottomarina PREMIUM
Negozio in vendita a Chioggia viale Cristoforo Colombo, Sottomarina
negozio Sottomarina 140.000 €
Situato in una delle zone più strategiche e ad alta visibilità, Eurocasa propone in vendita un luminoso negozio di circa 70 mq, attualmente adibito ad ufficio, in Viale Cristoforo Colombo. Questo spazio commerciale al piano terra, dotato di ben tre ampie vetrine, offre un'ottima opportunità per chi cerca […]
LEGGI ANCORA
Appartamento in vendita a Chioggia
negozio Sottomarina 129.000 €
SOTTOMARINA: In una zona vicina a supermercati, fermata degli autobus e altri servizi essenziali, negozio con entrata indipendente, che può essere trasformato in appartamento. L\'immobile, attualmente a uso commerciale, può essere trasformato in abitazione con spese tecniche a carico dei venditori. La ri […]
LEGGI ANCORA
- prezzo medio appartamento in zona OMI B2 : 2891 €/m²
- prezzo medio casa indipendente in zona OMI B2 : 2770 €/m²
vendita Ristorante Chioggia
negozio Sottomarina viale Veneto
RIF. 3298-SOTTOMARINA- In zona strategica, a due passi dal Lungomare, Gabetti propone in cessione d'azienda rinomata pizzeria d'asporto, completamente attrezzata composta da area somministrazione, pizzeria, 2 bagni (uno per il pubblico e uno per il personale), laboratorio e magazzino. Dispone anche di do […]
LEGGI ANCORA
Non perdere gli altri 38 annunci!









