Valutazione immobiliare indipendente, accurata e gratuita
Ufficio in vendita a Zanè a 113.000 € (cod.64dddf6f)
Caasa non ha sufficienti informazioni per commentare l'ufficio in vendita a Zanè - 64dddf6f.
Analisi immobiliare
I dati in posseso di Caasa per quest'immobile sono insufficienti, inaffidabili o contraddittori per proporre un'analisi attendibile.
Mercato immobiliare a Zanè
Per quanto riguarda più in generale il comune di Zanè, sono presenti al momento più di dieci annunci per
uffici in vendita (meno dell'1% dell'intera provincia) .
NOVITÀ Il risultato che vedi dipende dai dati che siamo riusciti ad estrarre dall'annuncio: ottieni una stima più accuranta di questo immobile, inserendo dati più precisi.
N.B. L'Opinione di Caasa® è un servizio sperimentale realizzato tramite tecniche di Intelligenza Artificiale, fornito senza alcuna garanzia di correttezza e completezza. Leggi il disclaimer o segnalaci un problema.
IMMAGINI
IN SINTESI
PROPOSTO DA:
Zanè
DESCRIZIONE
di recente costruzione di recente costruzione
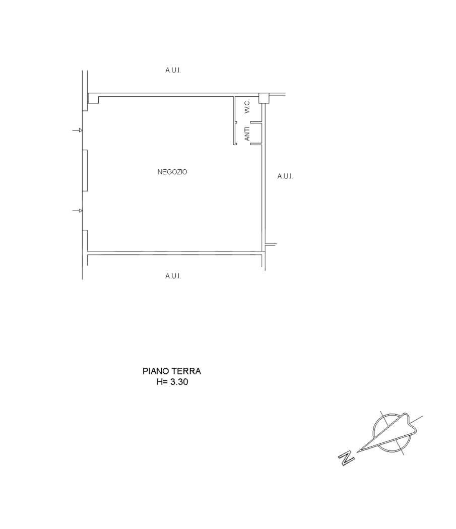
Locale commerciale artigianale polifunzionale a Zan (VI) Hai bisogno di uno spazio versatile e moderno per la tua attivit? In vendita a Zan, locale commerciale di 117 mq al piano terra. L'immobile, con altezza di 3,30 metri, ideale per diverse destinazioni d'uso: negozio, laboratorio, magazzino o ufficio. Dotato di due ingressi, uno vetrato e uno con serranda motorizzata, garantisce la massima flessibilit. Gli impianti elettrici, rifatti nel 2021, supportano sia la corrente 220V che la 380V, con quadri elettrici e doppie prese. L'illuminazione a LED e la presenza di un bagno completano la dotazione, offrendo uno spazio gi pronto all'uso. Caratteristiche: - Superficie: 117 mq - Altezza: 3,30 m - Impianti recenti (2021) - Corrente 220V e 380V - Doppio ingresso - Illuminazione a LED - Bagno Contattaci per maggiori informazioni e per fissare una visita! - SC9463095


