Valutazione immobiliare indipendente, accurata e gratuita
Capannone in affitto a Zanè a 2.000 € mese (cod.656e2272)
Caasa non ha sufficienti informazioni per commentare il capannone in affitto a Zanè - 656e2272.
Analisi immobiliare
I dati in posseso di Caasa per quest'immobile sono insufficienti, inaffidabili o contraddittori per proporre un'analisi attendibile.
Mercato immobiliare a Zanè
Per quanto riguarda più in generale il comune di Zanè, sono presenti al momento meno di dieci annunci per
capannoni in affitto (meno del 5% dell'intera provincia) .
Vedi altre informazioni direttamente su
Mercato-Immobiliare.info
NOVITÀ Il risultato che vedi dipende dai dati che siamo riusciti ad estrarre dall'annuncio: ottieni una stima più accuranta di questo immobile, inserendo dati più precisi.
N.B. L'Opinione di Caasa® è un servizio sperimentale realizzato tramite tecniche di Intelligenza Artificiale, fornito senza alcuna garanzia di correttezza e completezza. Leggi il disclaimer o segnalaci un problema.
IMMAGINI
IN SINTESI
PROPOSTO DA:
HOUSELIFE srl
DESCRIZIONE
da ristrutturare con termocondizionamento con riscaldamento autonomo senza ascensore da ristrutturare
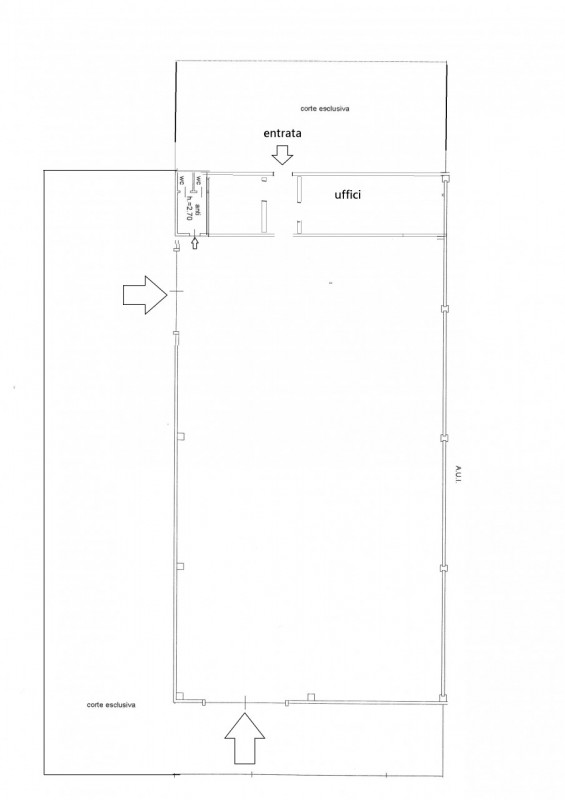
SCHIO - Z.I: CAPANNONE INDUSTRIALE di mq 500 circa H 7,50 di cui 100 mq di uffici circa, con impiantI, area esterna di pertinenza. Cl. en. G. Canone richiesto Euro 2.000 + IVA. LIBERO DA APRILE 2026. N.B. LA VIABILITA' PER L'ACCESSO ALL'INTERNO DEL CAPANNONE E' LIMITATA SOLO A MOTRICI - AUTOCARRI 3 ASSI, NO BILICI E AUTOARTICOLATI CON RIMORCHIO Trattasi di capannone ad uso industriale in C.A. di mq 500 circa composto da una campata unica di mq 500 di cui 100 mq di uffici con servizi e carroponte da 6,3 TON H 6.20 al gancio. Ideale per produzione, montaggi, carpenterie, lavorazioni meccaniche ecc... L'immobile ha due entrate per l'accesso nella zona produttiva ed è fornito di impianto elettrico di illuminazione, impianto dell'aria con area esterna di pertinenza. NB. LE IMMAGINI SONO FORNITE AL SOLO SCOPO ILLUSTRATIVO E PUBBLICITARIO A tutela della privacy, informiamo che l'indirizzo dell' immobile è puramente indicativo. Cl. en. G. Houselife ️ 0445 575106 ️ info@houselife.it

