Valutazione immobiliare indipendente, accurata e gratuita
Casa indipendente in vendita a Vicenza in zona Anconetta a 440.000 € (cod.6575e6ed)
Caasa non ha sufficienti informazioni per commentare la casa indipendente a Vicenza in zona Anconetta - 6575e6ed.
Analisi immobiliare
I dati in posseso di Caasa per quest'immobile sono insufficienti, inaffidabili o contraddittori per proporre un'analisi attendibile.
Mercato immobiliare a Vicenza
Per quanto riguarda più in generale la città di Vicenza, sono presenti al momento ben oltre mille annunci per
case indipendenti in vendita (quasi il 20% dell'intera provincia)
e il maggior numero di annunci per questa tipologia sono relativi alla zona di Centro Storico, mentre la zona di Anconetta risulta molto meno attiva considerando il numero di annunci presenti.
La richiesta media nella zona dove sorge la casa indipendente (Anconetta pressi Via Legione Antonini) è pari a
1.700 €/m², molto vicina ai valori della zona Centro Storico che sono i più alti della città .
Relativamente alla dinamica dei prezzi, possiamo dire che negli ultimi 6 mesi i prezzi medi in tutta la città per case indipendenti in vendita sono
in aumento (+3,41%).
NOVITÀ Il risultato che vedi dipende dai dati che siamo riusciti ad estrarre dall'annuncio: ottieni una stima più accuranta di questo immobile, inserendo dati più precisi.
N.B. L'Opinione di Caasa® è un servizio sperimentale realizzato tramite tecniche di Intelligenza Artificiale, fornito senza alcuna garanzia di correttezza e completezza. Leggi il disclaimer o segnalaci un problema.
IMMAGINI
IN SINTESI
PROPOSTO DA:
AGENZIA AFFARI IMMOBILIARI VICENZA SAS
DESCRIZIONE
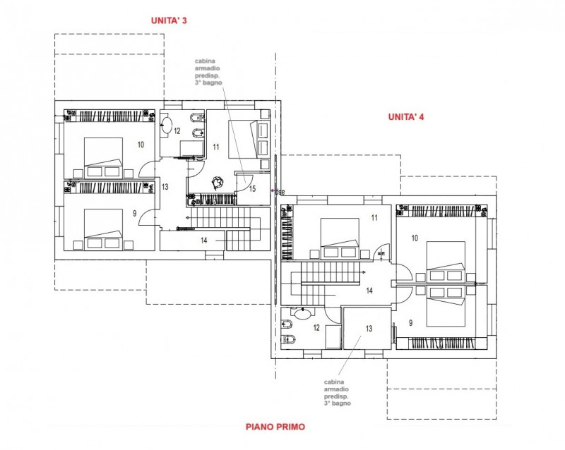
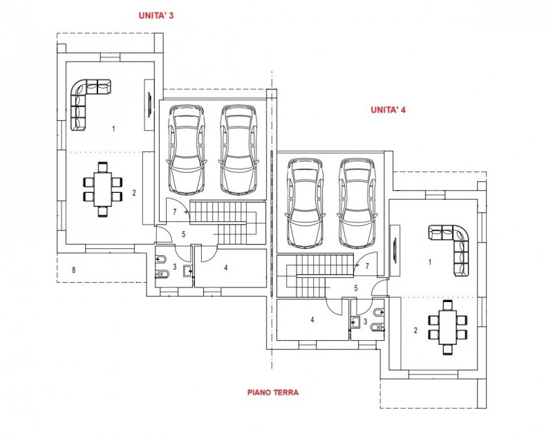
con posto auto con garage con termocondizionamento con giardino con riscaldamento autonomo con angolo cottura senza ascensore
COSTRUENDA VILLA BIFAMILIARE IN CLASSE A4 A VICENZA, VERSANTE NORD - RIF. 8311-4 CONSEGNA CHIAVI IN MANO: DICEMBRE 2027 E' iniziata la costruzione di 2 bifamiliari dotate di ogni comfort e di spazi perfetti per le esigenze di una famiglia moderna. La posizione è tranquilla, aperta verso la campagna: ci troviamo a 3,5 Km dal centro di Vicenza e 1,5 km dal casello autostradale di Vicenza Nord. Sorgeranno 4 moderne abitazioni dotate di ogni comfort L'unità "4" che presentiamo in questa scheda, sviluppa a piano terra e primo circa 167 mq abitativi + 8.10 mq di portico esclusivo + 248.50 mq di area scoperta esclusiva. Completa la proprietà 1 garage doppio di 30 mq dotato di riscaldamento a pavimento e 1 posto auto scoperto. Prezzo: € 440.000. Consegna "chiavi in mano" prevista a DICEMBRE 2027. A totale garanzia del vostro acquisto sarà predisposto preliminare notarile trascritto all'Ufficio dei Registri Immobiliari e verrà fornita polizza fideiussoria sui pagamenti, stipulata con primaria compagnia assicurativa. Vi aspettiamo in Agenzia per potervi illustrare tutti i particolari, consegnarvi la documentazione e portarvi in visita al sito! AGENZIA VICENZA Sas di Marchetti Andrea via Legione Antonini 146 Vicenza - 0444.963900 Aderente alla Borsa Immobiliare della C.C.I.A.A. di Vicenza www.agenziavicenza.it - marchetti@agenziavicenza.it





