Valutazione immobiliare indipendente, accurata e gratuita
Appartamento in affitto a Vicenza in zona San Bortolo/San Paolo a 570 € mese (cod.6554c90e)
Caasa non ha sufficienti informazioni per commentare l'appartamento a Vicenza San Bortolo/San Paolo - 6554c90e.
Analisi immobiliare
I dati in posseso di Caasa per quest'immobile sono insufficienti, inaffidabili o contraddittori per proporre un'analisi attendibile.
Mercato immobiliare a Vicenza
Per quanto riguarda più in generale la città di Vicenza, sono presenti al momento oltre 500 annunci per
appartamenti in affitto (quasi la metà dell'intera provincia)
e il maggior numero di annunci per questa tipologia sono relativi alla zona di Centro Storico, mentre la zona di San Bortolo/San Paolo risulta molto meno attiva considerando il numero di annunci presenti.
La richiesta media nella zona dove sorge l'appartamento (San Bortolo/San Paolo pressi Via Livio Zambeccari) è pari a
11,5 €/m² mese, molto vicina ai valori della zona Borgo Berga che sono i più alti della città .
Possiamo inoltre considerare che in tutta la città negli ultimi 6 mesi, i prezzi per appartamenti in affitto sono
sostanzialmente stabili (+0,08%).
NOVITÀ Il risultato che vedi dipende dai dati che siamo riusciti ad estrarre dall'annuncio: ottieni una stima più accuranta di questo immobile, inserendo dati più precisi.
N.B. L'Opinione di Caasa® è un servizio sperimentale realizzato tramite tecniche di Intelligenza Artificiale, fornito senza alcuna garanzia di correttezza e completezza. Leggi il disclaimer o segnalaci un problema.
IMMAGINI
IN SINTESI
PROPOSTO DA:
Affiliato Tecnocasa: STUDIO SVILUPPO S.R.L
Viale jacopo dal verme 78, Vicenza (VI)
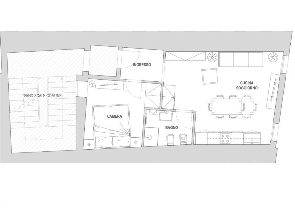
DESCRIZIONE
con posto auto con arredamento con ascensore con angolo cottura
BILOCALE SANTA LUCIA - 50 MQ VENGONO RICHIESTE MASSIME REFERENZE! In una delle aree residenziali più ricercate della città, caratterizzata da tranquillità, comodità e ottimi collegamenti, proponiamo in locazione un ampio appartamento situato in posizione strategica in un palazzetto storico di poche unità abitative. La proprietà si trova a pochi passi dall’università, dall’ospedale e da tutti i principali servizi — scuole, supermercati, mezzi pubblici e aree verdi — rendendola ideale sia per famiglie sia per chi desidera vivere in un contesto pratico e ben servito senza rinunciare alla quiete di una zona residenziale. Il bilocale che proponiamo in locazione, occupa il secondo piano e non è servito di ascensore. Entrati, un comodo disimpegno ci conduce alla zona giorno dalle ampie dimensioni e altezze generose. L'angolo cucina è spazioso e ben abitabile. Il bagno è finestrato servito da velux ed è dotato di doccia. Completa la proprietà la camera matrimoniale. Non è presente posto auto, ma nella via è facilmente posteggiabile un auto sulle strisce blu. COSA SAPERE DELL'IMMOBILE: L'appartamento viene consegnato completamente arredato e sarà affittabile a partire dal 1 marzo 2026. Il canone di locazione si compone di 570 euro + 50 di spese condominiali mensili. La casa è arredata di tutto tranne divano e lavatrice. COME CONTATTARCI: Chiamateci al numero 0444 921474 o contattateci via Whatsapp al numero 3208525177. Seguiteci su instagram, cliccando 'segui' alla pagina Agenzia Tecnocasa San Bortolo. Scaricate gratuitamente l'App di Tecnocasa sul vostro smartphone e sarete sempre aggiornati sulle nostre proposte di vendita e locazione


