Valutazione immobiliare indipendente, accurata e gratuita
L'Opinione di Caasa® per l'appartamento in vendita a Thiene in zona Santo a 210.000 € (cod.65865bca)
Secondo Caasa, per l'appartamento in vendita a Thiene in zona Santo, la richiesta di 210.000 € è equilibrata rispetto agli annunci simili.
Analisi immobiliare
L'appartamento, situato nella zona OMI B1, è proposto in vendita a
210.000 € per una
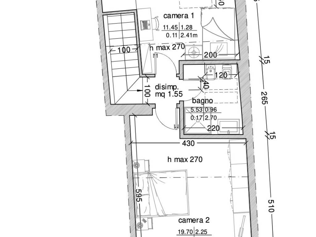
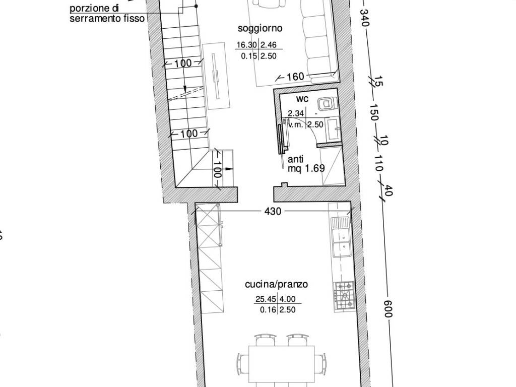
superficie commerciale di
98 m² e quindi ad un prezzo per metro quadrato pari a
2142 €/m²
.
Questo prezzo
è in linea con quello stimato da Caasa per immobili in vendita simili per tipologia e caratteristiche e localizzati nella stessa zona OMI, che è compreso tra
2.117 €/m² e
2.291 €/m².
Grazie alla conoscenza con buona approssimazione della localizzazione dell'immobile, è stato possibile utilizzare come raffronto i dati medi elaborati esattamente nella zona OMI di appertenenza (NUCLEO CITTADINO STORICO) per appartamenti (da 1.590 €/m² a 2.310 €/m²). Anche se Caasa non è riuscita a determinare la classe energetica, ad affinare la stima ha contribuito anche lo stato dell'immobile (di nuova costruzione). Per i motivi esposti l'intervallo dei valori accettabili per l'offerta è relativamente limitato.
Mercato immobiliare a Thiene
Per quanto riguarda più in generale la città di Thiene, sono presenti al momento più di 300 annunci per
appartamenti in vendita (meno del 5% dell'intera provincia)
e il maggior numero di annunci per questa tipologia sono relativi proprio alla zona di Santo.
Per quanto riguarda la richiesta media in zona Santo, dove sorge l'appartamento, essa è pari a circa
1.965 €/m² per appartamenti in vendita.
Possiamo inoltre considerare che in tutta la città negli ultimi 6 mesi, i prezzi per appartamenti in vendita sono
in aumento (+3,86%).
NOVITÀ Il risultato che vedi dipende dai dati che siamo riusciti ad estrarre dall'annuncio: ottieni una stima più accuranta di questo immobile, inserendo dati più precisi.
N.B. L'Opinione di Caasa® è un servizio sperimentale realizzato tramite tecniche di Intelligenza Artificiale, fornito senza alcuna garanzia di correttezza e completezza. Leggi il disclaimer o segnalaci un problema.
