Valutazione immobiliare indipendente, accurata e gratuita
L'Opinione di Caasa® per l'appartamento in vendita a Thiene a 130.000 € (cod.650b0524)
Secondo Caasa, per l'appartamento in vendita a Thiene, la richiesta di 130.000 € è significativamente vantaggiosa rispetto agli annunci simili.
Analisi immobiliare
L'appartamento, situato nella zona OMI B1, è proposto in vendita a
130.000 € per una
superficie commerciale di
100 m² e quindi ad un prezzo per metro quadrato pari a
1300 €/m²
.
Questo valore
è significativamente più basso di quello stimato da Caasa per immobili in vendita simili per tipologia, caratteristiche, classe energetica e localizzati nella stessa zona OMI, che è compreso tra
1.758 €/m² e
1.945 €/m².
La conoscenza con buona approssimazione della localizzazione dell'immobile ha consentito di utilizzare come raffronto i dati medi elaborati esattamente nella zona OMI di appertenenza (NUCLEO CITTADINO STORICO). Inoltre, Caasa ha potuto affinare la stima anche con la conoscenza della classe energetica (G). Per i motivi esposti è possibile considerare un intervallo di valori accettabili per l'offerta abbastanza limitato.
Mercato immobiliare a Thiene
Per quanto riguarda più in generale la città di Thiene, sono presenti al momento più di 300 annunci per
appartamenti in vendita (meno del 5% dell'intera provincia)
e il maggior numero di annunci per questa tipologia sono relativi alla zona di Santo.
Per quanto riguarda la dinamica dei prezzi, negli ultimi 6 mesi i prezzi medi in tutta la città per appartamenti in vendita sono
in deciso aumento (+8,85%).
NOVITÀ Il risultato che vedi dipende dai dati che siamo riusciti ad estrarre dall'annuncio: ottieni una stima più accuranta di questo immobile, inserendo dati più precisi.
N.B. L'Opinione di Caasa® è un servizio sperimentale realizzato tramite tecniche di Intelligenza Artificiale, fornito senza alcuna garanzia di correttezza e completezza. Leggi il disclaimer o segnalaci un problema.
IMMAGINI
IN SINTESI
DESCRIZIONE
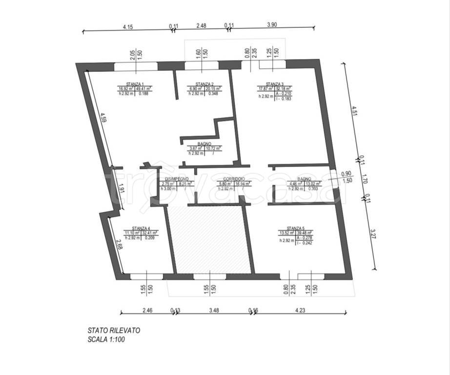
con terrazza con cucina abitabile con caminetto
CERCHI UN APPARTAMENTO IN CENTRO E SENZA SPESE CONDOMINIALI? SOLUZIONECASA propone questo appartamento al piano primo in un contesto di sole quattro unità, senza nessuna spesa condominiale, composto da ingresso, soggiorno con caminetto, cucina abitabile, tre camere ampie, due bagni, due poggioli. Per informazioni e visite chiamare Bruno


