Valutazione immobiliare indipendente, accurata e gratuita
Appartamento in vendita a Thiene in zona Santo a 72.075 € (cod.64f7ea26)
Caasa non ha sufficienti informazioni per commentare l'appartamento in vendita a Thiene in zona Santo - 64f7ea26.
	Analisi immobiliare
	
	I dati in posseso di Caasa per quest'immobile sono insufficienti, inaffidabili o contraddittori per proporre un'analisi attendibile.
	
	Mercato immobiliare a Thiene
	
	Per quanto riguarda più in generale la città di Thiene, sono presenti al momento più di 300 annunci per 
		appartamenti in vendita (meno del 5% dell'intera provincia) 
	
	 e il maggior numero di annunci per questa tipologia sono relativi proprio alla zona di Santo.
	
	
	Per quanto riguarda la richiesta media in zona Santo, dove sorge l'appartamento (pressi Via Monte Cengio), essa è pari a circa 
		2.095 €/m² per appartamenti in vendita.
	
	
	Possiamo inoltre considerare che in tutta la città negli ultimi 6 mesi, i prezzi per appartamenti in vendita sono 
		in deciso aumento (+8,85%).
	
	
	
NOVITÀ Il risultato che vedi dipende dai dati che siamo riusciti ad estrarre dall'annuncio: ottieni una stima più accuranta di questo immobile, inserendo dati più precisi.
N.B. L'Opinione di Caasa® è un servizio sperimentale realizzato tramite tecniche di Intelligenza Artificiale, fornito senza alcuna garanzia di correttezza e completezza. Leggi il disclaimer o segnalaci un problema.
IMMAGINI
IN SINTESI
PROPOSTO DA:
STUDIO CANOVA immobili & crediti
DESCRIZIONE
di recente costruzione con cucina abitabile in asta giudiziaria di recente costruzione
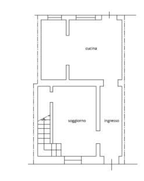
NUOVA PROPOSTA IMMOBILE DISPONIBILE Porzione di casa a Thiene (VI) in Via Monte Cengio. L’abitazione è così sviluppata: piano terra: corridoio d’ingresso, cucina abitabile con cucinino, soggiorno; piano primo: due camere e bagno finestrato; piano secondo: due stanze di cui una mansardata. Al piano terra, accessibile da porta posta in cucina, si trova ampio scoperto. Per te la possibilità di avere un preventivo per il mutuo a condizioni vantaggiose con i nostri partner. Ulteriori dettagli, foto degli interni, planimetrie e altre info, se disponibili, saranno consultabili previo appuntamento nella sede di VICENZA con SAMUELE che inoltre ti informerà sulle possibilità di aggiudicarti questo affare. L'immobile pubblicato al momento è sottoposto a procedura di vendita legale; Studio Canova è specializzato nella ricerca e pianificazione di investimenti immobiliari secondo innovative strategie di acquisto. Contattaci subito potrai valutare assieme a un nostro tecnico canali distinti di acquisto dell’immobile, procedura di vendita diretta senza ricorrere all’asta (d.lgs. 149/2022) e ancora stralcio immobiliare. Le informazioni sopra riportate non sostituiscono l'avviso pubblicato dal Tribunale competente ne’ l'integrale gestione da parte del delegato designato. Il testo e le specifiche indicate nella presente pagina sono generate automaticamente attraverso l'utilizzo di software e/o da A. I., Nobile S.p.A. invita a verificare le formazioni e i materiali multimediali sui canali ufficiali, declinando fin d'ora ogni responsabilità su eventuali errori o incongruenze. Studio Canova marchio di Nobile S. p. A Borgo Maggiore., leader negli stralci immobiliari e nella consulenza tecnico legale, non si occupa di attività di intermediazione imm. di cui alla legge 39/89. Cl. energ. da verificare. Le foto pubblicate nel presente annuncio sono indicative e non esaustive della tipologia, qualità, consistenza e indicazione geografica dell'immobile
 
                               
                               
                               
                               
                               
                               
                               
                               
                               
                               
                               
                               
                               
                               
                              


