Valutazione immobiliare indipendente, accurata e gratuita
L'Opinione di Caasa® per l'appartamento in vendita a Schio a 154.000 € (cod.649b58d7)
Secondo Caasa, per l'appartamento in vendita a Schio, la richiesta di 154.000 € è leggermente svantaggiosa rispetto agli annunci simili.
Analisi immobiliare
L'appartamento, situato vicino a Via Venezia nella zona OMI C3, è proposto in vendita a
154.000 € per una
superficie commerciale di
71 m² e quindi ad un prezzo per metro quadrato pari a
2169 €/m²
.
Tale valore
è un po' più alto di quello stimato da Caasa per immobili in vendita simili per tipologia, caratteristiche, classe energetica e localizzati nella stessa zona OMI, che è compreso tra
1.999 €/m² e
2.143 €/m².
La conoscenza con buona approssimazione della localizzazione dell'immobile ha consentito di utilizzare come raffronto i dati medi elaborati esattamente nella zona OMI di appertenenza (ZONA DI ESPANSIONE CONSOLIDATA). Inoltre, Caasa ha potuto affinare la stima anche con la conoscenza della classe energetica (A+) oltre che dello stato dell'immobile (di nuova costruzione) e di alcune caratteristiche significative come il garage. Per i motivi esposti i valori accettabili per l'offerta costituiscono un intervallo abbastanza limitato.
Mercato immobiliare a Schio
Per quanto riguarda più in generale la città di Schio, sono presenti al momento quasi 500 annunci per
appartamenti in vendita (meno del 10% dell'intera provincia)
e il maggior numero di annunci per questa tipologia sono relativi alla zona di Magrè.
La dinamica dei prezzi in tutta la città mostra che negli ultimi 6 mesi, i prezzi per appartamenti in vendita sono
in deciso aumento (+9,12%).
NOVITÀ Il risultato che vedi dipende dai dati che siamo riusciti ad estrarre dall'annuncio: ottieni una stima più accuranta di questo immobile, inserendo dati più precisi.
N.B. L'Opinione di Caasa® è un servizio sperimentale realizzato tramite tecniche di Intelligenza Artificiale, fornito senza alcuna garanzia di correttezza e completezza. Leggi il disclaimer o segnalaci un problema.
IMMAGINI
IN SINTESI
PROPOSTO DA:
Affiliato Tecnocasa: STUDIO CITTADELLA SRL - Tecnocasa
DESCRIZIONE
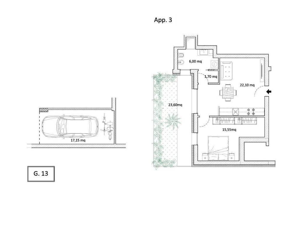
di nuova costruzione con posto auto con garage con giardino con termocondizionamento di nuova costruzione con angolo cottura
APPARTAMENTO A3 - Bilocale al piano terra con giardino privato e garage Accogliente bilocale al piano terra, ideale per single, coppie o come investimento. L’appartamento è composto da una zona giorno luminosa con angolo cottura, una camera matrimoniale e un bagno finestrato. A completare il tutto, un giardino privato di circa 20 mq, perfetto per momenti di relax all’aperto o per chi ha un animale domestico e un garage singolo comodo. Classe energetica prevista A, riscaldamento a pavimento, finiture di qualità con possibilità di personalizzazione. Posizione strategica e tranquilla, a soli 700 m dal centro di Schio

