Valutazione immobiliare indipendente, accurata e gratuita
Appartamento in vendita a Santorso a 57.900 € (cod.6579a8f8)
Caasa non ha sufficienti informazioni per commentare l'appartamento in vendita a Santorso - 6579a8f8.
Analisi immobiliare
I dati in posseso di Caasa per quest'immobile sono insufficienti, inaffidabili o contraddittori per proporre un'analisi attendibile.
Mercato immobiliare a Santorso
Per quanto riguarda più in generale il comune di Santorso, sono presenti al momento più di trenta annunci per
appartamenti in vendita (meno dell'1% dell'intera provincia) .
NOVITÀ Il risultato che vedi dipende dai dati che siamo riusciti ad estrarre dall'annuncio: ottieni una stima più accuranta di questo immobile, inserendo dati più precisi.
N.B. L'Opinione di Caasa® è un servizio sperimentale realizzato tramite tecniche di Intelligenza Artificiale, fornito senza alcuna garanzia di correttezza e completezza. Leggi il disclaimer o segnalaci un problema.
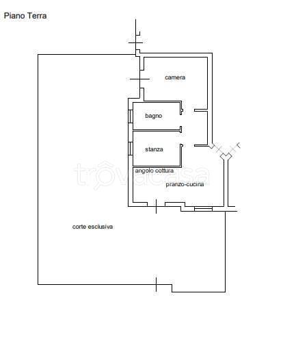
IMMAGINI
IN SINTESI
PROPOSTO DA:
Gruppo Edicom
DESCRIZIONE
con posto auto con giardino con garage in asta giudiziaria
ALL' ASTA appartamento al piano terra con giardino esclusivo e garage, sito in santorso (vi) in via dei furlani n. 28 int. c. NEOVIT Verona e Vicenza - Aste, Stralci Immobiliari e NPL Siamo NEOVIT, una società specializzata nella gestione di aste imm […]
