Valutazione immobiliare indipendente, accurata e gratuita
L'Opinione di Caasa® per l'appartamento in vendita a Quinto Vicentino a 155.000 € (cod.6596d529)
Secondo Caasa, per l'appartamento in vendita a Quinto Vicentino, la richiesta di 155.000 € è significativamente vantaggiosa rispetto agli annunci simili.
Analisi immobiliare
L'appartamento, situato nella zona OMI B1, è proposto in vendita a
155.000 € per una
superficie commerciale di
121 m² e quindi ad un prezzo per metro quadrato pari a
1280 €/m²
.
Tale prezzo
è più conveniente di quello stimato da Caasa per immobili in vendita simili per tipologia, caratteristiche, classe energetica e localizzati nella stessa zona OMI, che è compreso tra
1.471 €/m² e
1.559 €/m².
La conoscenza con buona approssimazione della localizzazione dell'immobile ha consentito di utilizzare come raffronto i dati medi elaborati esattamente nella zona OMI di appertenenza (NUCLEO CITTADINO STORICO). Inoltre, Caasa ha potuto affinare la stima anche con la conoscenza della classe energetica (G) oltre che dello stato dell'immobile (di recente costruzione) e di alcune caratteristiche significative come il garage. In virtù di queste considerazioni i valori accettabili per l'offerta costituiscono un intervallo abbastanza limitato.
Mercato immobiliare a Quinto Vicentino
Per quanto riguarda più in generale il comune di Quinto Vicentino, sono presenti al momento più di venti annunci per
appartamenti in vendita (meno dell'1% dell'intera provincia) .
Relativamente alla dinamica dei prezzi, possiamo dire che negli ultimi 6 mesi i prezzi medi in tutto il comune per appartamenti in vendita sono
in deciso aumento (+9,02%).
NOVITÀ Il risultato che vedi dipende dai dati che siamo riusciti ad estrarre dall'annuncio: ottieni una stima più accuranta di questo immobile, inserendo dati più precisi.
N.B. L'Opinione di Caasa® è un servizio sperimentale realizzato tramite tecniche di Intelligenza Artificiale, fornito senza alcuna garanzia di correttezza e completezza. Leggi il disclaimer o segnalaci un problema.
IMMAGINI
IN SINTESI
PROPOSTO DA:
CIVICO1 Agenzia Immobiliare
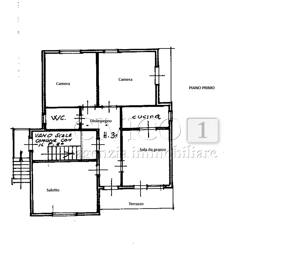
DESCRIZIONE
di recente costruzione con posto auto con garage con giardino con terrazza con termocondizionamento da ristrutturare di nuova costruzione di recente costruzione con balcone senza ascensore
IL TUO FUTURO PROGETTO 'GREEN' SU MISURA Cerchi una casa che unisca il fascino delle metrature di una volta alla possibilità di personalizzarla completamente? A Quinto Vicentino, in pieno centro, proponiamo un appartamento unico al primo piano, inserito in un tranquillo contesto familiare di sole 3 unità. L'immobile ha una particolarità: è privo di impianto di riscaldamento tradizionale (storicamente è sempre stato riscaldato a stufa), questo rappresenta un vantaggio enorme per chi vuole eliminare definitivamente il gas come nelle case di nuova costruzione! Libertà totale: potrai installare un sistema moderno in pompa di calore, pannelli fotovoltaici e cucina a induzione. Efficienza Massima: trasformerai una casa degli anni '70 in un'abitazione ad alta classe energetica, eliminando per sempre la bolletta del gas e garantendoti un notevole risparmio. L'appartamento è un "quadrifoglio" libero su quattro lati, con soffitti alti 3,00 metri che regalano un'ariosità introvabile: ingresso spazioso che funge da bussola per la casa. Salotto grande e luminoso, sala da pranzo separata con cucinino, zona notte con due camere matrimoniali dalle dimensioni introvabili oggi ed un bagno finestrato, le generose dimensioni danno la possibilità di ricavare un secondo servizio/lavanderia. Terrazzo abitabile con affaccio aperto, ideale per il relax e secondo terrazza con vista verso l'interno. La proprietà include tutto il necessario al piano terra: garage privato e posto auto e cantinetta oltre allo scoperto esclusivo: un'area privata ideale per chi desidera un piccolo giardino o un orto nel centro del paese. Perché acquistare questo immobile? Contesto Familiare: Palazzina di sole 3 unità, senza spese condominiali e abitata con cura. Personalizzazione Totale: la base perfetta per un progetto "casa elettrica" moderna e sostenibile. Indipendenza: Libero su 4 lati e situato in centro paese, comodo a piedi a tutti i servizi. Contattaci allo 0444.582644 o scrivi a torri@civico1.net per fissare una visita! Mq commerciali: 121 Mq c[…]










