Valutazione immobiliare indipendente, accurata e gratuita
Casa indipendente in vendita a Noventa Vicentina a 280.000 € (cod.659c3bb6)
Caasa non ha sufficienti informazioni per commentare la casa indipendente in vendita a Noventa Vicentina - 659c3bb6.
Analisi immobiliare
I dati in posseso di Caasa per quest'immobile sono insufficienti, inaffidabili o contraddittori per proporre un'analisi attendibile.
Mercato immobiliare a Noventa Vicentina
Per quanto riguarda più in generale il comune di Noventa Vicentina, sono presenti al momento più di cento annunci per
case indipendenti in vendita (meno del 5% dell'intera provincia) .
Possiamo inoltre considerare che in tutto il comune negli ultimi 6 mesi, i prezzi per case indipendenti in vendita sono
in sostanziale aumento (+5,48%).
NOVITÀ Il risultato che vedi dipende dai dati che siamo riusciti ad estrarre dall'annuncio: ottieni una stima più accuranta di questo immobile, inserendo dati più precisi.
N.B. L'Opinione di Caasa® è un servizio sperimentale realizzato tramite tecniche di Intelligenza Artificiale, fornito senza alcuna garanzia di correttezza e completezza. Leggi il disclaimer o segnalaci un problema.
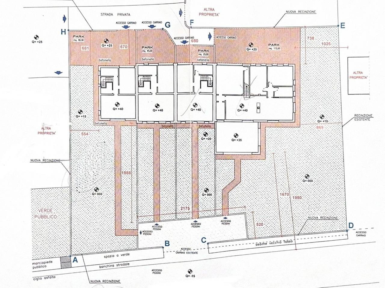
IMMAGINI
IN SINTESI
PROPOSTO DA:
PRIMACASA AFFILIATO ESSEPI IMMOBILIARE SAS
DESCRIZIONE
di nuova costruzione con giardino con posto auto con garage con cantina con angolo cottura di nuova costruzione
A Noventa Vicentina, proponiamo in vendita splendida casetta a schiera , situata in una zona ben servita, ideale per chi cerca indipendenza e comfort in un ambiente moderno e accogliente. L'immobile, di nuova costruzione, sarà pronto per la consegna in circa un anno dal momento dell'interesse, offrendoti così l’opportunità di personalizzare gli spazi in base alle tue esigenze. La casetta si sviluppa su due livelli e offre una distribuzione funzionale e moderna. Al suo interno, troverai ampi ambienti luminosi e ben progettati, con materiali di alta qualità e impianti a basso consumo energetico. La soluzione è composta al piano terra da entrata su soggiorno con angolo cottura, bagno, ripostiglio e garage comunicante con l'interno di circa 17mq, al piano primo 3 camere da letto, due bagni a servizio del piano e ripostiglio. Completa la proprietà un giardino privato, perfetto per momenti di relax all’aperto. Questa soluzione è ideale per famiglie in cerca di una residenza vicina ai principali servizi dotata spazi esterni per godere della natura senza rinunciare alla comodità. Un'opportunità unica per chi desidera vivere in una casa nuova e moderna, pensata per offrire il massimo del comfort. Presso il nostro ufficio sono disponibili progetti e relazione illustrativa dell'immobile e saremo felici di fornirti tutte le informazioni necessarie. Se sei interessato o desideri maggiori dettagli, contattaci per prendere un appuntamento! A tutela della privacy l'indirizzo indicato non corrisponde all'esatta posizione dell'immobile. Per maggiori informazioni chiamare la Ns. sede Professionecasa di Noventa Vicentina in Via Matteotti n° 113, al numero 0444-887063. Rif. N437




