Valutazione immobiliare indipendente, accurata e gratuita
Casa indipendente in vendita a Montorso Vicentino a 108.000 € (cod.658a88bd)
Caasa non ha sufficienti informazioni per commentare la casa indipendente in vendita a Montorso Vicentino - 658a88bd.
Analisi immobiliare
I dati in posseso di Caasa per quest'immobile sono insufficienti, inaffidabili o contraddittori per proporre un'analisi attendibile.
Mercato immobiliare a Montorso Vicentino
Per quanto riguarda più in generale il comune di Montorso Vicentino, sono presenti al momento più di trenta annunci per
case indipendenti in vendita (meno dell'1% dell'intera provincia) .
Relativamente alla dinamica dei prezzi, possiamo dire che negli ultimi 6 mesi i prezzi medi in tutto il comune per case indipendenti in vendita sono
in forte calo (-63,51%).
NOVITÀ Il risultato che vedi dipende dai dati che siamo riusciti ad estrarre dall'annuncio: ottieni una stima più accuranta di questo immobile, inserendo dati più precisi.
N.B. L'Opinione di Caasa® è un servizio sperimentale realizzato tramite tecniche di Intelligenza Artificiale, fornito senza alcuna garanzia di correttezza e completezza. Leggi il disclaimer o segnalaci un problema.
IMMAGINI
IN SINTESI
PROPOSTO DA:
GESTISEI SAS DI SCAROLA NICOLA & C
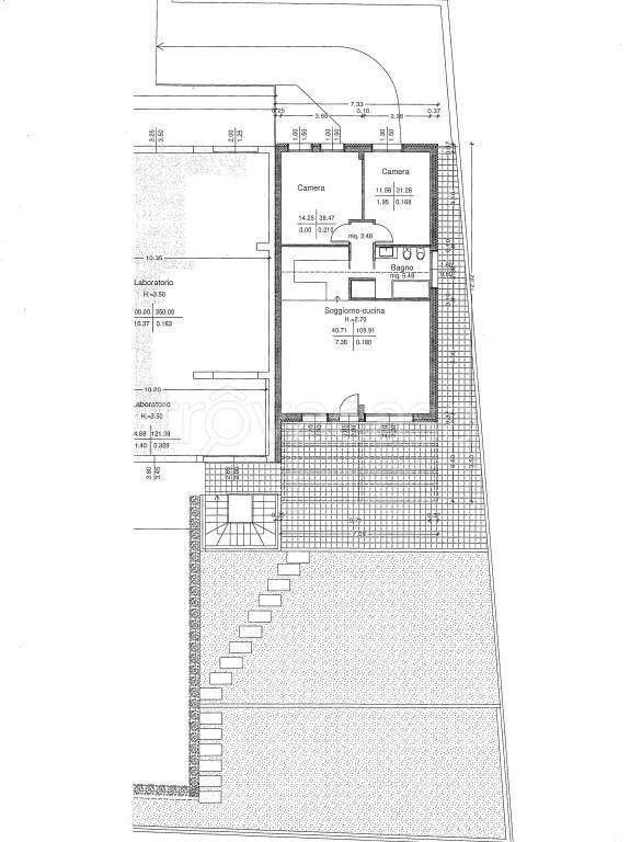
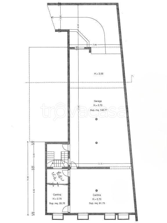
DESCRIZIONE
con giardino
In splendida posizione panoramica, proponiamo casa affiancata allo stato grezzo in contesto di trifamiliare. L'immobile è caratterizzato da un ampio locale interrato, ideale per coloro che svolgono un'attività e che hanno bisogno un magazzino/deposito. Lo spazio abitativo si sviluppa invece al piano terra e potrebbe accogliere una luminosa zona giorno, due camere, uno o due bagni. Completa la proprietà un giardino esclusivo di circa 170 mq. La vendita allo stato attuale è di € 108.000,00, ma si può valutare la vendita anche dell'immobile finito a partire da € 240.000,00. Non esitate a contattarci per maggiori informazioni

