Valutazione immobiliare indipendente, accurata e gratuita
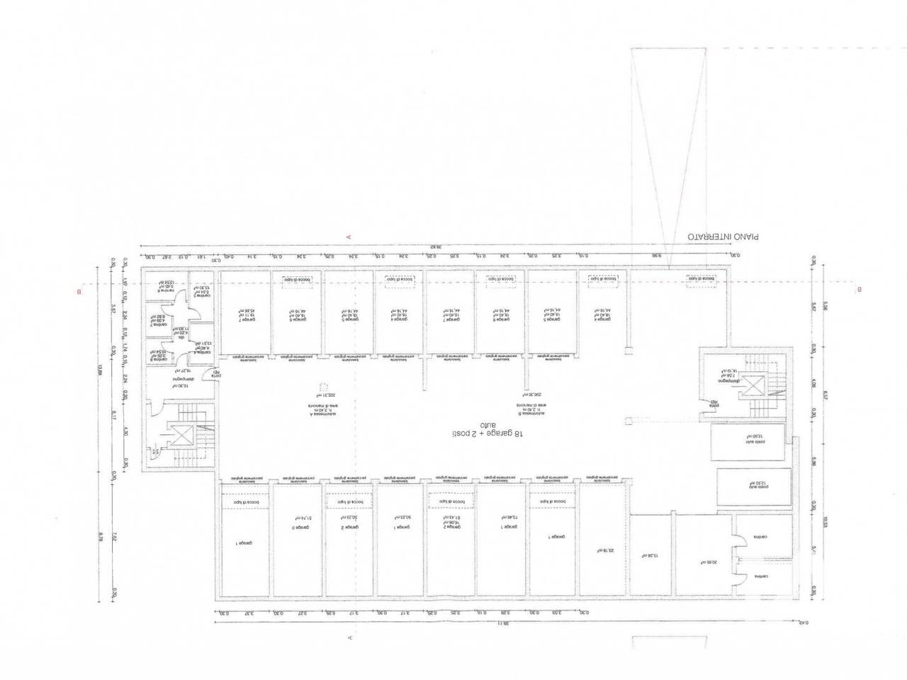
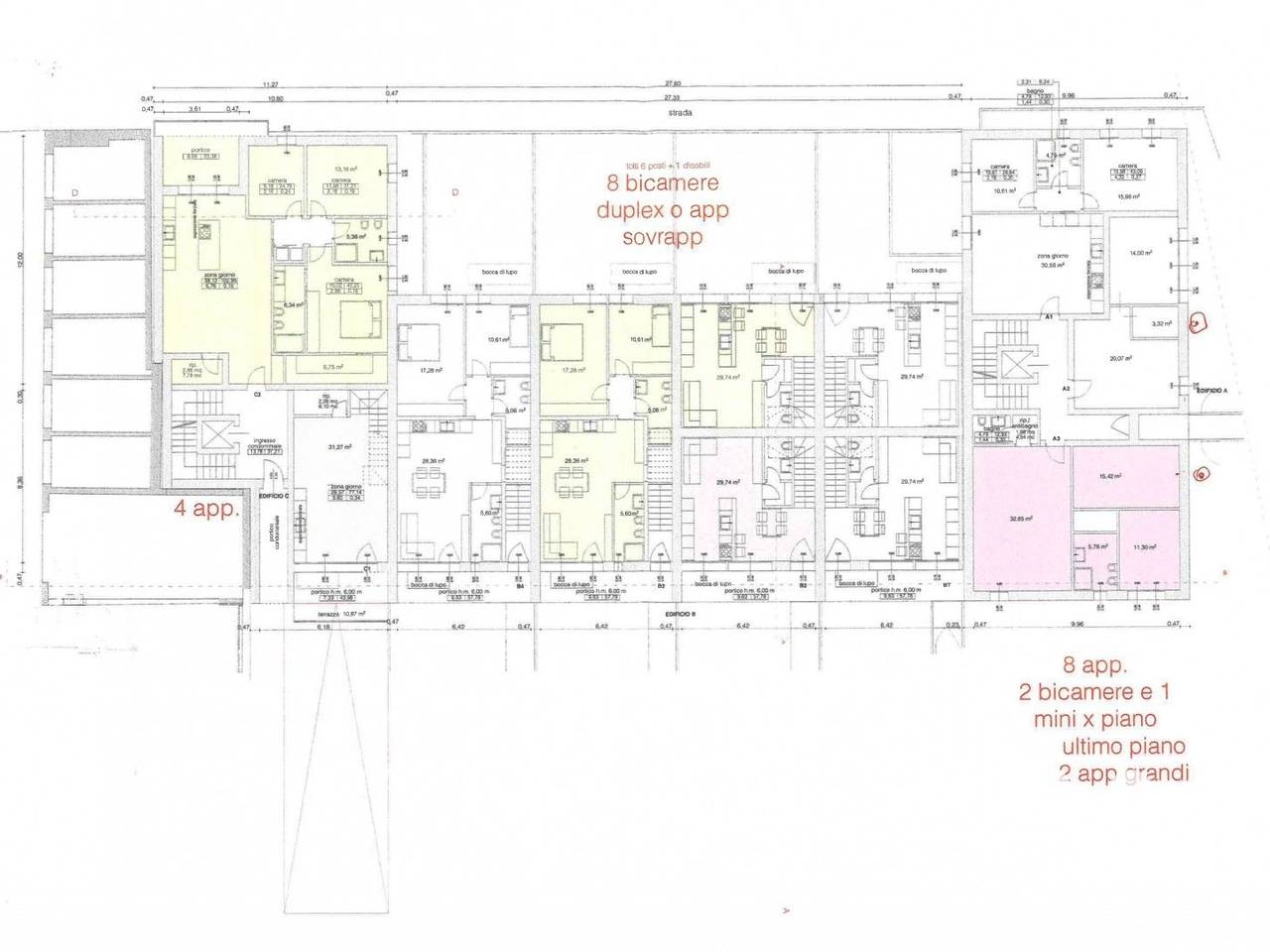
Terreno edificabile in vendita a Monticello Conte Otto a 780.000 € (cod.6584a3ae)
Caasa non ha sufficienti informazioni per commentare il terreno edificabile a Monticello Conte Otto - 6584a3ae.
Analisi immobiliare
I dati in posseso di Caasa per quest'immobile sono insufficienti, inaffidabili o contraddittori per proporre un'analisi attendibile.
Mercato immobiliare a Monticello Conte Otto
Per quanto riguarda più in generale il comune di Monticello Conte Otto, sono presenti al momento più di venti annunci per
terreni edificabili in vendita (meno dell'1% dell'intera provincia)
e il maggior numero di annunci per questa tipologia sono relativi alla zona di Cavazzale.
Vedi altre informazioni direttamente su
Mercato-Immobiliare.info
NOVITÀ Il risultato che vedi dipende dai dati che siamo riusciti ad estrarre dall'annuncio: ottieni una stima più accuranta di questo immobile, inserendo dati più precisi.
N.B. L'Opinione di Caasa® è un servizio sperimentale realizzato tramite tecniche di Intelligenza Artificiale, fornito senza alcuna garanzia di correttezza e completezza. Leggi il disclaimer o segnalaci un problema.
