Valutazione immobiliare indipendente, accurata e gratuita
Appartamento in vendita a Monteviale in zona Costigiola a 240.000 € (cod.65467f2a)
Caasa non ha sufficienti informazioni per commentare l'appartamento a Monteviale in zona Costigiola - 65467f2a.
Analisi immobiliare
I dati in posseso di Caasa per quest'immobile sono insufficienti, inaffidabili o contraddittori per proporre un'analisi attendibile.
Mercato immobiliare a Monteviale
Per quanto riguarda più in generale il comune di Monteviale, sono presenti al momento più di venti annunci per
appartamenti in vendita (meno dell'1% dell'intera provincia) .
Per quanto riguarda la richiesta media in zona Costigiola, dove sorge l'appartamento, essa è pari a circa
2.090 €/m² per appartamenti in vendita.
Possiamo inoltre considerare che in tutto il comune negli ultimi 6 mesi, i prezzi per appartamenti in vendita sono
in forte aumento (+13,94%).
NOVITÀ Il risultato che vedi dipende dai dati che siamo riusciti ad estrarre dall'annuncio: ottieni una stima più accuranta di questo immobile, inserendo dati più precisi.
N.B. L'Opinione di Caasa® è un servizio sperimentale realizzato tramite tecniche di Intelligenza Artificiale, fornito senza alcuna garanzia di correttezza e completezza. Leggi il disclaimer o segnalaci un problema.
IMMAGINI
IN SINTESI
PROPOSTO DA:
IMMOBILIARE MOTTA SAS DI DALLA RIVA FABIO & C.
DESCRIZIONE
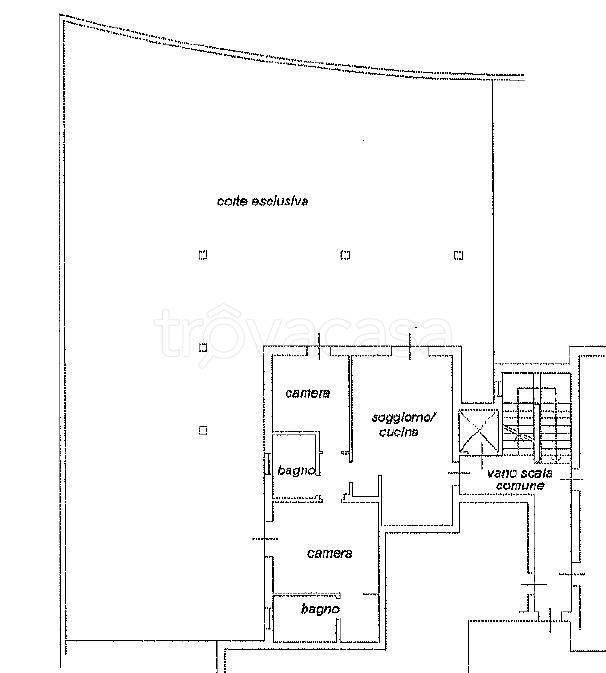
con giardino con posto auto con garage con termocondizionamento con ascensore
A Monteviale, zona Costigiola, in via chiusa al traffico e contesto tranquillo e residenziale, proponiamo splendido appartamento bicamere al piano terra con giardino privato. L’abitazione si sviluppa su un unico livello ed è caratterizzata da spazi ben distribuiti e finiture moderne. La zona giorno, luminosa e accogliente, è composta da soggiorno con cucina a vista e accesso diretto al giardino, dotato di area piastrellata e pompeiana, perfetta per momenti di relax all’aperto. La zona notte comprende una cameretta, una camera matrimoniale con cabina armadio e bagno privato, oltre a un secondo bagno finestrato, entrambi con finiture moderne e curate. Al piano interrato è presente un garage, servito da ascensore condominiale. Viene venduto arredato di cucina, mobile Tv, cameretta. L’appartamento si presenta in ottime condizioni, curato in ogni dettaglio e dotato di numerosi comfort e accessori: - Riscaldamento a pavimento - Cappotto esterno - Caldaia a condensazione - Aria condizionata - Termostato bizona - Videocitofono - Porta blindata - Impianto di allarme volumetrico e perimetrale - Zanzariere su tutte le finestre - Impianto di irrigazione Soluzione ideale per chi cerca comfort, tranquillità e qualità costruttiva, in una delle zone più apprezzate di Monteviale


