Valutazione immobiliare indipendente, accurata e gratuita
L'Opinione di Caasa® per l'appartamento in vendita a Colceresa a 355.000 € (cod.659222ce)
Secondo Caasa, per l'appartamento in vendita a Colceresa, la richiesta di 355.000 € è leggermente svantaggiosa rispetto agli annunci simili.
Analisi immobiliare
L'appartamento è proposto in vendita (da UNICA immobiliare) a
355.000 € per una
superficie commerciale di
148 m² e quindi ad un prezzo per metro quadrato pari a
2398 €/m²
.
Questo prezzo
è leggermente meno conveniente di quello stimato da Caasa per immobili in vendita simili per tipologia, caratteristiche e classe energetica, che è compreso tra
2.057 €/m² e
2.291 €/m².
Sono stati utilizzati nel raffronto i soli valori medi cittadini, visto che non è stato possibile determinare in modo affidabile la posizione dell'immobile. All'elaborazione della stima ha però contribuito anche la classe energetica (A+) oltre alla condizione dell'immobile (di nuova costruzione) e alla presenza di alcune caratteristiche significative come il garage o la disponibilità di una cantina. Per queste ragioni l'intervallo dei valori considerati accettabili per l'offerta è comunque ampio.
Mercato immobiliare a Colceresa
Per quanto riguarda più in generale il comune di Colceresa, sono presenti al momento più di trenta annunci per
appartamenti in vendita (meno dell'1% dell'intera provincia)
e il maggior numero di annunci per questa tipologia sono relativi alla zona di Villa.
Possiamo inoltre considerare che in tutto il comune negli ultimi 6 mesi, i prezzi per appartamenti in vendita sono
in forte aumento (+38,57%).
NOVITÀ Il risultato che vedi dipende dai dati che siamo riusciti ad estrarre dall'annuncio: ottieni una stima più accuranta di questo immobile, inserendo dati più precisi.
N.B. L'Opinione di Caasa® è un servizio sperimentale realizzato tramite tecniche di Intelligenza Artificiale, fornito senza alcuna garanzia di correttezza e completezza. Leggi il disclaimer o segnalaci un problema.
IMMAGINI
IN SINTESI
DESCRIZIONE
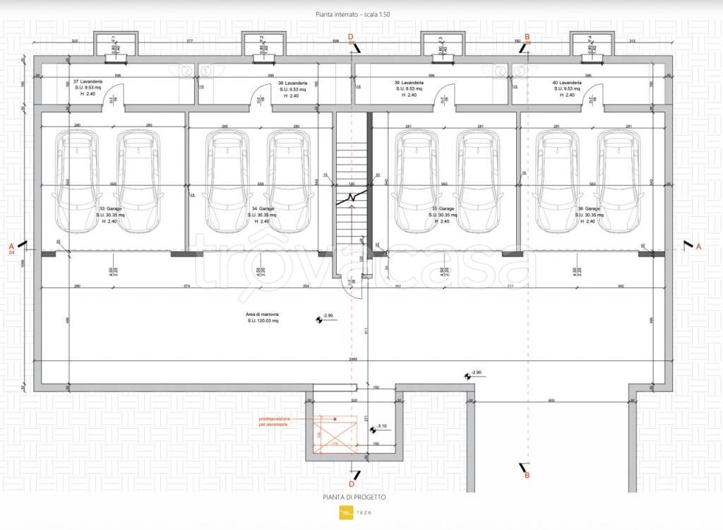
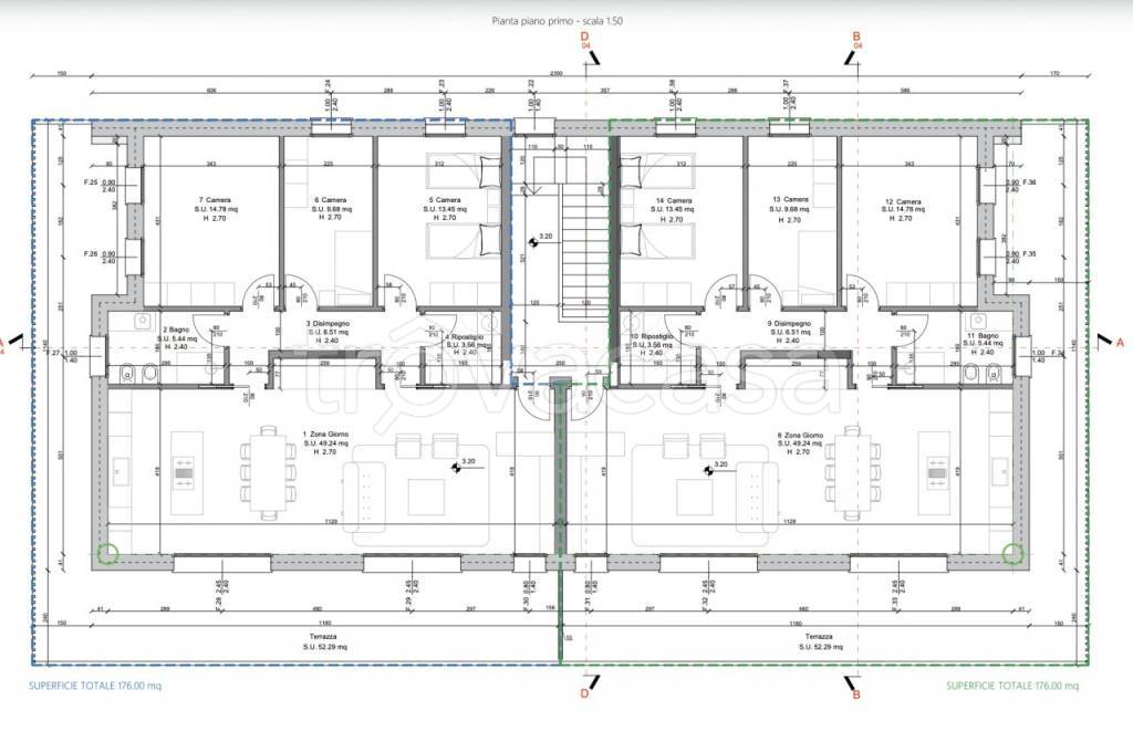
di nuova costruzione con garage con cantina con terrazza con termocondizionamento di nuova costruzione
COLCERESA TRICAMERE PRIMO PIANO CON TERRAZZONE Trattative riservate Immobiliare Unica Colceresa via Marconi 2 - 04241590376 - 3381150102 In centro del paese comodo a tutti i principali servizi, disponibile appartamento Tricamere con 50 mq di terrazzo di proprietà. L'appartamento fa parte di un nuovo e moderno complesso condominiale, di prossima realizzazione, composto da sole 4 unità abitative. Si trova al primo ed ultimo piano ed è' composto da ampia zona giorno con uscita sul terrazzo, camera matrimoniale, camera doppia, camera singola, bagno finestrato e ripostiglio. Al piano interrato troviamo un comodo garage doppio e la lavanderia. Le tecniche costruttive utilizzate garantiranno massima qualità e alto risparmio energetico. Le finiture sono di qualità, è previsto grès effetto legno nella zona giorno mentre nella zona notte listoni di legno con colore a scelta. I serramenti di tutte le finestre saranno in pvc con 6 camere d'isolamento e 3 guarnizioni, con avvolgibile in alluminio motorizzati. Il portoncino d'ingresso sarà blindato e antieffrazione, mentre le porte interne saranno a pannello liscio e laccate in bianco. Il riscaldamento sarà a pavimento con pompa di calore a regolazione climatica in maniera da ottenere il miglior rendimento da parte dell'impianto e la massima riduzione dei costi di gestione in base alle condizioni climatiche esterne. Predisposizione impianto climatizzazione. Nei bagni verranno installati dei termoarredi ad alimentazione elettrica. La produzione di acqua calda sanitaria sarà garantita dalla pompa di calore e da un bollitore di adeguata capacità. Impianto fotovoltaico da 6 Kwp posizionato sul tetto. I cancelli pedonali saranno in ferro zincato e verniciato,e la pavimentazione esterna in betonella. Ingresso in vano scala che serve solo due unità abitative. Consegna prevista per Giugno 2027

