Valutazione immobiliare indipendente, accurata e gratuita
Casa indipendente in vendita a Chiampo a 665.325 € (cod.653202ba)
Caasa non ha sufficienti informazioni per commentare la casa indipendente in vendita a Chiampo - 653202ba.
Analisi immobiliare
I dati in posseso di Caasa per quest'immobile sono insufficienti, inaffidabili o contraddittori per proporre un'analisi attendibile.
Mercato immobiliare a Chiampo
Per quanto riguarda più in generale il comune di Chiampo, sono presenti al momento più di cento annunci per
case indipendenti in vendita (meno del 5% dell'intera provincia) .
Possiamo inoltre considerare che in tutto il comune negli ultimi 6 mesi, i prezzi per case indipendenti in vendita sono
in deciso calo (-7,58%).
NOVITÀ Il risultato che vedi dipende dai dati che siamo riusciti ad estrarre dall'annuncio: ottieni una stima più accuranta di questo immobile, inserendo dati più precisi.
N.B. L'Opinione di Caasa® è un servizio sperimentale realizzato tramite tecniche di Intelligenza Artificiale, fornito senza alcuna garanzia di correttezza e completezza. Leggi il disclaimer o segnalaci un problema.
IMMAGINI
IN SINTESI
PROPOSTO DA:
Case all'Asta
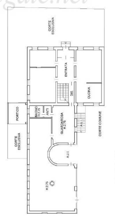
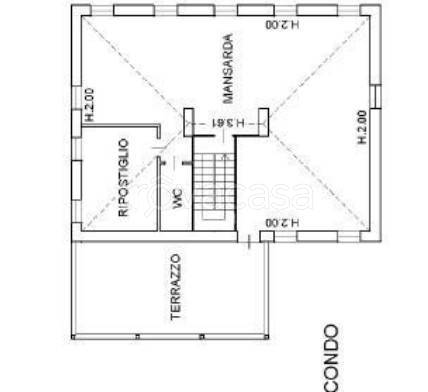
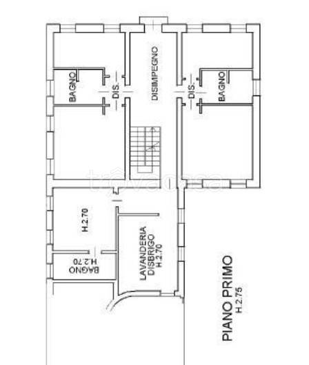
DESCRIZIONE
di recente costruzione in asta giudiziaria con giardino con terrazza di recente costruzione
Unico lotto composto da due abitazioni, una finita e una al grezzo. Prima abitazione: zona giorno al piano terra con cucina, salotto, studio, wc e taverna; quattro camere e quattro bagni ai piani superiori; mansarda con wc. Seconda abitazione: edific […]
