Valutazione immobiliare indipendente, accurata e gratuita
L'Opinione di Caasa® per l'appartamento in vendita a Cassola a 365.000 € (cod.6554a5bb)
Secondo Caasa, per l'appartamento in vendita a Cassola, la richiesta di 365.000 € è leggermente vantaggiosa rispetto agli annunci simili.
Analisi immobiliare
L'appartamento è proposto in vendita a
365.000 € per una
superficie commerciale di
129 m² e quindi ad un prezzo per metro quadrato pari a
2829 €/m²
.
Tale valore
è un po' più basso di quello stimato da Caasa per immobili in vendita simili per tipologia, caratteristiche e classe energetica, che è compreso tra
2.980 €/m² e
3.197 €/m².
Sono stati utilizzati come raffronto i soli valori medi cittadini per appartamenti (da 1.725 €/m² a 2.820 €/m²) e per quadrivani (da 2.045 €/m² a 2.875 €/m²), visto che non è stato possibile determinare in modo affidabile la posizione dell'immobile. All'elaborazione della stima ha però contribuito anche la classe energetica (A+) oltre alla condizione dell'immobile (di nuova costruzione) e alla presenza di alcune caratteristiche significative come il garage. Per queste ragioni i valori considerati accettabili per l'offerta costituiscono un intervallo comunque ampio.
Mercato immobiliare a Cassola
Per quanto riguarda più in generale la città di Cassola, sono presenti al momento più di 150 annunci per
appartamenti in vendita (meno del 5% dell'intera provincia)
e il maggior numero di annunci per questa tipologia sono relativi alla zona di San Zeno.
La dinamica dei prezzi in tutta la città mostra che negli ultimi 6 mesi, i prezzi per appartamenti in vendita sono
sostanzialmente stabili (+0,85%).
NOVITÀ Il risultato che vedi dipende dai dati che siamo riusciti ad estrarre dall'annuncio: ottieni una stima più accuranta di questo immobile, inserendo dati più precisi.
N.B. L'Opinione di Caasa® è un servizio sperimentale realizzato tramite tecniche di Intelligenza Artificiale, fornito senza alcuna garanzia di correttezza e completezza. Leggi il disclaimer o segnalaci un problema.
IMMAGINI
IN SINTESI
DESCRIZIONE
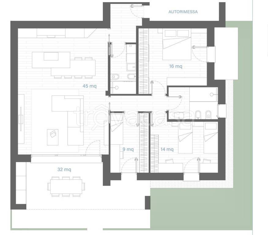
di nuova costruzione con garage con giardino di nuova costruzione
Tricamere nuovo e in fase di costruzione, inserito in una zona tranquilla e verdeggiante, strategica per usufruire comodamente dei servizi dei Comuni di Rosà e Cassola e per la vicinanza a Bassano. Una facciata moderna ed elegante, un biglietto da visita del buongusto e di chi ci abita. E' dotato di ingresso indipendente, senza nessun collegamento col vano scale condominiale e di un giardino privato e di un portico di ca. 30 mq che permette di ampliare la zona giorno fino a 70mq per tutta la stagione calda; tre camere di cui una matrimoniale, una doppia ed una singola e di doppi servizi, uno dei quali con lavanderia. La dimensione delle superfici vetrate andranno ad accontentare tutti coloro che vogliono vivere in spazi ariosi e ben illuminati. Predisposto per clima, allarme e ventilazione meccanica. Garage doppio con ulteriore predisposizione lavanderia. Le immagini sono riferite all'unità immobiliare analoga già finita. Finiture personalizzabili. Contattaci per i dettagli e/o una visita in cantiere; troveremo insieme la giusta soluzione che stai cercando

