Valutazione immobiliare indipendente, accurata e gratuita
Appartamento in vendita a Camisano Vicentino a 290.700 € (cod.65725121)
Caasa non ha sufficienti informazioni per commentare l'appartamento in vendita a Camisano Vicentino - 65725121.
Analisi immobiliare
I dati in posseso di Caasa per quest'immobile sono insufficienti, inaffidabili o contraddittori per proporre un'analisi attendibile.
Mercato immobiliare a Camisano Vicentino
Per quanto riguarda più in generale il comune di Camisano Vicentino, sono presenti al momento più di 200 annunci per
appartamenti in vendita (meno del 5% dell'intera provincia)
e il maggior numero di annunci per questa tipologia sono relativi alla zona di Santa Maria.
Relativamente alla dinamica dei prezzi, possiamo dire che negli ultimi 6 mesi i prezzi medi in tutto il comune per appartamenti in vendita sono
in sostanziale calo (-5,45%).
NOVITÀ Il risultato che vedi dipende dai dati che siamo riusciti ad estrarre dall'annuncio: ottieni una stima più accuranta di questo immobile, inserendo dati più precisi.
N.B. L'Opinione di Caasa® è un servizio sperimentale realizzato tramite tecniche di Intelligenza Artificiale, fornito senza alcuna garanzia di correttezza e completezza. Leggi il disclaimer o segnalaci un problema.
IMMAGINI
IN SINTESI
PROPOSTO DA:
Case all'Asta
DESCRIZIONE
di recente costruzione con terrazza con cantina di recente costruzione in asta giudiziaria
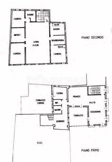
Appartamento su due livelli con soggiorno e cucina al piano inferiore. Disimpegno, bagno e ripostiglio. Tre camere, secondo soggiorno, guardaroba e due bagni al piano superiore. Due terrazzi, uno ad uso esclusivo. Nessun costo di iscrizione con Case […]
