Valutazione immobiliare indipendente, accurata e gratuita
L'Opinione di Caasa® per l'appartamento in vendita a Camisano Vicentino a 360.000 € (cod.655966a6)
Secondo Caasa, per l'appartamento in vendita a Camisano Vicentino, la richiesta di 360.000 € è significativamente svantaggiosa rispetto agli annunci simili.
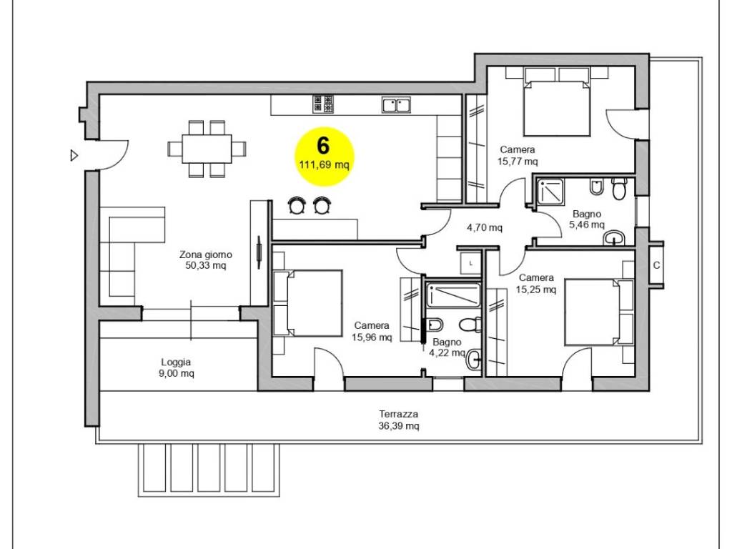
Analisi immobiliare
L'appartamento, situato nella zona OMI B1, è proposto in vendita a
360.000 € per una
superficie commerciale di
112 m² e quindi ad un prezzo per metro quadrato pari a
3214 €/m²
.
Questo prezzo
è meno vantaggioso di quello stimato da Caasa per immobili in vendita simili per tipologia e caratteristiche e localizzati nella stessa zona OMI, che è compreso tra
2.425 €/m² e
2.609 €/m².
Grazie alla conoscenza con buona approssimazione della localizzazione dell'immobile, è stato possibile utilizzare come raffronto i dati medi elaborati esattamente nella zona OMI di appertenenza (CENTRO STORICO E AREE DI ESPANSIONE). Anche se Caasa non è riuscita a determinare la classe energetica, ad affinare la stima hanno contribuito anche lo stato dell'immobile (di nuova costruzione) e la presenza di alcune caratteristiche significative come la presenza dell'ascensore. Per i motivi esposti l'intervallo dei valori accettabili per l'offerta è relativamente limitato.
Mercato immobiliare a Camisano Vicentino
Per quanto riguarda più in generale il comune di Camisano Vicentino, sono presenti al momento più di 200 annunci per
appartamenti in vendita (meno del 5% dell'intera provincia)
e il maggior numero di annunci per questa tipologia sono relativi alla zona di Santa Maria.
Possiamo inoltre considerare che in tutto il comune negli ultimi 6 mesi, i prezzi per appartamenti in vendita sono
in sostanziale calo (-7,12%).
NOVITÀ Il risultato che vedi dipende dai dati che siamo riusciti ad estrarre dall'annuncio: ottieni una stima più accuranta di questo immobile, inserendo dati più precisi.
N.B. L'Opinione di Caasa® è un servizio sperimentale realizzato tramite tecniche di Intelligenza Artificiale, fornito senza alcuna garanzia di correttezza e completezza. Leggi il disclaimer o segnalaci un problema.
