Valutazione immobiliare indipendente, accurata e gratuita
Casa indipendente in vendita a Breganze in zona Maragnole a 270.225 € (cod.654e00fe)
Caasa non ha sufficienti informazioni per commentare la casa indipendente a Breganze in zona Maragnole - 654e00fe.
Analisi immobiliare
I dati in posseso di Caasa per quest'immobile sono insufficienti, inaffidabili o contraddittori per proporre un'analisi attendibile.
Mercato immobiliare a Breganze
Per quanto riguarda più in generale il comune di Breganze, sono presenti al momento più di trenta annunci per
case indipendenti in vendita (meno dell'1% dell'intera provincia) .
Possiamo inoltre considerare che in tutto il comune negli ultimi 6 mesi, i prezzi per case indipendenti in vendita sono
in aumento (+3,27%).
NOVITÀ Il risultato che vedi dipende dai dati che siamo riusciti ad estrarre dall'annuncio: ottieni una stima più accuranta di questo immobile, inserendo dati più precisi.
N.B. L'Opinione di Caasa® è un servizio sperimentale realizzato tramite tecniche di Intelligenza Artificiale, fornito senza alcuna garanzia di correttezza e completezza. Leggi il disclaimer o segnalaci un problema.
IMMAGINI
IN SINTESI
PROPOSTO DA:
Case all'Asta
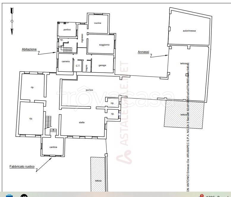
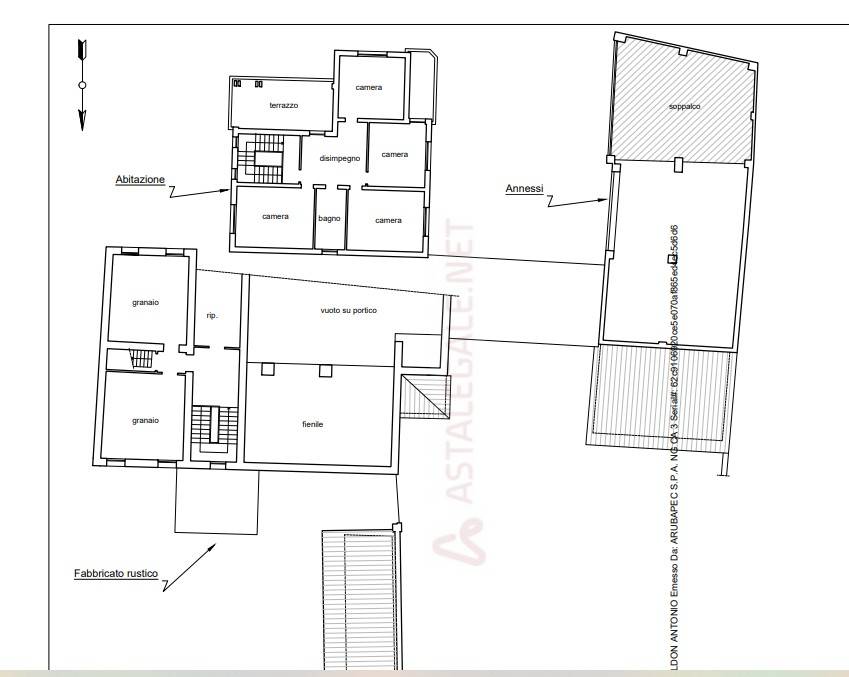
DESCRIZIONE
di recente costruzione con garage con giardino con terrazza in asta giudiziaria di recente costruzione
Unico lotto composto da tre edifici separati e ampie aree esterne superfice totale 1815 mq. Il primo edificio è un rustico (ex scuola) su due livelli più sottotetto, in forte degrado. La casa principale su due livelli 115 mq ha al piano terra camera, […]
