Valutazione immobiliare indipendente, accurata e gratuita
L'Opinione di Caasa® per l'appartamento in vendita a Bolzano Vicentino in zona Lisiera a 185.000 € (cod.65a87503)
Secondo Caasa, per l'appartamento a Bolzano Vicentino in zona Lisiera, la richiesta di 185.000 € è equilibrata rispetto agli annunci simili.
Analisi immobiliare
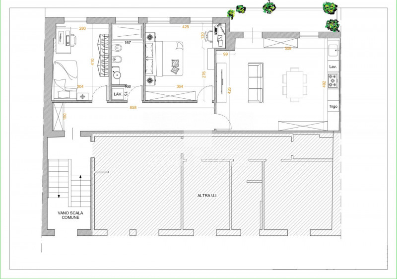
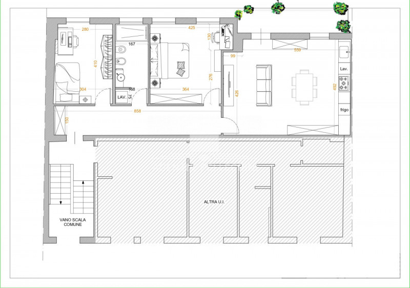
L'appartamento, situato nella zona OMI E1, è proposto in vendita a
185.000 € per una
superficie commerciale di
87 m² e quindi ad un prezzo per metro quadrato pari a
2126 €/m²
.
Tale valore
è molto vicino a quello stimato da Caasa per immobili in vendita simili per tipologia, caratteristiche, classe energetica e localizzati nella stessa zona OMI, che è compreso tra
2.001 €/m² e
2.145 €/m².
La conoscenza con buona approssimazione della localizzazione dell'immobile ha consentito di utilizzare come raffronto i dati medi elaborati esattamente nella zona OMI di appertenenza (FRAZIONI DI OSPEDALETTO E LISIERA) per appartamenti (da 1.090 €/m² a 1.900 €/m²). Inoltre, Caasa ha potuto affinare la stima anche con la conoscenza della classe energetica (B) oltre che dello stato dell'immobile (di recente ristrutturazione) e di alcune caratteristiche significative come il garage. Per queste considerazioni i valori accettabili per l'offerta costituiscono un intervallo abbastanza limitato.
Mercato immobiliare a Bolzano Vicentino
Per quanto riguarda più in generale il comune di Bolzano Vicentino, sono presenti al momento più di cinquanta annunci per
appartamenti in vendita (meno dell'1% dell'intera provincia)
e il maggior numero di annunci per questa tipologia sono relativi alla zona di Ospedaletto, mentre nella zona di Lisiera è presente un numero significativamente inferiore di annunci.
Per quanto riguarda la richiesta media in zona Lisiera, dove sorge l'appartamento, essa è pari a circa
1.520 €/m² per appartamenti in vendita.
La dinamica dei prezzi in tutto il comune mostra che negli ultimi 6 mesi, i prezzi per appartamenti in vendita sono
in leggero aumento (+2,58%).
NOVITÀ Il risultato che vedi dipende dai dati che siamo riusciti ad estrarre dall'annuncio: ottieni una stima più accuranta di questo immobile, inserendo dati più precisi.
N.B. L'Opinione di Caasa® è un servizio sperimentale realizzato tramite tecniche di Intelligenza Artificiale, fornito senza alcuna garanzia di correttezza e completezza. Leggi il disclaimer o segnalaci un problema.
IMMAGINI
IN SINTESI
PROPOSTO DA:
Agenzia Immobiliare Pellegrini di Meda Mara
DESCRIZIONE
di recente ristrutturazione con posto auto con garage con terrazza con termocondizionamento di recente ristrutturazione da ristrutturare senza ascensore con riscaldamento autonomo con angolo cottura
OSPEDALETTO, proponiamo bicamere ristrutturato di circa 87 mq commerciali al piano primo ed ultimo in palazzina integralmente ristrutturata di sole 4 unità immobiliari. L' immobile è a pochi passi dalla fermata dell' autobus n. 5 , si trova a circa 3,5 km dal Ponte degli Angeli ed è collegato al centro dalla pista ciclabile. E' composto da zona living con angolo cottura con terrazzo tranquillo e con bella veduta verso le montagne, una camera matrimoniale, una camera singola, un bagno finestrato con doccia e con angolo lavanderia. Completano l'immobile un garage molto ampio e un posto auto. FINITURE E IMPIANTI : pavimenti in grès porcellanato effetto legno, riscaldamento autonomo ibrido, portoncino blindato ad alta sicurezza certificato CL3, porte interne bianche con finitura liscia e stile minimalista, serramenti esterni in PVC, bianchi a triplo vetro. Nei bagni sanitari filomuro. Tapparelle in alluminio motorizzate. Garage al piano terra di circa 16,80 mq interni. L' appartamento è in fase di ristrutturazione e le finiture sono personalizzabili. Predisposizione aria condizionata. migliorabile su richiesta dell'acquirente. Rif. 298-4 5 BUONI MOTIVI PER ACQUISTARLA SUBITO: 1) Ultimo piano con terrazzo 2) Contesto completamente ristrutturato 3) Palazzina poche unità 4) Comodo a tutti i servizi 5) Ottimo rapporto qualita'/prezzo




