Valutazione immobiliare indipendente, accurata e gratuita

Appartamento in vendita ad Arzignano a 104.063 € (cod.64e8e642)

Caasa non ha sufficienti informazioni per commentare l'appartamento in vendita ad Arzignano - 64e8e642.

Analisi immobiliare
I dati in posseso di Caasa per quest'immobile sono insufficienti, inaffidabili o contraddittori per proporre un'analisi attendibile.
Mercato immobiliare ad Arzignano
Per quanto riguarda più in generale la città di Arzignano, sono presenti al momento più di 200 annunci per appartamenti in vendita (meno del 5% dell'intera provincia) e il maggior numero di annunci per questa tipologia sono relativi alla zona di Costo.

Possiamo inoltre considerare che in tutta la città negli ultimi 6 mesi, i prezzi per appartamenti in vendita sono in aumento (+3,49%).

NOVITÀ Il risultato che vedi dipende dai dati che siamo riusciti ad estrarre dall'annuncio: ottieni una stima più accuranta di questo immobile, inserendo dati più precisi.

N.B. L'Opinione di Caasa® è un servizio sperimentale realizzato tramite tecniche di Intelligenza Artificiale, fornito senza alcuna garanzia di correttezza e completezza. Leggi il disclaimer o segnalaci un problema.

IMMAGINI

IN SINTESI

Prezzo:
104.063 €
Superficie:
172 m²
Prezzo al m²:
605 €/m²
Piano:
n.d.
Bagni:
n.d.
Classe energetica:
E
Città:
Arzignano (VI)
Zona OMI:
B2 (NUCLEO CENTRALE STORICO)
Indirizzo:
Pubblicato:
gio 3 luglio 2025

PROPOSTO DA:

Gruppo Edicom

DESCRIZIONE

con posto auto con garage con terrazza in asta giudiziaria con angolo cottura

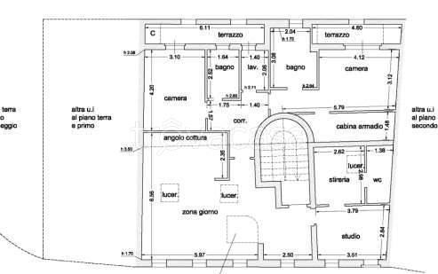
Appartamento IN ASTA al piano 2 composto da zona giorno con angolo cottura, studio, stireria con wc, corridoio, camera con terrazzo, bagno, lavanderia, camera con bagno, cabina armadio e terrazzo. Al piano interrato autorimessa. NEOVIT Verona e Vicen […]

  • trovacasa.net