Valutazione immobiliare indipendente, accurata e gratuita
Casa indipendente ad Altavilla Vicentina in zona Valmarana a 550.000 € (cod.64f18bb6)
Caasa non ha sufficienti informazioni per commentare la casa indipendente ad Altavilla Vicentina Valmarana - 64f18bb6.
Analisi immobiliare
I dati in posseso di Caasa per quest'immobile sono insufficienti, inaffidabili o contraddittori per proporre un'analisi attendibile.
Mercato immobiliare ad Altavilla Vicentina
Per quanto riguarda più in generale il comune di Altavilla Vicentina, sono presenti al momento più di cento annunci per
case indipendenti in vendita (meno del 5% dell'intera provincia)
e il maggior numero di annunci per questa tipologia sono relativi proprio alla zona di Valmarana.
Per quanto riguarda la richiesta media in zona Valmarana, dove sorge la casa indipendente, essa è pari a circa
1.930 €/m² per case indipendenti in vendita.
Possiamo inoltre considerare che in tutto il comune negli ultimi 6 mesi, i prezzi per case indipendenti in vendita sono
in sostanziale aumento (+5,22%).
NOVITÀ Il risultato che vedi dipende dai dati che siamo riusciti ad estrarre dall'annuncio: ottieni una stima più accuranta di questo immobile, inserendo dati più precisi.
N.B. L'Opinione di Caasa® è un servizio sperimentale realizzato tramite tecniche di Intelligenza Artificiale, fornito senza alcuna garanzia di correttezza e completezza. Leggi il disclaimer o segnalaci un problema.
IMMAGINI
IN SINTESI
PROPOSTO DA:
Spazi&Sogni
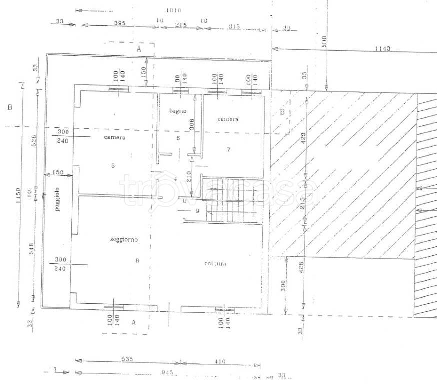
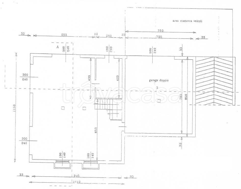
DESCRIZIONE
di nuova costruzione con posto auto con garage con giardino con terrazza di nuova costruzione
Ad Altavilla Vicentina, località Valmarana, più precisamente alla fine di via Matteotti, proponiamo in vendita con formula chiavi in mano, VILLA TRAMONTANA. Un fabbricato di nuova costruzione, personalizzabile a seconda delle tue esigenze, sviluppato su due piani per 200 mq di abitazione totali. Ampi spazi open space, due camere, due bagni, taverna e garage doppio. Da qui puoi godere di un panorama incredibile, dominando tutta la vallata. La suggestione grafica e la bozza di progetto in annuncio rappresentano ciò che si può sviluppare. Ideale per una persona singola che vuole avvicinarsi alla natura e allontanarsi da caos del traffico o per una famiglia magari che cerca ampi spazi per dedicarsi a giardinaggio, un luogo fantastico anche per i tuoi amici a 4 zampe


