Valutazione immobiliare indipendente, accurata e gratuita
Negozio in vendita a Villafranca di Verona a 150.000 € (cod.6513b967)
Caasa non ha sufficienti informazioni per commentare il negozio in vendita a Villafranca di Verona - 6513b967.
Analisi immobiliare
I dati in posseso di Caasa per quest'immobile sono insufficienti, inaffidabili o contraddittori per proporre un'analisi attendibile.
Mercato immobiliare a Villafranca di Verona
Per quanto riguarda più in generale la città di Villafranca di Verona, sono presenti al momento più di cinquanta annunci per
negozi in vendita (meno del 5% dell'intera provincia)
e il maggior numero di annunci per questa tipologia sono relativi alla zona di Dossobuono.
Vedi altre informazioni direttamente su
Mercato-Immobiliare.info
NOVITÀ Il risultato che vedi dipende dai dati che siamo riusciti ad estrarre dall'annuncio: ottieni una stima più accuranta di questo immobile, inserendo dati più precisi.
N.B. L'Opinione di Caasa® è un servizio sperimentale realizzato tramite tecniche di Intelligenza Artificiale, fornito senza alcuna garanzia di correttezza e completezza. Leggi il disclaimer o segnalaci un problema.
IMMAGINI
IN SINTESI
DESCRIZIONE
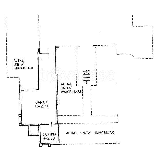
con posto auto con garage con cantina
LOCALE COMMERCIALE A VILLAFRANCA (VR):locale commerciale di 83 mq libero. L'immobile si sviluppa al piano terra con una vetrina su strada. E' composto da zona vendita con bagno, corte esclusiva esterna e, al piano interrato, ampio garage (60 mq) e cantina da adibire a deposito. Posti auto di pertinenza fronte negozio.CL En B. PER INFO: RIGODANZE RUDI TEL: 347-5330729


