Valutazione immobiliare indipendente, accurata e gratuita
L'Opinione di Caasa® per l'appartamento in vendita a Valeggio sul Mincio a 320.000 € (cod.65182e59)
Secondo Caasa, per l'appartamento in vendita a Valeggio sul Mincio, la richiesta di 320.000 € è equilibrata rispetto agli annunci simili.
Analisi immobiliare
L'appartamento è proposto in vendita (da Immobiliare MEA DOMUS Fondocasa Ponti sul Mincio) a
320.000 € per una
superficie commerciale di
128 m² e quindi ad un prezzo per metro quadrato pari a
2500 €/m²
.
Tale prezzo
è molto vicino a quello stimato da Caasa per immobili in vendita simili per tipologia, caratteristiche e classe energetica, che è compreso tra
2.386 €/m² e
2.594 €/m².
Sono stati utilizzati in raffronto i soli valori medi cittadini per appartamenti (da 1.400 €/m² a 2.425 €/m²) e per trivani (da 1.680 €/m² a 2.520 €/m²), visto che non è stato possibile determinare in modo affidabile la posizione dell'immobile. All'elaborazione della stima ha però contribuito anche la classe energetica (A+) oltre alla condizione dell'immobile (di nuova costruzione) e alla presenza di alcune caratteristiche significative come il garage o la disponibilità di una cantina. In virtù di queste considerazioni i valori considerati accettabili per l'offerta costituiscono un intervallo comunque ampio.
Mercato immobiliare a Valeggio sul Mincio
Per quanto riguarda più in generale la città di Valeggio sul Mincio, sono presenti al momento più di cento annunci per
appartamenti in vendita (meno del 5% dell'intera provincia)
e il maggior numero di annunci per questa tipologia sono relativi alla zona di Salionze.
Relativamente alla dinamica dei prezzi, possiamo dire che negli ultimi 6 mesi i prezzi medi in tutta la città per appartamenti in vendita sono
in debole aumento (+2,15%).
NOVITÀ Il risultato che vedi dipende dai dati che siamo riusciti ad estrarre dall'annuncio: ottieni una stima più accuranta di questo immobile, inserendo dati più precisi.
N.B. L'Opinione di Caasa® è un servizio sperimentale realizzato tramite tecniche di Intelligenza Artificiale, fornito senza alcuna garanzia di correttezza e completezza. Leggi il disclaimer o segnalaci un problema.
IMMAGINI
IN SINTESI
PROPOSTO DA:
Immobiliare MEA DOMUS Fondocasa Ponti sul Mincio
Via circonvallazione 6, Ponti sul Mincio (MN)
DESCRIZIONE
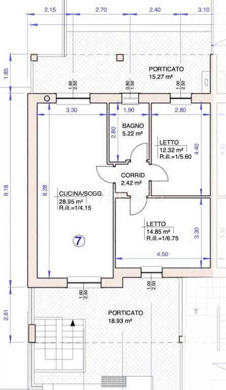
di nuova costruzione con giardino con posto auto con garage con cantina di nuova costruzione
In PICCOLO contesto di NUOVA REALIZZAZIONE, costituito da soli QUATTRO APPARTAMENTI, tutti caratterizzati dalla massima INDIPENDENZA inquinato dotati ciascuno di un proprio ingresso indipendente, proponiamo APPARTAMENTO TRILOCALE al piano TERRA disposto su un unico e funzionale livello. L’appartamento che presenta ampi e lineari spazi facilmente e ottimamente arredatili, è nello specifico così meglio descritto: PIANO TERRA: Ampio soggiorno con zona cucina a vista di quasi 30 mq con doppio accesso a due comodi e funzionali porticati esterni, uno di 19 mq e l’altro di 15 mq, che fanno da andito al comodo giardino di proprietà; entrando nella zona notte troviamo la camera matrimoniale, la camera doppia ed il bagno. Attraverso la scala posto in aderenza al portico di proprietà si accede infine al piano interrato dove troviamo un funzionale cantina e l’accesso diretto al GARAGE DOPPIO in linea di quasi 40,00 mq. La qualità costruttiva è OTTIMA e finalizzata sia al massimo risparmio energetico che ad offrire ai futuri proprietari il massimo confort abitativo. L’appartamento è completamente personalizzabile con un capitalo di OTTIMO livello qualitativo


