Valutazione immobiliare indipendente, accurata e gratuita
Appartamento in vendita a San Giovanni Lupatoto a 465.000 € (cod.6531e1b8)
Caasa non ha sufficienti informazioni per commentare l'appartamento in vendita a San Giovanni Lupatoto - 6531e1b8.
Analisi immobiliare
I dati in posseso di Caasa per quest'immobile sono insufficienti, inaffidabili o contraddittori per proporre un'analisi attendibile.
Mercato immobiliare a San Giovanni Lupatoto
Per quanto riguarda più in generale la città di San Giovanni Lupatoto, sono presenti al momento più di 200 annunci per
appartamenti in vendita (meno del 5% dell'intera provincia)
e il maggior numero di annunci per questa tipologia sono relativi alla zona di Raldon.
Per quanto riguarda la dinamica dei prezzi, negli ultimi 6 mesi i prezzi medi in tutta la città per appartamenti in vendita sono
in aumento (+3,95%).
NOVITÀ Il risultato che vedi dipende dai dati che siamo riusciti ad estrarre dall'annuncio: ottieni una stima più accuranta di questo immobile, inserendo dati più precisi.
N.B. L'Opinione di Caasa® è un servizio sperimentale realizzato tramite tecniche di Intelligenza Artificiale, fornito senza alcuna garanzia di correttezza e completezza. Leggi il disclaimer o segnalaci un problema.
IMMAGINI
IN SINTESI
PROPOSTO DA:
Affiliato Tecnorete: IMMOBILIARE CASTEL D'AZZANO SRL
DESCRIZIONE
di nuova costruzione con posto auto con terrazza di nuova costruzione
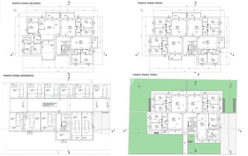
SAN GIOVANNI LUPATOTO - NUOVA REALIZZAZIONE Proponiamo in vendita un attico di nuova costruzione in inserito in un elegante complesso residenziale di prossima realizzazione, con consegna prevista per metà 2027. L’immobile si distingue per un progetto architettonico moderno e funzionale, pensato per garantire il massimo comfort abitativo e un’elevata efficienza energetica. L’abitazione è caratterizzata da una zona giorno open space di generose dimensioni, luminosa e accogliente, con affaccio e accesso diretto ai 2 terrazzi abitabili, di cui uno di oltre 45 mq. La zona notte ospita 3 camere da letto di ampia metratura, una matrimoniale con cabina e due doppie, e due comodi bagni, di cui uno finestrato e uno cieco. Completa la proprietà un box auto privato. Il complesso condominiale, composto da sole 11 unità abitative, sarà realizzato con finiture di alto livello e dotato di tutti i più moderni comfort, garantendo un contesto abitativo esclusivo e riservato. La zona in cui sorgerà l’intervento è in forte fase di sviluppo ed è caratterizzata da edifici di recente o nuovissima costruzione, rendendola una soluzione ideale per chi desidera investire o vivere in un contesto moderno e in continua valorizzazione


