Valutazione immobiliare indipendente, accurata e gratuita
L'Opinione di Caasa® per l'appartamento in vendita a San Giovanni Lupatoto a 772.000 € (cod.6526fcd5)
Secondo Caasa, per l'appartamento in vendita a San Giovanni Lupatoto, la richiesta di 772.000 € è significativamente vantaggiosa rispetto agli annunci simili.
Analisi immobiliare
L'appartamento è proposto in vendita a
772.000 € per una
superficie commerciale di
576 m² e quindi ad un prezzo per metro quadrato pari a
1340 €/m²
.
Tale prezzo
è più conveniente di quello stimato da Caasa per immobili in vendita simili per tipologia, caratteristiche e classe energetica, che è compreso tra
1.895 €/m² e
2.115 €/m².
Sono stati utilizzati nel raffronto i soli valori medi cittadini, visto che non è stato possibile determinare in modo affidabile la posizione dell'immobile. All'elaborazione della stima ha però contribuito anche la classe energetica (G) oltre alla condizione dell'immobile (di recente ristrutturazione che però è completamente contraddittorio con la classe energetica) e alla presenza di alcune caratteristiche significative come il garage o la disponibilità di una cantina. Per queste considerazioni i valori considerati accettabili per l'offerta costituiscono un intervallo comunque ampio.
Mercato immobiliare a San Giovanni Lupatoto
Per quanto riguarda più in generale la città di San Giovanni Lupatoto, sono presenti al momento più di cento annunci per
appartamenti in vendita (meno del 5% dell'intera provincia)
e il maggior numero di annunci per questa tipologia sono relativi alla zona di Pozzo.
Relativamente alla dinamica dei prezzi, possiamo dire che negli ultimi 6 mesi i prezzi medi in tutta la città per appartamenti in vendita sono
in sostanziale aumento (+6,66%).
NOVITÀ Il risultato che vedi dipende dai dati che siamo riusciti ad estrarre dall'annuncio: ottieni una stima più accuranta di questo immobile, inserendo dati più precisi.
N.B. L'Opinione di Caasa® è un servizio sperimentale realizzato tramite tecniche di Intelligenza Artificiale, fornito senza alcuna garanzia di correttezza e completezza. Leggi il disclaimer o segnalaci un problema.
IMMAGINI
IN SINTESI
DESCRIZIONE
di recente ristrutturazione con posto auto con garage con cantina con terrazza con termocondizionamento di recente ristrutturazione con balcone con angolo cottura da ristrutturare con riscaldamento autonomo
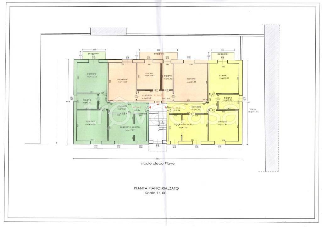
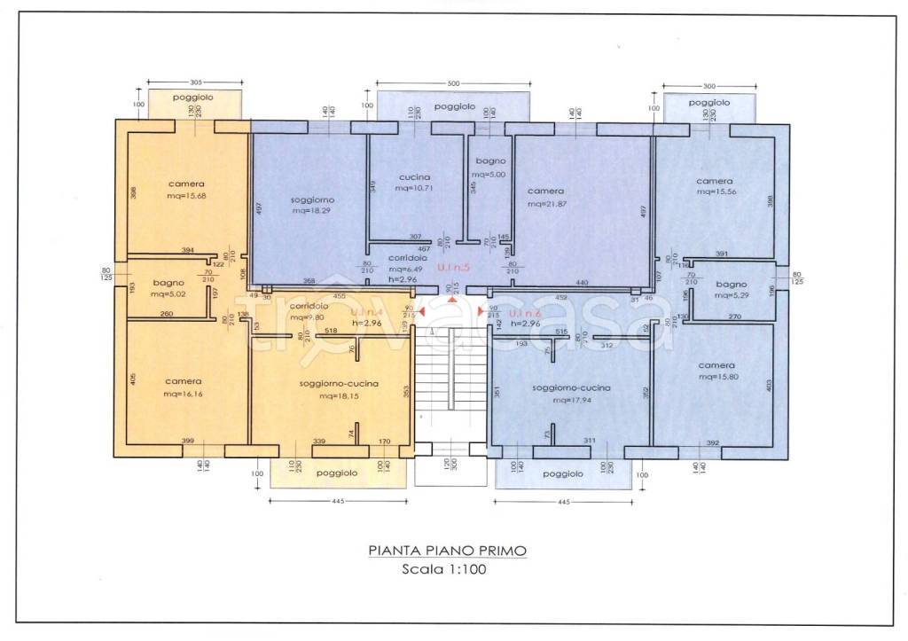
Proposta di Vendita Intero Stabile o Singole Unità Immobiliari Ubicazione: Via Adige San Giovanni Lupatoto Stabile residenziale con pertinenze e posti auto. Disponibilità: Si valuta la vendita in blocco dell'intero fabbricato oppure la cessione delle singole unità immobiliari, attualmente locate. Dotazioni comuni: Ogni appartamento è corredato da cantina e posto auto coperto, e' dotato di riscaldamento autonomo a gas. Finiture anni 60. Alcuni appartamenti sono stati oggetto di migliorie per lavori eseguiti come da schede seguenti. Superficie complessiva dello stabile: 576,84 mq commerciali. --- Unità 1 C.n.1 (Appartamento) Superficie commerciale totale: 102,80 mq Composizione: ingresso, soggiorno, cucinotto, 2 camere matrimoniali, bagno finestrato, balcone Pertinenze: cantina + posto auto coperto Canone annuo percepito: € 5.160 (pari a € 430/mese) Scadenza contratto: 31/12/2026 Lavori eseguiti: rifacimento impermeabilizzazione copertura nel 2023, serramenti nuovi in pvc e vetrocamera - 2015 Valore di vendita: € 142.000 --- Unità 2 C.n.2 (Appartamento) Superficie commerciale totale: 91,28 mq Composizione: ingresso, soggiorno, cucina, camera matrimoniale, bagno finestrato, balcone. Pertinenze: cantina + posto auto coperto Canone annuo percepito: € 4.800 (pari a € 400/mese) Scadenza contratto: 30/04/2025 Lavori eseguiti: rifacimento impermeabilizzazione copertura nel 2023, serramenti nuovi in pvc e vetrocamera - 2015 Valore di vendita: € 120.000 --- Unità 3 C.n.3 (Appartamento) Superficie commerciale totale: 98,50 mq Composizione: ingresso, soggiorno, cucinotto, 2 camere matrimoniali, bagno finestrato, balcone Pertinenze: cantina + posto auto coperto Canone annuo percepito: € 5.160 (pari a € 430/mese) Scadenza contratto: 28/02/2027 Lavori eseguiti:rifacimento impermeabilizzazione copertura nel 2023, serramenti nuovi in legno e vetrocamera - 2000 Valore di vendita: € 135.000 --- Unità 4 C.n.6 (Appartamento) Superficie commerciale totale: 104,50 mq Composizione: ingresso, soggiorno, cucinotto, 2 camere matrimo[…]

