Valutazione immobiliare indipendente, accurata e gratuita
L'Opinione di Caasa® per l'appartamento in vendita a San Giovanni Lupatoto in zona Raldon a 260.000 € (cod.63a8292b)
Secondo Caasa, per l'appartamento a San Giovanni Lupatoto in zona Raldon, la richiesta di 260.000 € è equilibrata rispetto agli annunci simili.
Analisi immobiliare
L'appartamento, situato nella zona OMI E2, è proposto in vendita a
260.000 € per una
superficie commerciale di
120 m² e quindi ad un prezzo per metro quadrato pari a
2166 €/m²
.
Tale valore
è in linea con quello stimato da Caasa per immobili in vendita simili per tipologia, caratteristiche, classe energetica e localizzati nella stessa zona OMI, che è compreso tra
2.010 €/m² e
2.173 €/m².
La conoscenza con buona approssimazione della localizzazione dell'immobile ha consentito di utilizzare come raffronto i dati medi elaborati esattamente nella zona OMI di appertenenza (FRAZIONE DI RALDON E COMPARTI EDIFICATI LIMITROFI) per appartamenti (da 1.265 €/m² a 2.335 €/m²) e per quadrivani (da 1.145 €/m² a 2.060 €/m²). Inoltre, Caasa ha potuto affinare la stima anche con la conoscenza della classe energetica (A+) oltre che dello stato dell'immobile (di nuova costruzione) e di alcune caratteristiche significative come il garage o la disponibilità di una cantina. Per questi motivi i valori accettabili per l'offerta costituiscono un intervallo abbastanza limitato.
Mercato immobiliare a San Giovanni Lupatoto
Per quanto riguarda più in generale la città di San Giovanni Lupatoto, sono presenti al momento più di cento annunci per
appartamenti in vendita (meno del 5% dell'intera provincia)
e il maggior numero di annunci per questa tipologia sono relativi alla zona di Pozzo, ma anche la zona di Raldon è molto attiva dal punto di vista immobiliare.
Per quanto riguarda la richiesta media in zona Raldon, dove sorge l'appartamento, essa è pari a circa
1.795 €/m² per appartamenti in vendita.
La dinamica dei prezzi in tutta la città mostra che negli ultimi 6 mesi, i prezzi per appartamenti in vendita sono
in aumento (+4,29%).
NOVITÀ Il risultato che vedi dipende dai dati che siamo riusciti ad estrarre dall'annuncio: ottieni una stima più accuranta di questo immobile, inserendo dati più precisi.
N.B. L'Opinione di Caasa® è un servizio sperimentale realizzato tramite tecniche di Intelligenza Artificiale, fornito senza alcuna garanzia di correttezza e completezza. Leggi il disclaimer o segnalaci un problema.
IMMAGINI
IN SINTESI
PROPOSTO DA:
TECNOCASA Danica sas
DESCRIZIONE
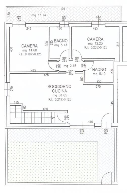
di nuova costruzione con posto auto con garage con terrazza con cantina con giardino di nuova costruzione con termocondizionamento con balcone con angolo cottura
IMMOBILE PRENOTATO---- San Giovanni Lupatoto - In zona Raldon, in centro paese, proponiamo in vendita in piccolo contesto di 6 unità di NUOVA COSTRUZIONE appartamento al piano terra con giardino privato e ingresso indipendente composto da soggiorno con angolo cottura, due camere da letto entrambe servite da comodo balcone, un bagno finestrato, un bagno/lavanderia, comoda scala interna dalla quale si accede direttamente alla parte interrata con ampia cantina e garage doppio in larghezza. La soluzione sarà consegnata in e sarà dotata di: impianto ibrido 1,5 kwh di pannello fotovoltaico e caldaia a condensazione di ultima generazione riscaldamento a pavimento cappotto termico a 12 cm serramenti bassoemissivi in pvc tapparelle motorizzate predisposizione aria condizionata predisposizione impianto d'allarme predisposizione per irrigazione giardino. Inizio lavori previsti per febbraio 2025 e consegna a Giugno 2026 Possibilità di personalizzare l'immobile sia in merito alle finiture interne sia per quanto concerne la distruibuzione degli spazi

