Valutazione immobiliare indipendente, accurata e gratuita
L'Opinione di Caasa® per l'appartamento in vendita a San Bonifacio a 300.000 € (cod.657d04df)
Secondo Caasa, per l'appartamento in vendita a San Bonifacio, la richiesta di 300.000 € è leggermente svantaggiosa rispetto agli annunci simili.
Analisi immobiliare
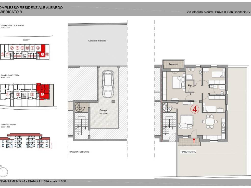
L'appartamento, situato nella zona OMI B1, è proposto in vendita a
300.000 € per una
superficie commerciale di
140 m² e quindi ad un prezzo per metro quadrato pari a
2142 €/m²
.
Tale valore
è un po' più alto di quello stimato da Caasa per immobili in vendita simili per tipologia e caratteristiche, presenti nella stessa zona, che è compreso tra
1.893 €/m² e
2.045 €/m².
Vista la posizione dell'appartamento sono stati utilizzati come raffronto i valori medi nelle zone limitrofe . Caasa non è stata in grado di determinare la classe energetica, ma ad affinare la stima ha contribuito però anche lo stato dell'immobile (di nuova costruzione). Per i motivi esposti i valori possibili per l'offerta costituiscono un intervallo relativamente ampio.
Mercato immobiliare a San Bonifacio
Per quanto riguarda più in generale la città di San Bonifacio, sono presenti al momento più di 200 annunci per
appartamenti in vendita (meno del 5% dell'intera provincia) .
La dinamica dei prezzi in tutta la città mostra che negli ultimi 6 mesi, i prezzi per appartamenti in vendita sono
in leggero aumento (+2,45%).
NOVITÀ Il risultato che vedi dipende dai dati che siamo riusciti ad estrarre dall'annuncio: ottieni una stima più accuranta di questo immobile, inserendo dati più precisi.
N.B. L'Opinione di Caasa® è un servizio sperimentale realizzato tramite tecniche di Intelligenza Artificiale, fornito senza alcuna garanzia di correttezza e completezza. Leggi il disclaimer o segnalaci un problema.
IMMAGINI
IN SINTESI
PROPOSTO DA:
IMMOBILIARE ZDF
