Valutazione immobiliare indipendente, accurata e gratuita
L'Opinione di Caasa® per la casa indipendente a Sant'Ambrogio di Valpolicella San Giorgio a 680.000 € (cod.64f2bc0d)
Secondo Caasa, per la casa indipendente in vendita in zona San Giorgio, la richiesta di 680.000 € è leggermente svantaggiosa rispetto agli annunci simili.
Analisi immobiliare
La casa indipendente, situata nella zona OMI B1, è proposta in vendita a
680.000 € per una
superficie commerciale di
290 m² e quindi ad un prezzo per metro quadrato pari a
2344 €/m²
.
Tale prezzo
è un po' più alto di quello stimato da Caasa per immobili in vendita simili per tipologia, caratteristiche, classe energetica e localizzati nella stessa zona OMI, che è compreso tra
1.941 €/m² e
2.174 €/m².
La conoscenza con buona approssimazione della localizzazione dell'immobile ha consentito di utilizzare come raffronto i dati medi elaborati esattamente nella zona OMI di appertenenza (CAPOLUOGO E COMPARTI EDIFICATI A SUD DEL TERRITORIO) per case indipendenti (da 1.605 €/m² a 2.485 €/m²). Inoltre, Caasa ha potuto affinare la stima anche con la conoscenza della classe energetica (E) oltre che dello stato dell'immobile (da ristrutturare) e di alcune caratteristiche significative come il garage o la disponibilità di una cantina. Per i motivi esposti i valori accettabili per l'offerta costituiscono un intervallo abbastanza limitato.
Mercato immobiliare a Sant'Ambrogio di Valpolicella
Per quanto riguarda più in generale il comune di Sant'Ambrogio di Valpolicella, sono presenti al momento circa cento annunci per
case indipendenti in vendita (meno del 5% dell'intera provincia)
e il maggior numero di annunci per questa tipologia sono relativi alla zona di Domegliara, mentre la zona di San Giorgio risulta molto meno attiva considerando il numero di annunci presenti.
Per quanto riguarda la richiesta media in zona San Giorgio, dove sorge la casa indipendente, essa è pari a circa
2.065 €/m² per case indipendenti in vendita.
Relativamente alla dinamica dei prezzi, possiamo dire che negli ultimi 6 mesi i prezzi medi in tutto il comune per case indipendenti in vendita sono
in sostanziale aumento (+5,37%).
NOVITÀ Il risultato che vedi dipende dai dati che siamo riusciti ad estrarre dall'annuncio: ottieni una stima più accuranta di questo immobile, inserendo dati più precisi.
N.B. L'Opinione di Caasa® è un servizio sperimentale realizzato tramite tecniche di Intelligenza Artificiale, fornito senza alcuna garanzia di correttezza e completezza. Leggi il disclaimer o segnalaci un problema.
IMMAGINI
IN SINTESI
PROPOSTO DA:
STUDIO SAN LORENZO SRL
DESCRIZIONE
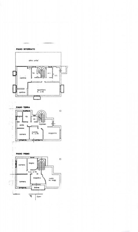
da ristrutturare con garage con giardino con cantina con termocondizionamento da ristrutturare senza ascensore
Villa singola con vista lago e ampio giardino a San Giorgio Ingannapoltron In una delle zone più suggestive e panoramiche della Valpolicella, nel rinomato borgo di San Giorgio Ingannapoltron, inserito tra i borghi più belli d'Europa, proponiamo in vendita villa singola di circa 290 mq commerciali, immersa nella tranquillità e nella natura, ma a pochi chilometri dai principali servizi. La proprietà si sviluppa su due livelli fuori terra oltre a piano interrato, ed è circondata da un ampio giardino privato di circa 500 mq, ideale per momenti di relax all'aperto, con possibilità di realizzare una piscina. Composizione Piano Terra Luminosa e accogliente zona giorno con pavimenti in marmo Cucina separata da tramezza (possibilità di creare un ampio open space) Due camere da letto Due bagni finestrati Piano Primo Soppalco utilizzabile come disbrigo o zona studio Due camere matrimoniali Ampio bagno Piano Interrato Grande taverna finestrata Cantina spaziosa e finestrata Locale tecnico Ripostiglio Bagno di servizio Completano la proprietà una comoda autorimessa di 55 mq con basculante elettrica. Caratteristiche e finiture Struttura in cemento armato Infissi in doppio vetro con scuri in legno Inferiate di sicurezza e porta blindata Pavimenti in marmo nella zona giorno e legno nella zona notte Impiantistica e finiture risalenti ai primi anni '90 Aria condizionata Riscaldamento a pavimento Impianto di aspirazione canalizzato Punti di forza Splendida vista lago Ottima esposizione solare Contesto tranquillo e riservato A pochi minuti dai principali servizi Una villa luminosa e dal grande potenziale, perfetta per chi desidera una soluzione indipendente, con spazi ampi, immersa nel verde e con una vista mozzafiato sul Lago di Garda





