Valutazione immobiliare indipendente, accurata e gratuita
Casa indipendente in vendita a Peschiera del Garda a 790.000 € (cod.65657959)
Caasa non ha sufficienti informazioni per commentare la casa indipendente in vendita a Peschiera del Garda - 65657959.
Analisi immobiliare
I dati in posseso di Caasa per quest'immobile sono insufficienti, inaffidabili o contraddittori per proporre un'analisi attendibile.
Mercato immobiliare a Peschiera del Garda
Per quanto riguarda più in generale il comune di Peschiera del Garda, sono presenti al momento più di 300 annunci per
case indipendenti in vendita (meno del 5% dell'intera provincia)
e il maggior numero di annunci per questa tipologia sono relativi alla zona di San Benedetto di Lugana.
Relativamente alla dinamica dei prezzi, possiamo dire che negli ultimi 6 mesi i prezzi medi in tutto il comune per case indipendenti in vendita sono
in leggera diminuzione (-2,30%).
NOVITÀ Il risultato che vedi dipende dai dati che siamo riusciti ad estrarre dall'annuncio: ottieni una stima più accuranta di questo immobile, inserendo dati più precisi.
N.B. L'Opinione di Caasa® è un servizio sperimentale realizzato tramite tecniche di Intelligenza Artificiale, fornito senza alcuna garanzia di correttezza e completezza. Leggi il disclaimer o segnalaci un problema.
IMMAGINI
IN SINTESI
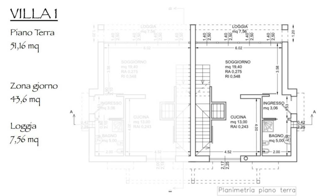
DESCRIZIONE
di nuova costruzione con posto auto con garage con terrazza con giardino di nuova costruzione con balcone
Peschiera del Garda – In contesto tranquillo proponiamo in vendita un’elegante porzione di villa bifamiliare con vista lago disposta su due livelli oltre ad interrato. La villa è in fase di completamento e si trova in posizione collinare, dalla quale si possono raggiungere in pochi minuti i parcheggi del centro, il lago e principali servizi ed attività del paese. La costruzione offre elevati standard a livello di qualità dei materiali e di risparmio energetico. Al piano terra, dotato di servizio, l’ingresso ci conduce nel luminoso soggiorno, collegato alla loggia e alla cucina a vista, dotata a sua volta di porta-finestra che permette di uscire sul portico esterno. La villa è circondata su due lati da un piacevole giardino privato che offre momenti di relax senza rinunciare alla privacy. Salendo al piano superiore, ci troviamo nel corridoio che conduce ad una comoda camera matrimoniale con bagno padronale e con un piacevole balcone, ad altre due stanze e ad un ulteriore servizio. La scala porta poi alla terrazza di oltre quaranta metri quadrati presente al livello della copertura piana dell’edificio, dove è presente il vano tecnico. Al piano interrato l’autorimessa è di ampie dimensioni, e consente di posteggiare comodamente due automobili affiancate. L’interrato è arricchito inoltre da un doppio locale di circa cinquanta metri quadrati totali, nel quale si possono creare spazi per i propri interessi personali ed hobbies e per momenti conviviali. Sono presenti due ulteriori posti auto esterni privati. La posizione dell’immobile offre la possibilità di godere di una meravigliosa vista lago, ulteriore plus di una villa bifamiliare unica nel suo genere per posizione e utilizzo degli spazi


