Valutazione immobiliare indipendente, accurata e gratuita
Casa indipendente in vendita a Peschiera del Garda a 395.000 € (cod.6522d475)
Caasa non ha sufficienti informazioni per commentare la casa indipendente in vendita a Peschiera del Garda - 6522d475.
Analisi immobiliare
I dati in posseso di Caasa per quest'immobile sono insufficienti, inaffidabili o contraddittori per proporre un'analisi attendibile.
Mercato immobiliare a Peschiera del Garda
Per quanto riguarda più in generale il comune di Peschiera del Garda, sono presenti al momento più di 200 annunci per
case indipendenti in vendita (meno del 5% dell'intera provincia)
e il maggior numero di annunci per questa tipologia sono relativi alla zona di San Benedetto di Lugana.
Relativamente alla dinamica dei prezzi, possiamo dire che negli ultimi 6 mesi i prezzi medi in tutto il comune per case indipendenti in vendita sono
sostanzialmente stabili (+0,64%).
NOVITÀ Il risultato che vedi dipende dai dati che siamo riusciti ad estrarre dall'annuncio: ottieni una stima più accuranta di questo immobile, inserendo dati più precisi.
N.B. L'Opinione di Caasa® è un servizio sperimentale realizzato tramite tecniche di Intelligenza Artificiale, fornito senza alcuna garanzia di correttezza e completezza. Leggi il disclaimer o segnalaci un problema.
IMMAGINI
IN SINTESI
DESCRIZIONE
con posto auto con garage con giardino con termocondizionamento con riscaldamento autonomo con cucina abitabile con caminetto
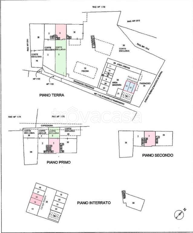
Peschiera del Garda (VR): Casa Terra-Tetto - Giardino A Peschiera del Garda (VR), elegante casa indipendente terra-tetto con giardino e garage doppio. Zona tranquilla, a 3 km dal lago. Subito disponibile! In zona, tra le più tranquille e verdi di Peschiera del Garda (VR), proponiamo in vendita una signorile porzione di casa terra-tetto indipendente, perfetta per chi cerca quiete, privacy e comfort a pochi minuti dal lago. A soli 3 km dal centro e dal lungolago, l’immobile si sviluppa su due livelli per una superficie complessiva di circa 130 mq, con ingresso indipendente e contesto riservato (solo due unità abitative). Caratteristiche principali: Piano terra: ingresso con bussola, ampio soggiorno con pavimento in rovere e camino, bagno con doccia. Piano primo: cucina abitabile, due camere da letto (una con cabina armadio), secondo bagno con vasca idromassaggio e doccia separata. Esterni: giardino privato con possibilità di realizzare piscina (preventivo € 25.000–30.000). Garage doppio automatizzato di 66 mq + 2 posti auto esterni privati. Dotazioni tecniche: Cappotto termico, serramenti in legno bianco con zanzariere. Riscaldamento autonomo a caldaia Predisposizione per aria condizionata in tutti gli ambienti. Nessun vincolo, immobile pronto da abitare. Informazioni aggiuntive: Superficie: 130 mq Stato immobile: Ottimo Bagni: 2 Impianto di climatizzazione: predisposto Impianto di allarme: non presente Prezzo richiesto: € 395.000 (esclusa eventuale piscina) Caparra: €50.000/00 alla proposta, saldo al rogito notarile Saldo: Atto notarile Nota importante: Trattativa riservata, solo previo appuntamento.? Non si accettano contatti da agenzie di telemarketing o call center.? Massima riservatezza garantita in tutte le fasi della compravendita. Per ricevere maggiori informazioni o fissare una visita riservata. Contattaci

